Type
Bien immobilierTarif
300 000 €Chambres
3Salles de bain
0Vente Maison/villa 4 pièces
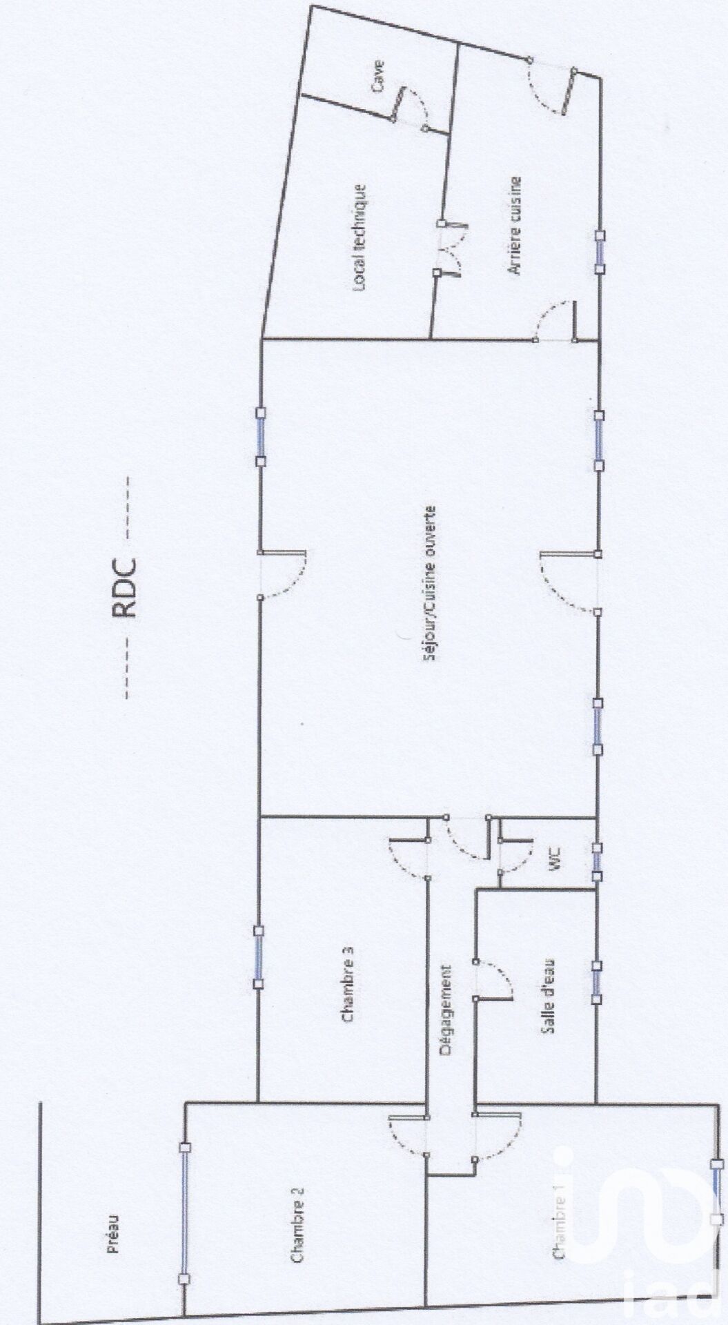
Iad France - Florence Jossier vous propose : Belle longère de 115 m² avec 3 Chambres et son jardin à Chauvé, vous offrant un espace de vie confortable et lumineux. Au cOEur de la maison, vous trouverez un espace de vie spacieux de 42 m² comprenant une cuisine ouverte entièrement équipée, idéale pour préparer de délicieux repas en famille ou entre amis, 3 belles chambres : 14.20 m² - 13.25 m² - 11.70 m² 1 belle salle d'eau : 8 m² 1 arrière cuisine : 11 m² 1 local : 7.20 m² 1 cave : 5.70 m² 1 garage : 18 m² Un jardin avec son garage vous offre un espace extérieur privilégié où vous pourrez vous détendre, clos et arboré. Assainissement conforme. Les équipements de cette maison comprennent la fibre optique, VMC, chauffage au sol, un confort optimal tout au long de l'année. Située dans un quartier calme, cette maison bénéficie d'une exposition nord sud, offrant une belle luminosité tout au long de la journée. Laissez-vous séduire par son charme et ses nombreux atouts. Contactez dès moi maintenant pour organiser une visite. Honoraires d'agence à la charge du vendeur. Information d'affichage énergétique sur ce bien : classe ENERGIE C indice 118 et classe CLIMAT A indice 3. Les informations sur les risques auxquels ce bien est exposé, y compris l'obligation légale de débroussaillement, sont disponibles sur le site Géorisques : http://www.georisques.gouv.fr. La présente annonce immobilière a été rédigée sous la responsabilité éditoriale de Mme Florence Jossier mandataire indépendant en immobilier (sans détention de fonds), agent commercial de la SAS I@D France immatriculé au RSAC de SAINT-NAZAIRE sous le numéro 845195635, titulaire de la carte de démarchage immobilier pour le compte de la société I@D France SAS.
À proximité
Recherche des commodités à proximité...
Détails de l'annonce
Localisation
Ville
Chauve
Pays
FR
Diagnostics / Énergie
Diagnostic DPE
118
Diagnostic GES
3
Surfaces / Pièces / Composition
Nombre d’étages
Chauffage et diagnostics
Diagnostic de performance énergétique (DPE)
a
b
c
d
e
f
g
Indice d'émission de gaz à effet de serre (GES)
a
b
c
d
e
f
g
