Type
Bien immobilierTarif
481 400 €Chambres
3Salles de bain
0Vente Appartement 4 pièces
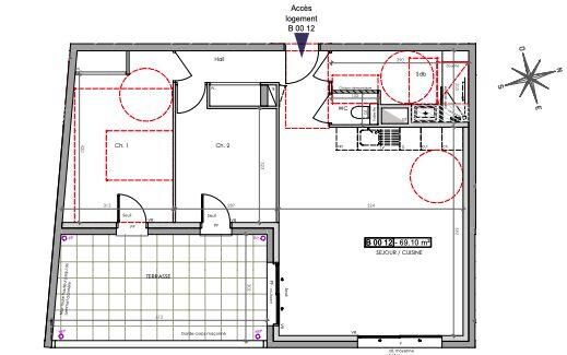
Iad France - Sarah Rozière (06 99 86 19 42) vous propose : Appartement T4 avec terrasse à Ville-la-Grand. Au cOEur de la résidence contemporaine L’EDEN, située rue de l’Espérance à Ville-la-Grand, découvrez une adresse élégante à la frontière suisse, alliant confort moderne, qualité architecturale et qualité de vie. Conçue comme une véritable oasis urbaine, la résidence propose des espaces verts paysagers, un jardin signature favorisant la biodiversité et des commerces de proximité. Livraison prévue en 2026. D’une surface de 92 m² environ, cet appartement T4 en rez-de-chaussée se prolonge par une terrasse de 21 m² environ. Il comprend une pièce de vie avec cuisine ouverte de 31 m² environ, trois chambres confortables et une salle de bains moderne. Un box privatif complète le bien. Le chauffage collectif au bois, diffusé par vecteur d’air sans radiateurs apparents, offre un confort thermique optimal tout au long de l’année. AUTRES T4 DISPONIBLES À PARTIR DE 489 499 € – Plans et demande d'informations sur simple contact. Les habitants profitent d’une situation idéale : centre-bourg à 400 mètres avec commerces, restaurants et marché dominical, établissements scolaires à proximité, gare SNCF d’Annemasse et Léman Express accessibles en quelques minutes (Genève centre en 25 min). Ville-la-Grand séduit par sa dynamique urbaine, ses espaces verts, ses équipements sportifs et sa vie culturelle riche. Acheter dans le neuf, c’est bénéficier de frais de notaire réduits, de garanties constructeur, et d’un logement conforme aux dernières normes thermiques et acoustiques. Vous pouvez également personnaliser certains aménagements selon vos envies. Vous pouvez me contacter dès maintenant pour recevoir le plan détaillé, obtenir plus d’informations ou bénéficier d’un accompagnement personnalisé. Honoraires d’agence à la charge du vendeur. Bien non soumis au DPE. Les informations sur les risques auxquels ce bien est exposé sont disponibles sur le site Géorisques : www.georisques.gouv.fr. La présente annonce immobilière a été rédigée sous la responsabilité éditoriale de Mlle Sarah Rozière EI (ID 83696), mandataire indépendant en immobilier (sans détention de fonds), agent commercial de la SAS I@D France immatriculé au RSAC de Clermont-Ferrand sous le numéro 978616993, titulaire de la carte de démarchage immobilier pour le compte de la société I@D France SAS. Retrouvez tous nos biens sur notre site internet. www.iadfrance.fr.
À proximité
Recherche des commodités à proximité...
Détails de l'annonce
Localisation
Ville
Ville-la-Grand
Pays
FR
Surfaces / Pièces / Composition
Nombre d’étages
4
Chauffage et diagnostics
Diagnostic de performance énergétique (DPE)
a
b
c
d
e
f
g
Indice d'émission de gaz à effet de serre (GES)
a
b
c
d
e
f
g
