Type
Bien immobilierTarif
99 000 €Chambres
3Salles de bain
0Vente Appartement 4 pièces
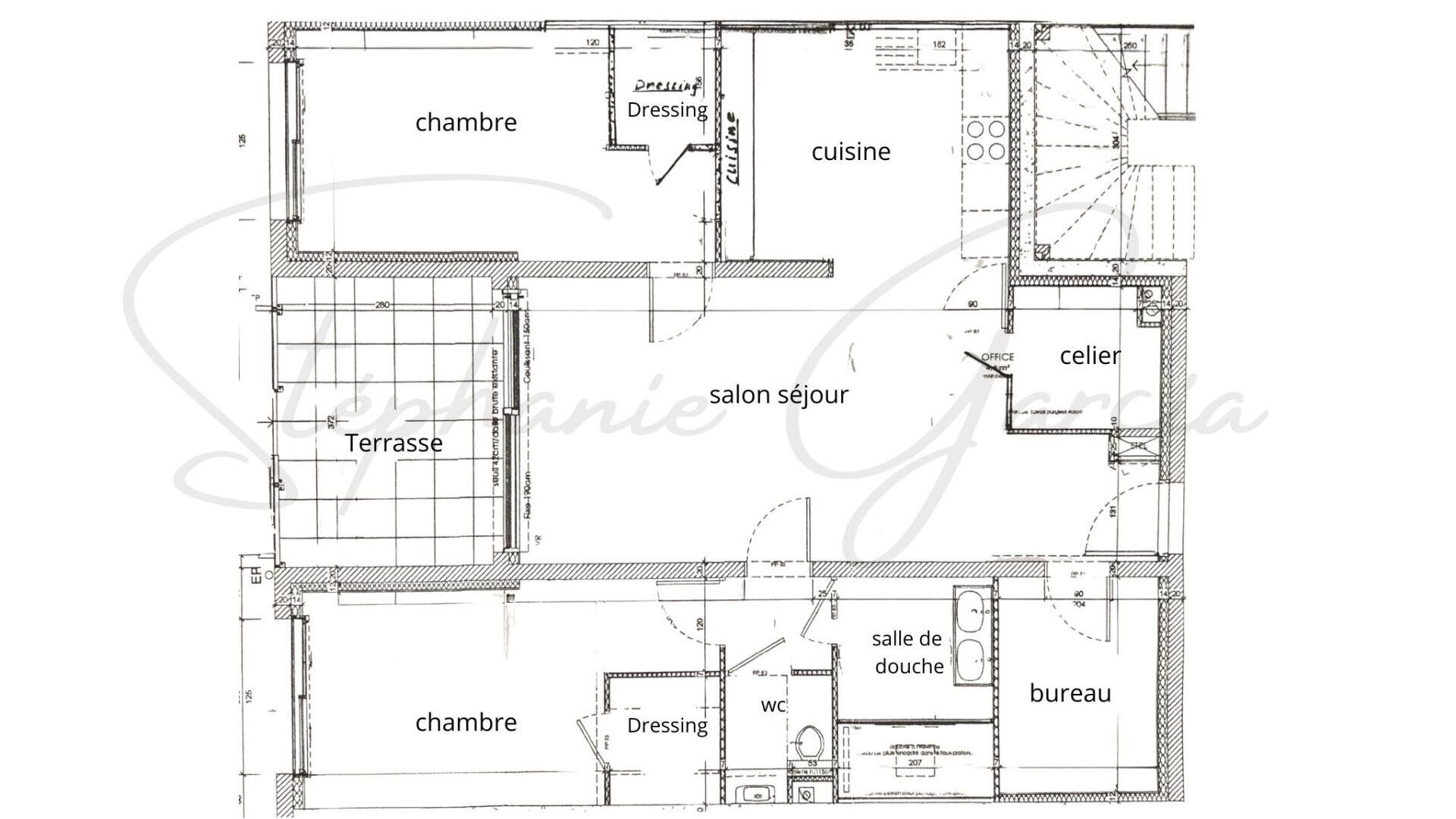
Iad France - Jérôme Moreira vous propose : Spécial investisseur - Appartement rénové de 4 pièces avec parking à Gueugnon Situé au cOEur de la charmante ville de Gueugnon, cet appartement rénové de 79 m² offre un cadre de vie confortable et pratique. Idéal pour une famille ou des colocataires, cet appartement de 4 pièces comprend 3 chambres spacieuses, un salon lumineux, une salle d'eau, et un WC séparé. La rénovation récente garantit un intérieur moderne et fonctionnel, prêt à accueillir ses nouveaux occupants. L'appartement se trouve au premier étage d'un immeuble de niveaux et date de 1900, offrant ainsi un charme unique allié au confort contemporain. Les équipements de confort tels que la fibre optique, la ventilation mécanique, la télévision par câble, le chauffage individuel par radiateurs et l'assainissement au réseau assurent un quotidien agréable et connecté. Un espace de parking est inclus, offrant la commodité d'un stationnement sécurisé. De plus, vous disposez d'une cave en pour le rangement supplémentaire. Possibilité d'acquérir en complément une seconde place de parking et / ou un garage. Copropriété en cours de création. Taux de rentabilité brut : 6,27 % La résidence, bien que non fermée, bénéficie d'un environnement calme et agréable. Situé à proximité des commerces locaux et des écoles, cet appartement offre un cadre de vie pratique et convivial. Ne manquez pas cette opportunité d'investir dans un appartement rénové, idéalement situé à Gueugnon : contactez moi dès à présent pour tous renseignements complémentaires et / ou une éventuelle visite pour découvrir tous les atouts de ce bien immobilier. Honoraires d'agence à la charge du vendeur. Information d'affichage énergétique sur ce bien : classe ENERGIE D indice 188 et classe CLIMAT B indice 6. Les informations sur les risques auxquels ce bien est exposé, y compris l'obligation légale de débroussaillement, sont disponibles sur le site Géorisques : http://www.georisques.gouv.fr. La présente annonce immobilière a été rédigée sous la responsabilité éditoriale de M Jérôme Moreira mandataire indépendant en immobilier (sans détention de fonds), agent commercial de la SAS I@D France immatriculé au RSAC de MACON sous le numéro 912381589, titulaire de la carte de démarchage immobilier pour le compte de la société I@D France SAS.
À proximité
Recherche des commodités à proximité...
Détails de l'annonce
Localisation
Ville
Gueugnon
Pays
FR
Diagnostics / Énergie
Diagnostic DPE
188
Diagnostic GES
6
Surfaces / Pièces / Composition
Étage
8
Chauffage et diagnostics
Diagnostic de performance énergétique (DPE)
a
b
c
d
e
f
g
Indice d'émission de gaz à effet de serre (GES)
a
b
c
d
e
f
g
