Type
Bien immobilierTarif
140 000 €Chambres
2Salles de bain
0Vente Maison/villa 3 pièces
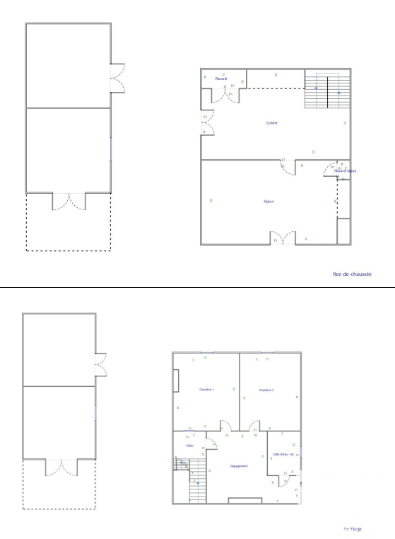
Iad France - Elisabeth Carl vous propose : Charmante maison à rafraichir avec garage à Saint-Chamassy - Idéal pour les Amoureux de Nature et de Pêche ! Située à la limite du village de Saint-Chamassy, cette maison traditionnelle de 70 m² à remettre au gout du jour, offre un véritable potentiel pour les amateurs de projets de rénovation. Construite avant 1948, elle se compose de 3 pièces dont 1 salon, 2 chambres, 1 salle d'eau, 1 cuisine séparée et 1 WC, le tout sur deux niveau. De plus le bien dispose de 2 annexes pouvant être aménagées aux grès de vos envies (gîtes, ateliers. ) La maison dispose d'un garage, idéal pour stationner un véhicule en toute sécurité. De plus, vous bénéficiez d'un environnement privilégié avec son accès direct à la Dordogne. À seulement 5 km de Limeuil et à 30 km de Sarlat, vous pourrez profiter de la beauté naturelle environnante et des nombreux points d'intérêt de la région. Bien que la maison nécessite des travaux pour lui laisser l'opportunité de prouver son potentiel, elle offre un cadre de vie authentique et un potentiel d'aménagement intéressant. Avec un peu d'imagination et d'investissement, vous pourrez façonner cette maison à votre goût et en faire un véritable havre de paix. Ne manquez pas cette opportunité unique de devenir propriétaire d'une maison à rénover dans un cadre enchanteur. Contactez-moi dès maintenant pour organiser une visite et découvrir tout le potentiel de cette maison à Saint-Chamassy. Honoraires d'agence à la charge du vendeur. Information d'affichage énergétique sur ce bien : classe ENERGIE C indice 175 et classe CLIMAT A indice 5. Les informations sur les risques auxquels ce bien est exposé, y compris l'obligation légale de débroussaillement, sont disponibles sur le site Géorisques : http://www.georisques.gouv.fr. La présente annonce immobilière a été rédigée sous la responsabilité éditoriale de Mme Elisabeth Carl mandataire indépendant en immobilier (sans détention de fonds), agent commercial de la SAS I@D France immatriculé au RSAC de Bergerac sous le numéro 802353045, titulaire de la carte de démarchage immobilier pour le compte de la société I@D France SAS.
Cette semaine
Cette annonce est récente
À proximité
Recherche des commodités à proximité...
Détails de l'annonce
Localisation
Ville
Saint-Chamassy
Pays
FR
Diagnostics / Énergie
Diagnostic DPE
175
Diagnostic GES
5
Chauffage et diagnostics
Diagnostic de performance énergétique (DPE)
a
b
c
d
e
f
g
Indice d'émission de gaz à effet de serre (GES)
a
b
c
d
e
f
g
