Type
Bien immobilierTarif
420 000 €Chambres
2Salles de bain
0Vente Appartement 3 pièces
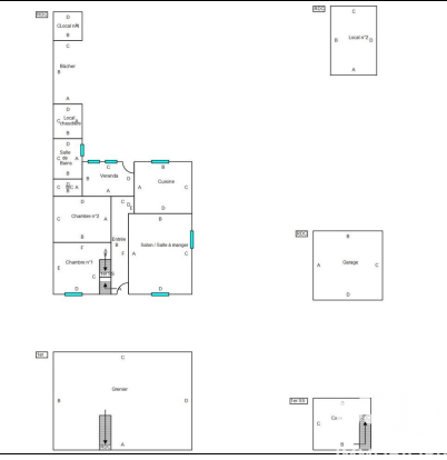
Iad France - Marion Faure vous propose : Rare – T3 de 85 m² QUARTIER DES CHALETS avec PARKING Alliance du calme et du confort moderne dans un immeuble Art Déco Idéalement situé au cOEur du très recherché quartier des Chalets, donnant sur une jolie impasse paisible, cet appartement de 85 m² offre un cadre de vie à la fois calme et lumineux. Au rez-de-chaussée d’un immeuble Art Déco des années 1950, entièrement rénové en 2007 et parfaitement entretenu, il séduit par ses volumes généreux (belle hauteur sous plafond) et son ambiance chaleureuse. * L’espace de vie comprend * •un vaste séjour avec cuisine ouverte équipée, idéal pour recevoir, •un dégagement fermé qui dessert : •deux chambres confortables de 11,5 m² et 13 m², •une salle de bain fonctionnelle avec baignoire et espace buanderie séparé, •un WC indépendant. En très bon état, l’appartement bénéficie d’un système de chauffage réversible avec climatisation gainable, assurant un confort optimal toute l’année. Une place de stationnement aérienne sécurisée et une grande cave viennent compléter ce bien rare dans le secteur. Petite copropriété soignée de 7 lots principaux Une adresse prisée, un bien prêt à vivre, un cadre de vie unique au cOEur de Toulouse. PRIX DE VENTE : 420 000 €
Honoraires à la charge du vendeur. La presente annonce immobiliere vise 3 lots situés dans une copropriété de 21 lots au total et ne faisant l'objet d'aucune procédure en cours citée à l'article L. 721-1 du code de la construction et de l'habitation. Montant moyen mensuel de charges déclaré par le vendeur : 100€ par mois (soit 1200 € annuel). Honoraires d'agence à la charge du vendeur. Information d'affichage énergétique sur ce bien : classe ENERGIE C indice 169 et classe CLIMAT A indice 5. Les informations sur les risques auxquels ce bien est exposé, y compris l'obligation légale de débroussaillement, sont disponibles sur le site Géorisques : http://www.georisques.gouv.fr. La présente annonce immobilière a été rédigée sous la responsabilité éditoriale de Mme Marion Faure mandataire indépendant en immobilier (sans détention de fonds), agent commercial de la SAS I@D France immatriculé au RSAC de TOULOUSE sous le numéro 990446130, titulaire de la carte de démarchage immobilier pour le compte de la société I@D France SAS.
À proximité
Recherche des commodités à proximité...
Détails de l'annonce
Localisation
Ville
Toulouse
Pays
FR
Diagnostics / Énergie
Diagnostic DPE
169
Diagnostic GES
5
Surfaces / Pièces / Composition
Nombre d’étages
2
Chauffage et diagnostics
Diagnostic de performance énergétique (DPE)
a
b
c
d
e
f
g
Indice d'émission de gaz à effet de serre (GES)
a
b
c
d
e
f
g
