Type
Bien immobilierTarif
804 000 €Chambres
2Salles de bain
0Vente Appartement 4 pièces
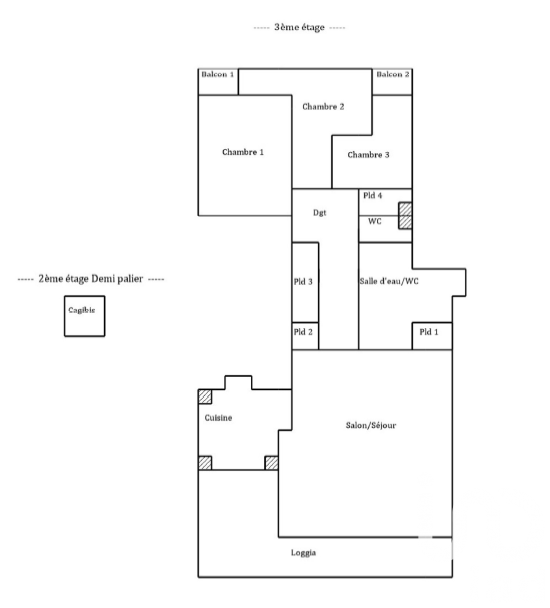
Iad France - Sandrine DE OLIVEIRA vous propose : OPPORTUNITE À SAISIR - APPARTEMENT TYPE 4 - ASCENSEUR - GARAGE ! Au cOEur de la station balnéaire prisée des Sables-d'Olonne je vous invite à découvrir ce bel appartement situé au 3ème étage d'une résidence sécurisée avec ascenseur. Avec une surface totale de 76 m², le bien se compose d'un grand salon / séjour de 30 m² très lumineux ouvert sur une loggia face mer, d'une cuisine aménagée, d'un dégagement avec placards, d'une salle d'eau avec wc, d'un second wc séparé, de deux chambres avec balcons privatifs, d'un bureau pouvant faire office de troisième chambre et d'un cagibis sur le palier. Un garage de 15 m² avec porte motorisée (électricité et prise de courant) complète l'ensemble. Le + : ravalement effectué récemment. Ne pas hésiter à me contacter pour de plus amples renseignements. La presente annonce immobiliere vise 2 lots situés dans une copropriété de 10 lots au total et ne faisant l'objet d'aucune procédure en cours citée à l'article L. 721-1 du code de la construction et de l'habitation. Montant moyen mensuel de charges déclaré par le vendeur : 150€ par mois (soit 1800 € annuel). Honoraires d'agence à la charge du vendeur. Information d'affichage énergétique sur ce bien : classe ENERGIE D indice 242 et classe CLIMAT D indice 46. Les informations sur les risques auxquels ce bien est exposé, y compris l'obligation légale de débroussaillement, sont disponibles sur le site Géorisques : http://www.georisques.gouv.fr. La présente annonce immobilière a été rédigée sous la responsabilité éditoriale de Mme Sandrine DE OLIVEIRA mandataire indépendant en immobilier (sans détention de fonds), agent commercial de la SAS I@D France immatriculé au RSAC de LA ROCHE SUR YON sous le numéro 834941874, titulaire de la carte de démarchage immobilier pour le compte de la société I@D France SAS.
À proximité
Recherche des commodités à proximité...
Détails de l'annonce
Localisation
Ville
Les Sables-d'Olonne
Pays
FR
Diagnostics / Énergie
Diagnostic DPE
242
Diagnostic GES
46
Surfaces / Pièces / Composition
Nombre d’étages
7
Étage
3
Chauffage et diagnostics
Diagnostic de performance énergétique (DPE)
a
b
c
d
e
f
g
Indice d'émission de gaz à effet de serre (GES)
a
b
c
d
e
f
g
