Type
Bien immobilierTarif
202 000 €Chambres
0Salles de bain
0Vente Bungalow 3 pièces
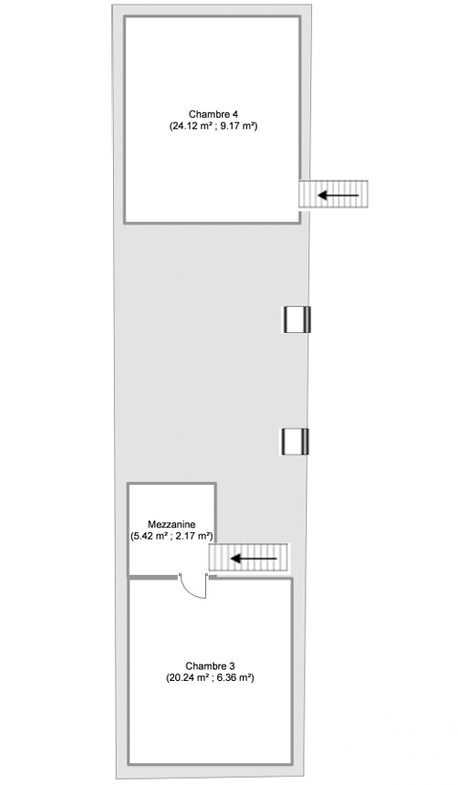
Iad France - Tiffany Tronel vous propose : Envie d’un coin de paradis à Saint-François ? Ne bougez plus, j’ai ce qu’il vous faut… Dans une copropriété intime de 6 bungalows, ce charmant bien de 28 m² habitables vous offre 2 chambres, une cuisine ouverte sur séjour et une agréable terrasse, un jardin privatif de 168 m² pour profiter de l'extérieur en toute tranquillité, le tout niché dans un écrin de verdure. Profitez d’un espace commun avec piscine pour vous rafraîchir et d’un cadre calme, à proximité des plus belles plages et des commodités de Saint-François. Parfait pour un pied-à-terre ou un investissement locatif ! Contactez-moi pour plus d'informations. Honoraires d'agence à la charge du vendeur. Bien non soumis au DPE. Les informations sur les risques auxquels ce bien est exposé, y compris l'obligation légale de débroussaillement, sont disponibles sur le site Géorisques : http://www.georisques.gouv.fr. La présente annonce immobilière a été rédigée sous la responsabilité éditoriale de Mme Tiffany Tronel mandataire indépendant en immobilier (sans détention de fonds), agent commercial de la SAS I@D France immatriculé au RSAC de Pointe à Pitre sous le numéro 952308930, titulaire de la carte de démarchage immobilier pour le compte de la société I@D France SAS.
À proximité
Recherche des commodités à proximité...
Détails de l'annonce
Localisation
Ville
Saint-François
Pays
FR
Diagnostics / Énergie
Diagnostic DPE
10
Surfaces / Pièces / Composition
Nombre d’étages
Chauffage et diagnostics
Diagnostic de performance énergétique (DPE)
a
b
c
d
e
f
g
Indice d'émission de gaz à effet de serre (GES)
a
b
c
d
e
f
g
