Type
Bien immobilierTarif
90 000 €Chambres
2Salles de bain
0Vente Appartement 3 pièces
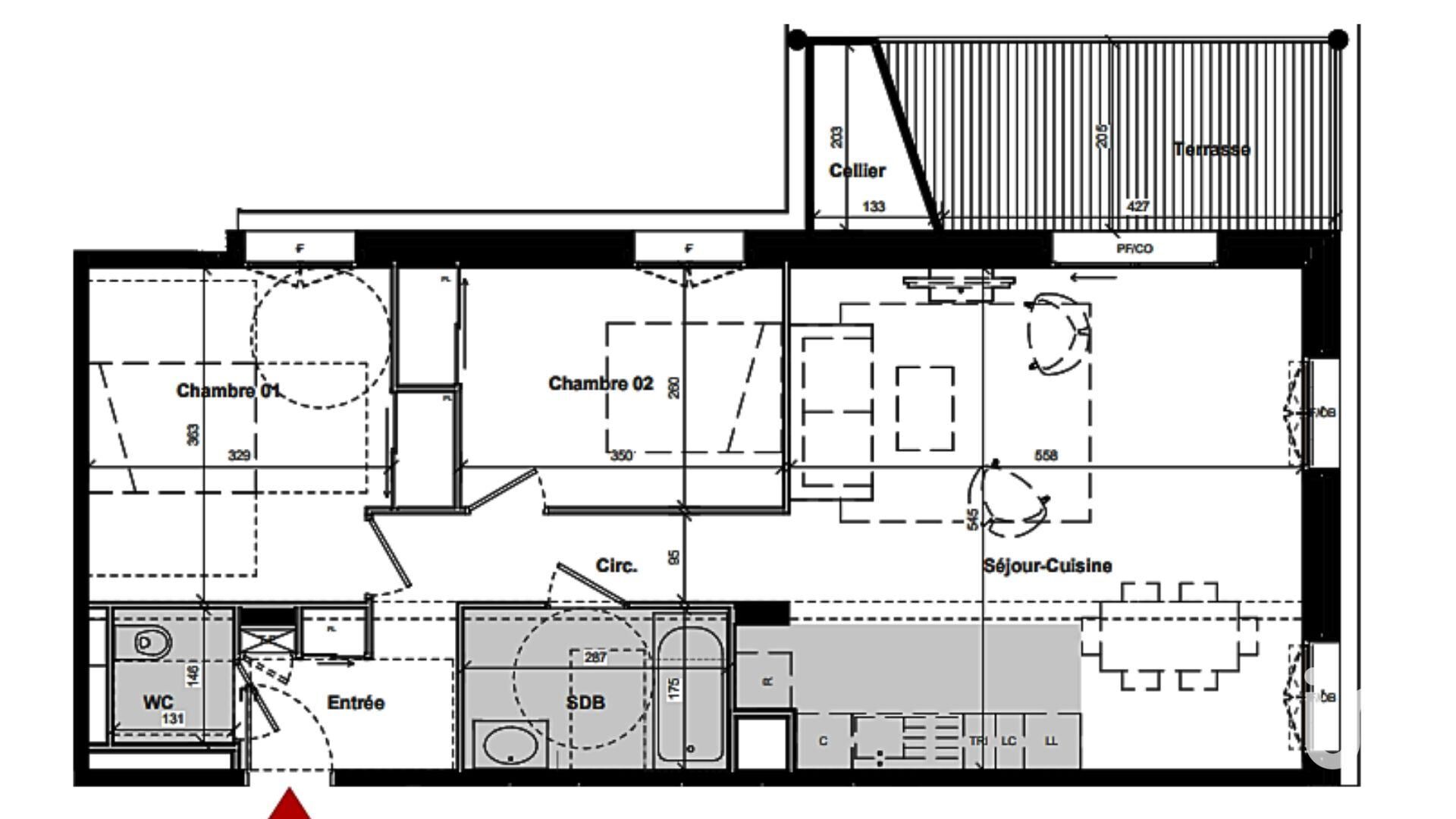
Iad France - Emmanuel Clement vous propose : Appartement de type T3 situé au cOEur de Châlons-en-Champagne, niché au sein d'un immeuble de 3 étages. Avec une surface habitable de 87 m², cet appartement présente de beaux volumes, des parquets chêne. Toutefois des travaux sont prévus dans la copropriétés ce qui explique sont prix attractif. En entrant dans ce bien, vous serez immédiatement séduit par l'espace de vie principal très lumineux. Côté nuit, deux belles chambres avec parquet. La salle de bain dispose d'une baignoires et d'une douche. Les toilettes sont séparées. Côté équipements, vous bénéficierez de la fibre optique, d'un système de chauffage individuel au gaz et de volets électriques. Idéalement situé dans Châlons-en-Champagne, entre la gare et la mairie, vous profiterez de la proximité des commerces, des écoles et des transports en commun pour faciliter votre quotidien. Contactez moi pour plus d'information sur les travaux à prévoir. La presente annonce immobiliere vise 1 lot situé dans une copropriété de 5 lots au total et ne faisant l'objet d'aucune procédure en cours citée à l'article L. 721-1 du code de la construction et de l'habitation. Montant moyen mensuel de charges déclaré par le vendeur : 0€ par mois (soit 0 € annuel). Honoraires d'agence à la charge du vendeur. Information d'affichage énergétique sur ce bien : classe ENERGIE E indice 275 et classe CLIMAT E indice 59. Les informations sur les risques auxquels ce bien est exposé, y compris l'obligation légale de débroussaillement, sont disponibles sur le site Géorisques : http://www.georisques.gouv.fr. La présente annonce immobilière a été rédigée sous la responsabilité éditoriale de M Emmanuel Clement mandataire indépendant en immobilier (sans détention de fonds), agent commercial de la SAS I@D France immatriculé au RSAC de CHALONS EN CHAMPAGNE sous le numéro 512341488, titulaire de la carte de démarchage immobilier pour le compte de la société I@D France SAS.
Ce mois
Cette annonce est récente
À proximité
Recherche des commodités à proximité...
Détails de l'annonce
Localisation
Ville
Châlons-en-Champagne
Pays
FR
Diagnostics / Énergie
Diagnostic DPE
275
Diagnostic GES
59
Surfaces / Pièces / Composition
Nombre d’étages
4
Chauffage et diagnostics
Diagnostic de performance énergétique (DPE)
a
b
c
d
e
f
g
Indice d'émission de gaz à effet de serre (GES)
a
b
c
d
e
f
g
