Type
Bien immobilierTarif
305 000 €Chambres
0Salles de bain
0Vente Appartement 2 pièces
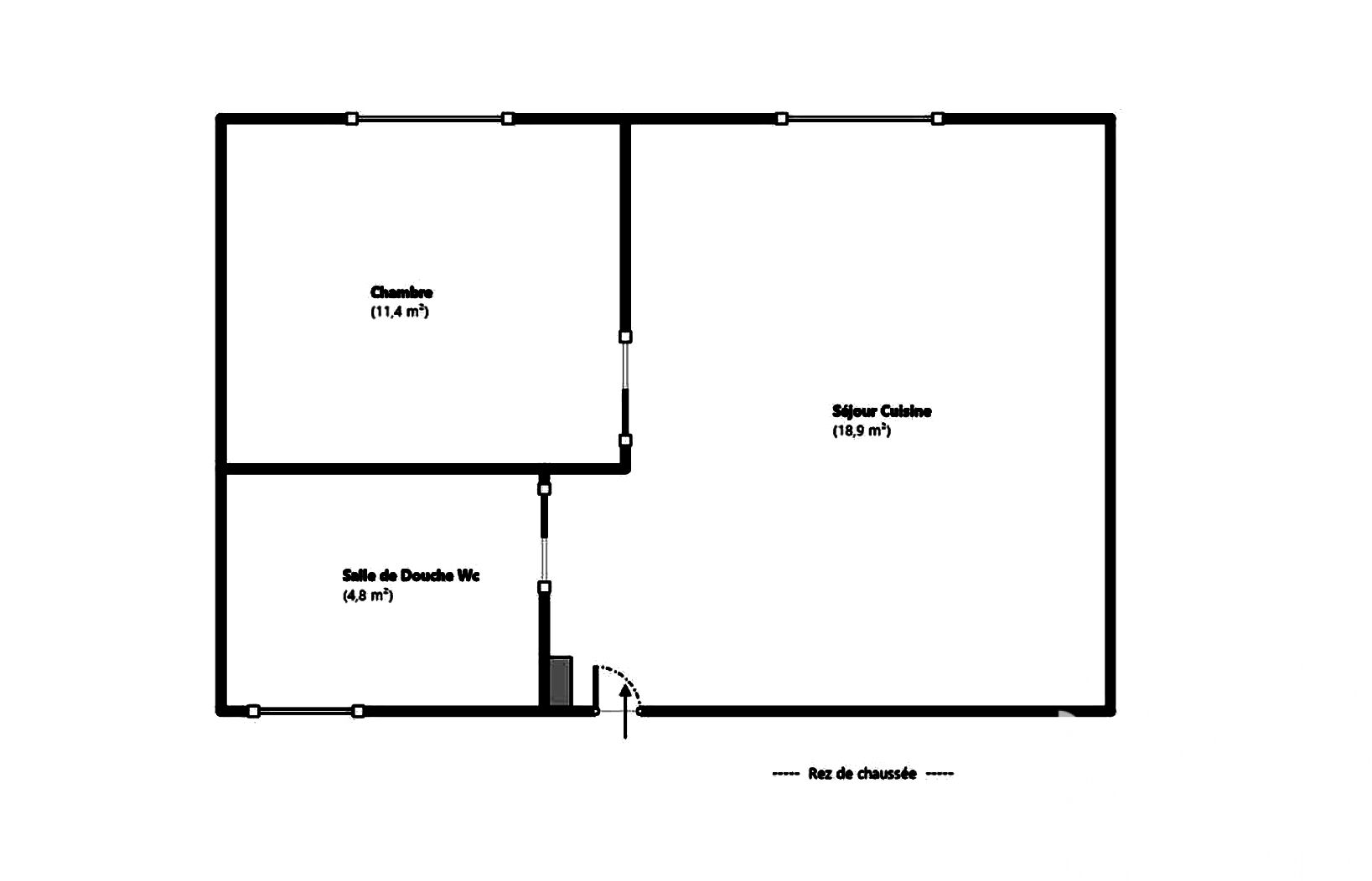
Iad France - Fang Zhang vous propose : Au calme absolu, au fond d’une cour, découvrez ce charmant appartement situé en rez-de-chaussée, à seulement 5 minutes à pied du RER A Vincennes et du métro ligne 1, à proximité immédiate de toutes les commodités (commerces, transports, écoles). L’appartement se compose d’une entrée, d’une cuisine américaine aménagée ouverte sur une agréable pièce de vie avec espace salle à manger, d’une chambre avec mezzanine et porte coulissante, ainsi que d’une salle d’eau avec WC. En très bon état général, avec un DPE classé D et des charges de copropriété de 103 € par mois, ce bien offre un cadre de vie confortable, idéal pour un premier achat, un pied-à-terre ou un investissement locatif. Une cave en sous-sol complète ce bien. Pour plus d’informations ou pour organiser une visite, n’hésitez pas à nous contacter. La presente annonce immobiliere vise 1 lot situé dans une copropriété de 80 lots au total et ne faisant l'objet d'aucune procédure en cours citée à l'article L. 721-1 du code de la construction et de l'habitation. Montant moyen mensuel de charges déclaré par le vendeur : 101€ par mois (soit 1212 € annuel). Honoraires d'agence à la charge du vendeur. Information d'affichage énergétique sur ce bien : classe ENERGIE D indice 214 et classe CLIMAT B indice 8. Les informations sur les risques auxquels ce bien est exposé, y compris l'obligation légale de débroussaillement, sont disponibles sur le site Géorisques : http://www.georisques.gouv.fr. La présente annonce immobilière a été rédigée sous la responsabilité éditoriale de Mme Fang Zhang mandataire indépendant en immobilier (sans détention de fonds), agent commercial de la SAS I@D France immatriculé au RSAC de Créteil sous le numéro 513105601, titulaire de la carte de démarchage immobilier pour le compte de la société I@D France SAS.
Cette semaine
Cette annonce est récente
À proximité
Recherche des commodités à proximité...
Détails de l'annonce
Localisation
Ville
Vincennes
Pays
FR
Diagnostics / Énergie
Diagnostic DPE
214
Diagnostic GES
8
Surfaces / Pièces / Composition
Nombre d’étages
4
Chauffage et diagnostics
Diagnostic de performance énergétique (DPE)
a
b
c
d
e
f
g
Indice d'émission de gaz à effet de serre (GES)
a
b
c
d
e
f
g
