Type
Bien immobilierTarif
259 000 €Chambres
2Salles de bain
0Vente Appartement 3 pièces
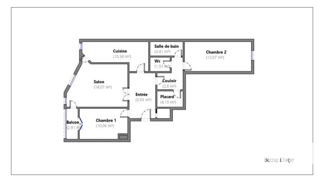
Iad France - Nathalie Guedj vous propose : APPARTEMENT T3 À 2 PAS DU MÉTRO LIGNE 8 Créteil l'échat ! BEAU et LUMINEUX 3 pièces de 68 m² situé au 8 ème et DERNIER ÉTAGE d'une résidence SÉCURISÉE et TRÈS ENTRETENUE. Ce bien fonctionnel est composé d'une entrée avec rangement, d'un séjour avec balcon, d'une cuisine séparée, de 2 chambres, d'une salle de bain et d'un WC séparé. * BOX FERMÉ EN SOUS SOL * Possibilité de créer un séjour avec cuisine ouverte pour une belle pièce à vivre de plus de 28 m² Idéal pour une famille, un primo accédant, ou un investissement locatif. Bien loué précédemment 1300 CC Possibilité de COLOCATION avec 3 CHAMBRES après modification des plans. Localisation tout proche de l'hôpital Henri-Mondor et de la faculté de médecine. Quelques rafraîchissements à prévoir mais sans aucun doute, un énorme potentiel. À visiter sans tarder ! Les photos de projection vous permettent de réaliser le potentiel de ce bien ! Pour plus de renseignements n'hésitez pas à me contacter. La presente annonce immobiliere vise 2 lots situés dans une copropriété de 107 lots au total et ne faisant l'objet d'aucune procédure en cours citée à l'article L. 721-1 du code de la construction et de l'habitation. Montant moyen mensuel de charges déclaré par le vendeur : 290€ par mois (soit 3480 € annuel). Honoraires d'agence à la charge du vendeur. Information d'affichage énergétique sur ce bien : classe ENERGIE E indice 307 et classe CLIMAT C indice 25. Les informations sur les risques auxquels ce bien est exposé, y compris l'obligation légale de débroussaillement, sont disponibles sur le site Géorisques : http://www.georisques.gouv.fr. La présente annonce immobilière a été rédigée sous la responsabilité éditoriale de Mme Nathalie Guedj mandataire indépendant en immobilier (sans détention de fonds), agent commercial de la SAS I@D France immatriculé au RSAC de CRETEIL sous le numéro 352683742, titulaire de la carte de démarchage immobilier pour le compte de la société I@D France SAS.
Ce mois
Cette annonce est récente
À proximité
Recherche des commodités à proximité...
Détails de l'annonce
Localisation
Ville
Créteil
Pays
FR
Diagnostics / Énergie
Diagnostic DPE
307
Diagnostic GES
25
Surfaces / Pièces / Composition
Nombre d’étages
8
Étage
8
Chauffage et diagnostics
Diagnostic de performance énergétique (DPE)
a
b
c
d
e
f
g
Indice d'émission de gaz à effet de serre (GES)
a
b
c
d
e
f
g
