Type
Bien immobilierTarif
258 000 €Chambres
1Salles de bain
0Vente Appartement 2 pièces
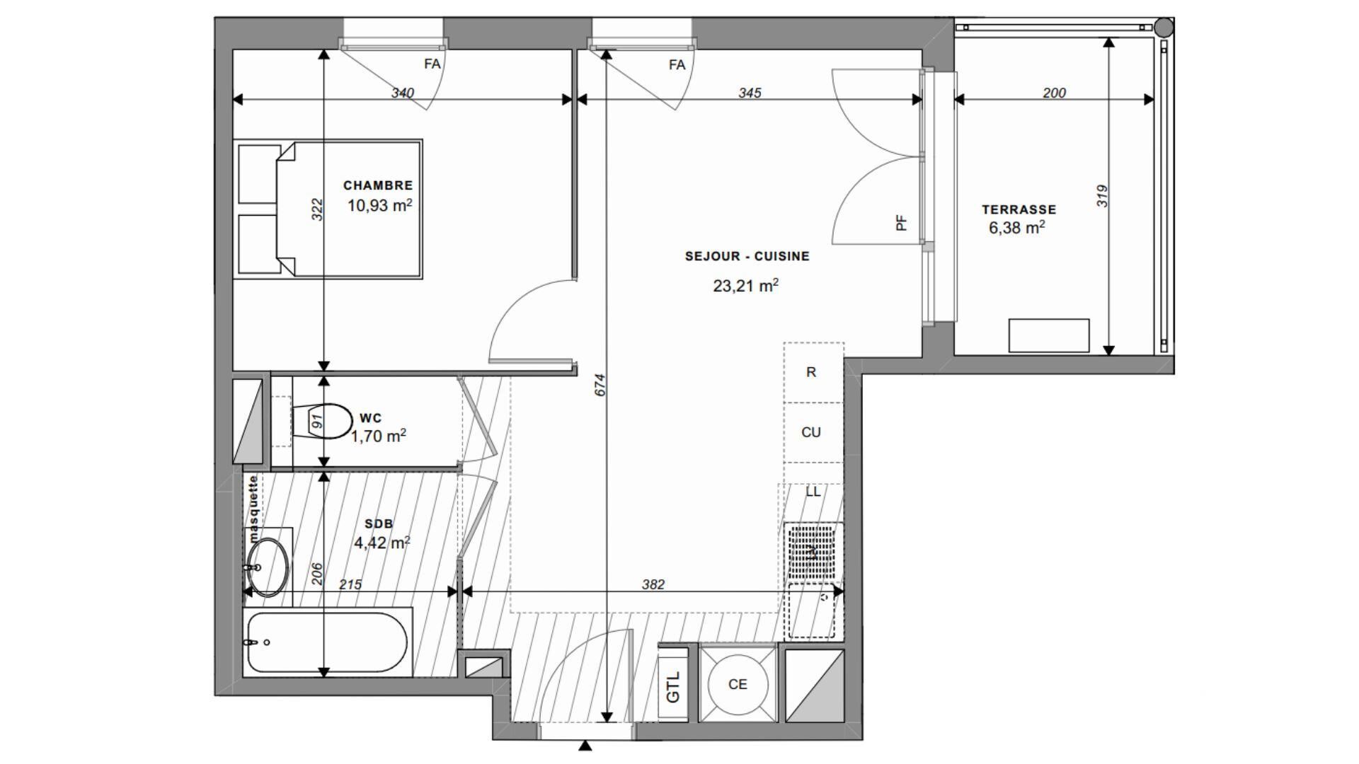
Iad France - Sarah Rozière (06 99 86 19 42) vous propose : Appartement T2 avec terrasse à Bormes-les-Mimosas. Située avenue Lou Mistraou à Bormes-les-Mimosas, la résidence Le Domaine des Pins allie élégance contemporaine et douceur provençale. Entre mer turquoise et collines verdoyantes du village médiéval, cette adresse offre un cadre de vie serein, paysager et ensoleillé, à proximité immédiate des commerces, des écoles et des plages. Disponible 2027. Un appartement raffiné : Situé au 1 er étage, cet appartement T2 de 40 m² environ habitables se prolonge par une terrasse de 6 m² environ. - Séjour / cuisine de 23 m² environ. - Une chambre confortable. - Salle de bain moderne et WC séparé. - Annexe incluse : un parking. De belles prestations : - Chauffage du séjour par pompe à chaleur monosplit. - Volets roulants motorisés et menuiseries PVC double vitrage. - Résidence sécurisée avec ascenseur et stationnements en sous-sol. L’art de vivre à Bormes-les-Mimosas : - À quelques minutes des plages du Lavandou, de la Favière et de l’Anglade. - Commerces, écoles, services et marché hebdomadaire accessibles à pied. - À proximité de la forêt du Dom et du massif des Maures. - Arrêt de bus à 230 m desservant Le Lavandou et le village historique. - Quartier résidentiel calme et convivial, idéal pour une résidence principale ou un pied-à-terre. N’hésitez pas à me contacter pour plus d’informations ou pour un accompagnement sur mesure. Honoraires d’agence à la charge du vendeur. Bien non soumis au DPE. Les informations sur les risques auxquels ce bien est exposé sont disponibles sur le site Géorisques : www.georisques.gouv.fr. La présente annonce immobilière a été rédigée sous la responsabilité éditoriale de Mlle Sarah Rozière EI (ID 83696), mandataire indépendant en immobilier (sans détention de fonds), agent commercial de la SAS I@D France immatriculé au RSAC de Clermont-Ferrand sous le numéro 978616993, titulaire de la carte de démarchage immobilier pour le compte de la société I@D France SAS. Retrouvez tous nos biens sur notre site internet. www.iadfrance.fr.
À proximité
Recherche des commodités à proximité...
Détails de l'annonce
Localisation
Ville
Bormes-les-Mimosas
Pays
FR
Surfaces / Pièces / Composition
Nombre d’étages
2
Chauffage et diagnostics
Diagnostic de performance énergétique (DPE)
a
b
c
d
e
f
g
Indice d'émission de gaz à effet de serre (GES)
a
b
c
d
e
f
g
