Type
Bien immobilierTarif
119 782 €Chambres
3Salles de bain
0Vente Maison de ville 5 pièces
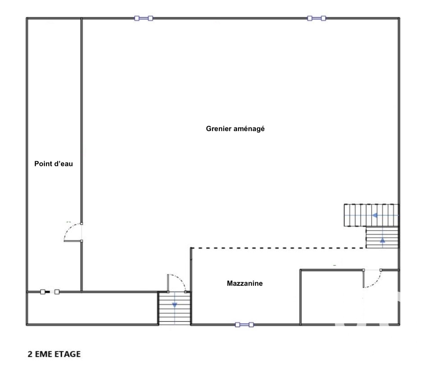
Iad France - Amandine Chevalier vous propose : Superbe Maison de Ville Rénovée avec Garage, plein coeur de ville à Mouchard (Jura, 39) Idéal famille nombreuse, résidence secondaire, gîte, ou activité libérale. Située dans la charmante commune de Mouchard, gare TGV franc comtoise, cette maison de ville rénovée sur 3 niveaux offre un cadre de vie confortable et pratique pour toute la famille. Avec une surface de 142 m², cette propriété offre de généreux espaces pour se sentir à l'aise et profiter pleinement de chaque pièce. Au 1er, vous découvrirez un spacieux séjour lumineux de près de 40 m² comprenant salon et salle à manger, une cuisine séparée fonctionnelle pour des moments de préparation de repas en famille, un WC et une salle d'eau pour plus de confort. 2 chambres chaleureuses offrant des espaces privés paisibles, Au 2ème étage, un grenier aménagé d'une surface d'environ 50 m² au sol, à repenser, en suite parentale, espace de jeu, salle de cinéma ou pour la création de chambres supplémentaires avec point d'eau. Le rez-de chaussée comporte 3 pièces dont une avec point d'eau et WC et faisait l'objet d'une activité libérale, idéalement située à proximité immédiate d'un parking public et des commerces de première nécessité. Cet espace pourrait devenir un 2ème appartement d'environ 40 à 50 m², pour location, hébergement d'un ainé ou d'un étudiant (lycée professionnel du bois), ou même une location saisonnière. Les différents espaces de vie sont agencés de manière optimale pour répondre aux besoins de toute la famille. Le garage attenant assure un espace de stationnement sécurisé pour 2 véhicules, motos, camping car ou espace de stockage supplémentaire. À noter : note énergétique positive grâce à sa cheminée à granulés l'hiver, et sa climatisation l'été, conjuguant vie citadine et calme à la maison. Double vitrage 4x20x4 pour compléter l'isolation phonique (bord de rue) et thermique et préserver la tranquillité tout en profitant des avantages de la ville. La maison bénéficie d'une rénovation récente (toiture, chauffage, fenêtres isolantes, climatisation), offrant ainsi un cadre de vie moderne et confortable. Située à proximité des commodités, des écoles et des transports en commun, cette maison de ville à Mouchard est une opportunité idéale pour ceux à la recherche d'un logement confortable et fonctionnel. Une visite s'impose pour apprécier pleinement le charme et le potentiel de cette propriété. Mouchard, gare TGV sur la ligne Paris-Laussanne, école primaire et maternelle, 10mn de la cité thermale de Salins Les Bains, de son Casino, et de sa Grande Saline inscrite au Patrimoine mondial de l’Unesco depuis 2009,35mn de Champagnole, 45mn de Besançon. La presente annonce immobiliere vise 3 lots situés dans une copropriété de 6 lots au total et ne faisant l'objet d'aucune procédure en cours citée à l'article L. 721-1 du code de la construction et de l'habitation. Montant moyen mensuel de charges déclaré par le vendeur : 8.33€ par mois (soit 100 € annuel). Honoraires d'agence à la charge du vendeur. Information d'affichage énergétique sur ce bien : classe ENERGIE D indice 243 et classe CLIMAT B indice 7. Les informations sur les risques auxquels ce bien est exposé, y compris l'obligation légale de débroussaillement, sont disponibles sur le site Géorisques : http://www.georisques.gouv.fr. La présente annonce immobilière a été rédigée sous la responsabilité éditoriale de Mme Amandine Chevalier mandataire indépendant en immobilier (sans détention de fonds), agent commercial de la SAS I@D France immatriculé au RSAC de lons-le-saunier sous le numéro 889084752, titulaire de la carte de démarchage immobilier pour le compte de la société I@D France SAS.
Nouveau
Cette annonce est récente
À proximité
Recherche des commodités à proximité...
Détails de l'annonce
Localisation
Ville
Mouchard
Pays
FR
Diagnostics / Énergie
Diagnostic DPE
243
Diagnostic GES
7
Surfaces / Pièces / Composition
Nombre d’étages
3
Chauffage et diagnostics
Diagnostic de performance énergétique (DPE)
a
b
c
d
e
f
g
Indice d'émission de gaz à effet de serre (GES)
a
b
c
d
e
f
g
