Type
Bien immobilierTarif
169 000 €Chambres
1Salles de bain
0Vente Appartement 2 pièces
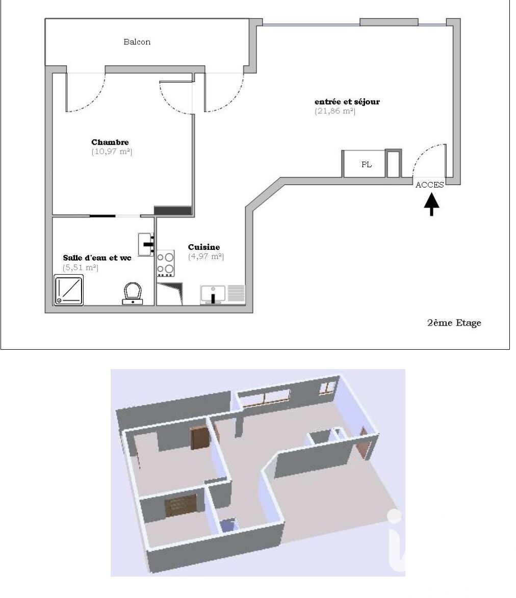
Iad France - Lucie Legaud-Surirey vous propose : 2 pièces lumineux avec balcon et parking – Résidence récente en centre-ville Au cOEur du centre-ville d’Achères, dans une résidence récente de 2012 avec ascenseur, découvrez cet agréable appartement 2 pièces de 43 m², lumineux et fonctionnel. Situé au 2ᵉ étage, il offre un cadre de vie pratique au quotidien, à proximité immédiate des commerces, services et transports. L’appartement se compose : • d’un séjour lumineux ouvrant sur le balcon • d’un espace cuisine à aménager selon vos envies • d’une chambre confortable avec accès au balcon • d’une salle d’eau avec WC, accessible directement depuis la chambre, créant un espace nuit intime de type suite Une place de parking en sous-sol complète ce bien et un local vélos est à disposition dans la résidence. Côté transports, la Gare d’Achères-Ville (RER A et ligne J) se situe à environ 15 minutes à pied, permettant de rejoindre Paris en une trentaine de minutes. Cet appartement constitue une belle opportunité, que ce soit pour un premier achat ou un investissement locatif, dans une résidence récente et bien située. Visites possibles 7 jours sur 7 selon vos disponibilités. La presente annonce immobiliere vise 2 lots situés dans une copropriété de 109 lots au total et ne faisant l'objet d'aucune procédure en cours citée à l'article L. 721-1 du code de la construction et de l'habitation. Montant moyen mensuel de charges déclaré par le vendeur : 170.33€ par mois (soit 2044 € annuel). Honoraires d'agence à la charge du vendeur. Information d'affichage énergétique sur ce bien : classe ENERGIE C indice 71 et classe CLIMAT C indice 11. Les informations sur les risques auxquels ce bien est exposé, y compris l'obligation légale de débroussaillement, sont disponibles sur le site Géorisques : http://www.georisques.gouv.fr. La présente annonce immobilière a été rédigée sous la responsabilité éditoriale de Mme Lucie Legaud-Surirey mandataire indépendant en immobilier (sans détention de fonds), agent commercial de la SAS I@D France immatriculé au RSAC de Versailles sous le numéro 911695799, titulaire de la carte de démarchage immobilier pour le compte de la société I@D France SAS.
À proximité
Recherche des commodités à proximité...
Détails de l'annonce
Localisation
Ville
Achères
Pays
FR
Diagnostics / Énergie
Diagnostic DPE
71
Diagnostic GES
11
Surfaces / Pièces / Composition
Nombre d’étages
4
Étage
2
Chauffage et diagnostics
Diagnostic de performance énergétique (DPE)
a
b
c
d
e
f
g
Indice d'émission de gaz à effet de serre (GES)
a
b
c
d
e
f
g
