Type
Bien immobilierTarif
677 000 €Chambres
4Salles de bain
0Vente Maison/villa 6 pièces
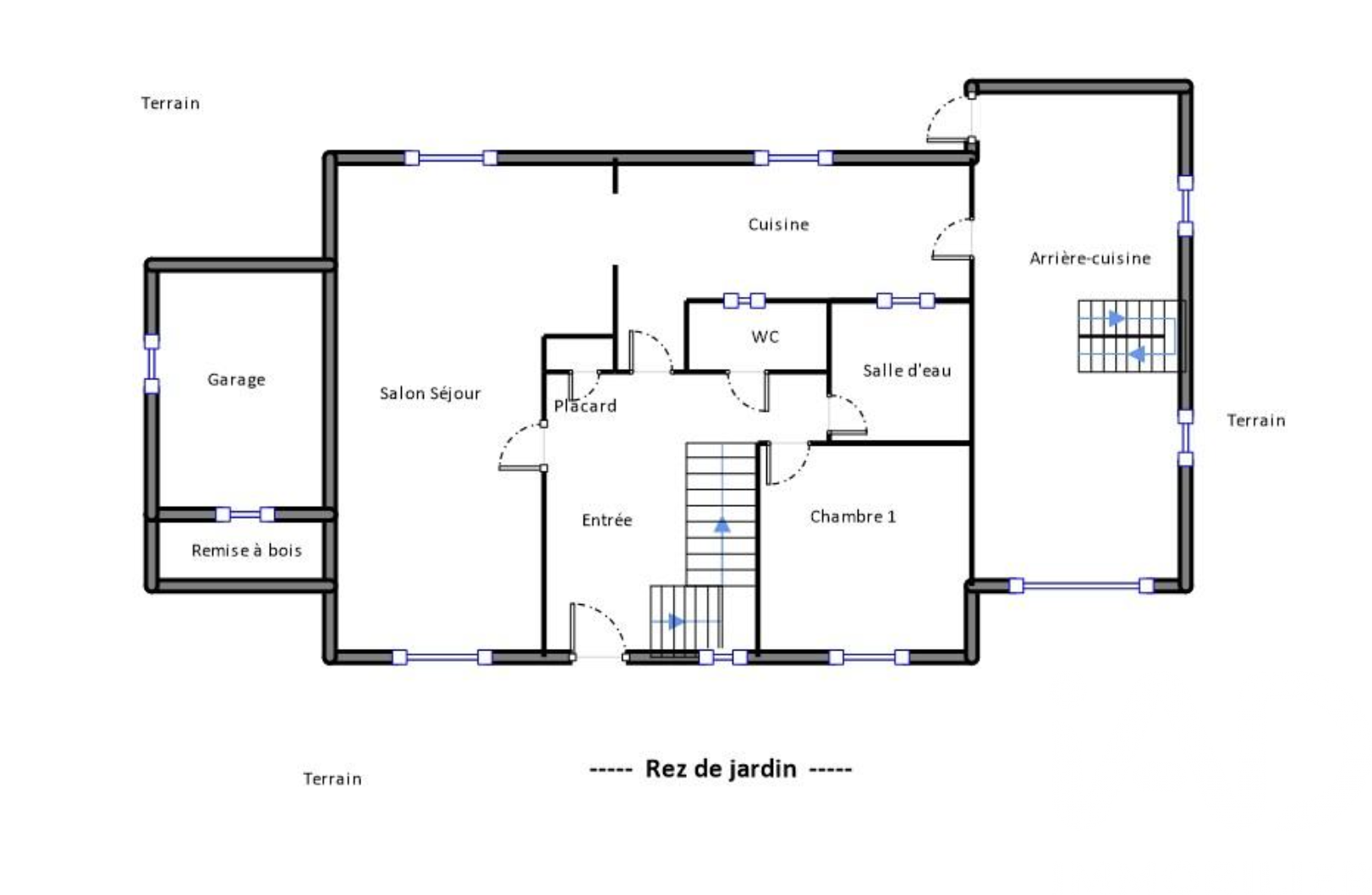
Iad France - Sylvie AUBINEAU vous propose : Nouveauté, Le Croisic Port Val, à 2 pas de la plage, vue mer à l'étage, sur une belle parcelle de plus 2000 m², maison non mitoyenne d’env. 136 m² : au rez-de-chaussée une entrée avec placard, un séjour avec cheminée et une cuisine attenante donnant sur terrasse, une grande arrière-cuisine avec baie vitrée, une chambre, une salle d’eau, wc, à l’étage 2 chambres dont une grande aménagée type dortoir, salle d’eau avec wc. Un accès indépendant pour une quatrième chambre avec salle d’eau et wc. Garage attenant. Grand jardin dans un secteur naturel bord de mer protégé. Nombreuses possibilités d'aménagement et de personnalisation selon vos besoins Un emplacement privilégié à 2 pas de la plage, accès rapide à la Gare SNCF, transports et au port / centre ville du Croisic. Honoraires d'agence à la charge de l'acquéreur. Prix honoraires inclus : 677000 euros. Prix hors honoraires : 650000 euros. Honoraires TTC à la charge de l'acquéreur (4,15% du prix du bien hors honoraires) : 27000 euros. Information d'affichage énergétique sur ce bien : classe ENERGIE D indice 190 et classe CLIMAT B indice 7. Les informations sur les risques auxquels ce bien est exposé, y compris l'obligation légale de débroussaillement, sont disponibles sur le site Géorisques : http://www.georisques.gouv.fr. La présente annonce immobilière a été rédigée sous la responsabilité éditoriale de Mme Sylvie AUBINEAU mandataire indépendant en immobilier (sans détention de fonds), agent commercial de la SAS I@D France immatriculé au RSAC de NANTES sous le numéro 823064829, titulaire de la carte de démarchage immobilier pour le compte de la société I@D France SAS.
Ce mois
Cette annonce est récente
À proximité
Recherche des commodités à proximité...
Détails de l'annonce
Localisation
Ville
Le Croisic
Pays
FR
Diagnostics / Énergie
Diagnostic DPE
190
Diagnostic GES
7
Finances / Mandat / Références
Honoraires
27 €
Surfaces / Pièces / Composition
Nombre d’étages
2
Chauffage et diagnostics
Diagnostic de performance énergétique (DPE)
a
b
c
d
e
f
g
Indice d'émission de gaz à effet de serre (GES)
a
b
c
d
e
f
g
