Type
Bien immobilierTarif
238 000 €Chambres
1Salles de bain
0Vente Appartement 2 pièces
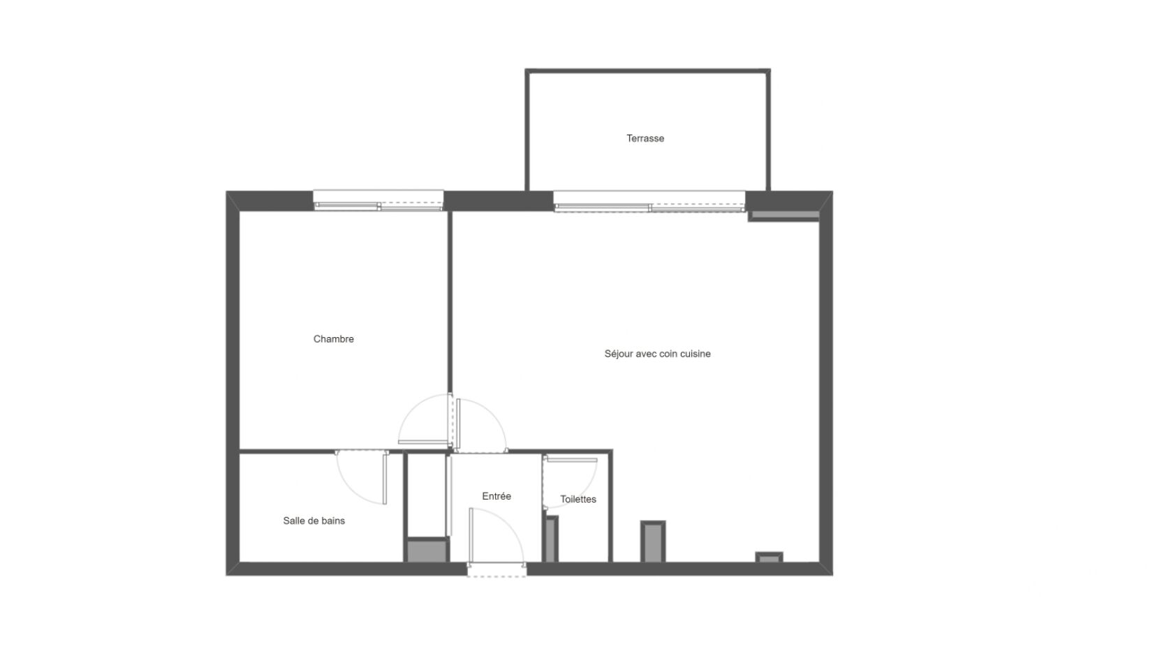
Iad France - Angélique Labesque vous propose : Entièrement refait à neuf, situé au calme d'une résidence de standing entre Guérande et La Baule, un appartement T2 en rez de chaussée. Il comprend : une entrée avec placard et toilettes indépendantes, une chambre avec salle d'eau, une pièce de vie ouverte sur la cuisine aménagée / équipée et sur la terrasse avec sa vue verdoyante. Le plus : une place de stationnement privative en sous-sol La presente annonce immobiliere vise 2 lots situés dans une copropriété de 97 lots au total et ne faisant l'objet d'aucune procédure en cours citée à l'article L. 721-1 du code de la construction et de l'habitation. Montant moyen mensuel de charges déclaré par le vendeur : 83.33€ par mois (soit 1000 € annuel). Honoraires d'agence à la charge du vendeur. Information d'affichage énergétique sur ce bien : classe ENERGIE C indice 158 et classe CLIMAT A indice 4. Les informations sur les risques auxquels ce bien est exposé, y compris l'obligation légale de débroussaillement, sont disponibles sur le site Géorisques : http://www.georisques.gouv.fr. La présente annonce immobilière a été rédigée sous la responsabilité éditoriale de Mme Angélique Labesque mandataire indépendant en immobilier (sans détention de fonds), agent commercial de la SAS I@D France immatriculé au RSAC de saint nazaire sous le numéro 444875371, titulaire de la carte de démarchage immobilier pour le compte de la société I@D France SAS.
À proximité
Recherche des commodités à proximité...
Détails de l'annonce
Localisation
Ville
Guérande
Pays
FR
Diagnostics / Énergie
Diagnostic DPE
158
Diagnostic GES
4
Surfaces / Pièces / Composition
Nombre d’étages
Chauffage et diagnostics
Diagnostic de performance énergétique (DPE)
a
b
c
d
e
f
g
Indice d'émission de gaz à effet de serre (GES)
a
b
c
d
e
f
g
