Type
Bien immobilierTarif
346 500 €Chambres
3Salles de bain
0Vente Maison/villa 4 pièces
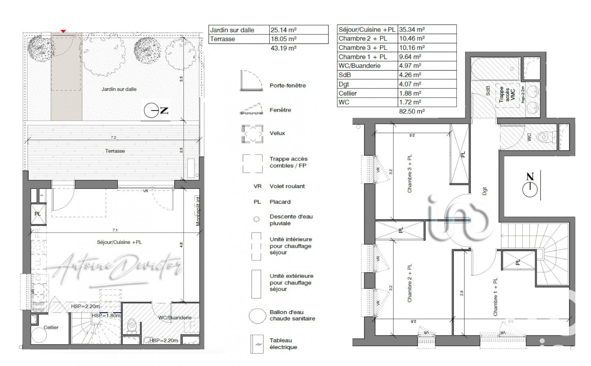
Iad France - Antoine DEVICTOR vous propose : Toulouse, Lardenne, quartier résidentiel recherché, au calme avec des commerces, des écoles et des transports à proximité. Élégance, confort et lumière pour cette maison T4 duplex de 82,5 m² avec terrasse de 18 m² et jardin privatif de 25 m². Grand séjour-cuisine lumineux de 35 m², suite parentale en rez-de-jardin, deux chambres et salle de bains à l’étage. Atouts : double exposition, volumes optimisés, jardin orienté sud, terrasse aménagée, cuisine ouverte, cellier et buanderie, volets électriques, placards aménagés, pompe à chaleur, potager, parking sécurisé, local vélo, borne de recharge. Confort et sérénité : garantie décennale & dommage-ouvrage, isolation thermique & phonique performante. QUESTIONS & VISITES, uniquement du lundi au samedi (hors dimanche) de 9 h à 19 h. Toute visite est conditionnée à la signature préalable d’un bon de visite, exigée par les obligations d’assurance professionnelle et par le code de la consommation (art. L. 221-1), ainsi qu’à la présentation préalable par les visiteurs de l’origine prévue et validée des fonds (prix de vente affiché + 8% notaire) conformément aux exigences des vendeurs et aux obligations de diligence de l’intermédiaire avec identification des clients (art. L. 561-1 du Code monétaire et financier). Ces mesures visent à sécuriser juridiquement la transaction potentielle et à protéger l’ensemble des parties. Par respect pour l’organisation des vendeurs, tout rendez-vous doit être confirmé ou annulé au moins une heure avant l’heure prévue et honoré sans retard, à défaut, la visite pourra être refusée ou annulée. Toute prise de rendez-vous vaut acceptation de ces conditions, fondées sur les textes officiels et les obligations professionnelles en vigueur. La presente annonce immobiliere vise 1 lot situé dans une copropriété de 10 lots au total et ne faisant l'objet d'aucune procédure en cours citée à l'article L. 721-1 du code de la construction et de l'habitation. Montant moyen mensuel de charges déclaré par le vendeur : 83€ par mois (soit 996 € annuel). Honoraires d'agence à la charge du vendeur. Information d'affichage énergétique sur ce bien : classe ENERGIE C indice 145 et classe CLIMAT A indice 4. Les informations sur les risques auxquels ce bien est exposé, y compris l'obligation légale de débroussaillement, sont disponibles sur le site Géorisques : http://www.georisques.gouv.fr. La présente annonce immobilière a été rédigée sous la responsabilité éditoriale de M Antoine DEVICTOR mandataire indépendant en immobilier (sans détention de fonds), agent commercial de la SAS I@D France immatriculé au RSAC de Toulouse sous le numéro 820420081, titulaire de la carte de démarchage immobilier pour le compte de la société I@D France SAS.
À proximité
Recherche des commodités à proximité...
Détails de l'annonce
Localisation
Ville
Toulouse
Pays
FR
Diagnostics / Énergie
Diagnostic DPE
145
Diagnostic GES
4
Surfaces / Pièces / Composition
Nombre d’étages
2
Chauffage et diagnostics
Diagnostic de performance énergétique (DPE)
a
b
c
d
e
f
g
Indice d'émission de gaz à effet de serre (GES)
a
b
c
d
e
f
g
