Trouver...

Language: FR

Devise: EUR

Vente Appartement 1 pièce

Publié le 3 February 2026
Type
Bien immobilier
Tarif
167 800 €
Chambres
0
Salles de bain
0

Vente Appartement 1 pièce

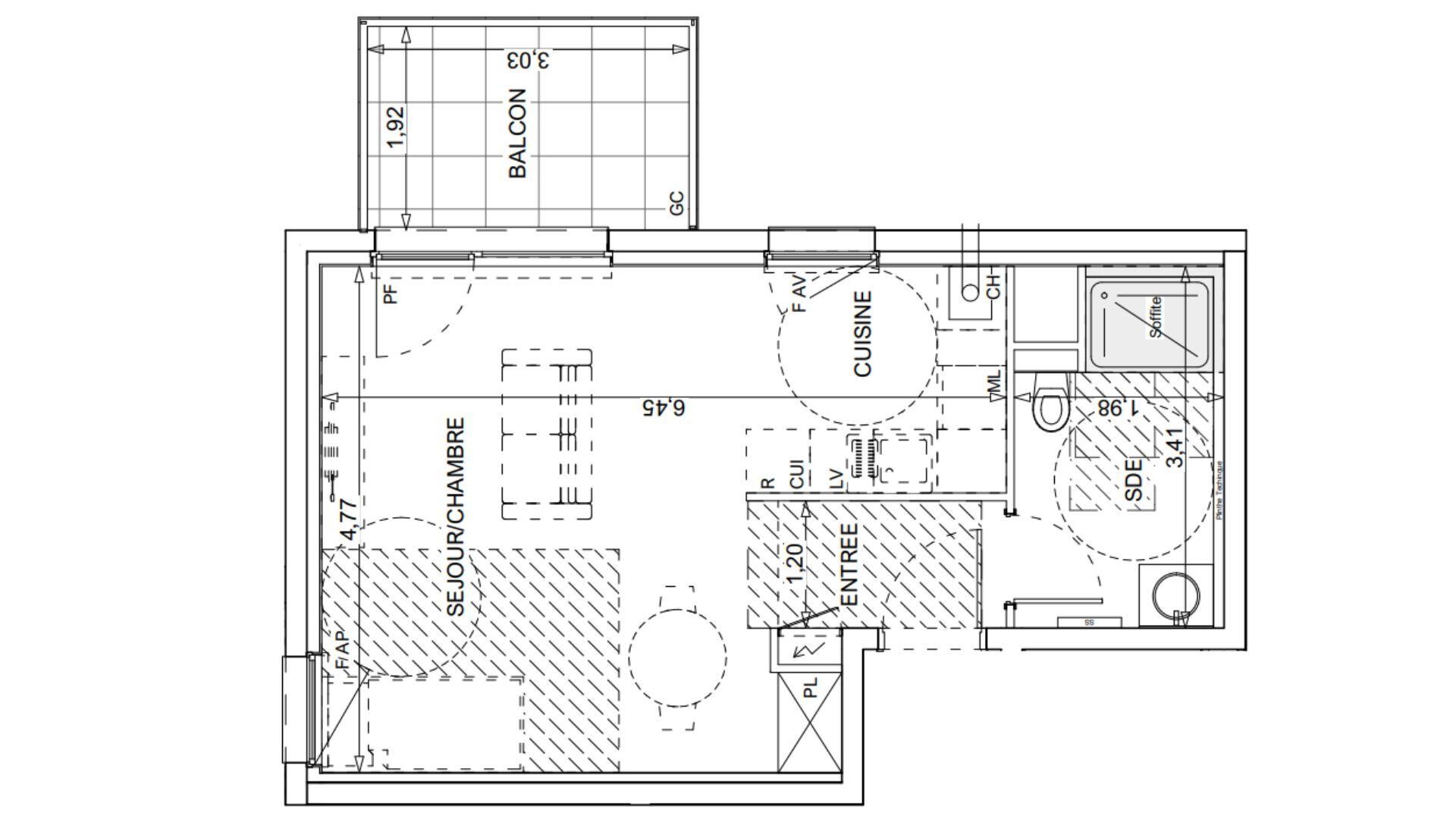
Iad France - Sarah Rozière (06 99 86 19 42) vous propose : Appartement T1 avec balcon à Wintzenheim Située rue Clemenceau à Wintzenheim, la résidence Jardin Secret s’intègre dans un environnement urbain en plein renouveau, au cOEur du village. Cette adresse propose un cadre de vie pratique et agréable, à deux pas des commerces, des transports et des équipements culturels. Disponible 2027. Un appartement raffiné : Situé au 1 er étage, cet appartement T1 de 34 m² environ habitables se prolonge par un balcon de 6 m² environ. - Pièce de vie de 26 m² environ. - Salle d'eau moderne. - Annexe incluse : un garage. De belles prestations : - Chauffage au sol par chaudière individuelle au gaz. - Volets roulants motorisés et menuiseries PVC. - Résidence sécurisée avec contrôle d’accès. L’art de vivre à Wintzenheim : - COEur de village et services accessibles à pied. - Commerces, écoles et services à proximité immédiate. - Accès facile aux grands axes routiers. N’hésitez pas à me contacter pour plus d’informations ou pour un accompagnement sur mesure. Honoraires d’agence à la charge du vendeur. Bien non soumis au DPE. Les informations sur les risques auxquels ce bien est exposé sont disponibles sur le site Géorisques : www.georisques.gouv.fr. La présente annonce immobilière a été rédigée sous la responsabilité éditoriale de Mlle Sarah Rozière EI (ID 83696), mandataire indépendant en immobilier (sans détention de fonds), agent commercial de la SAS I@D France immatriculé au RSAC de Clermont-Ferrand sous le numéro 978616993, titulaire de la carte de démarchage immobilier pour le compte de la société I@D France SAS. Retrouvez tous nos biens sur notre site internet. www.iadfrance.fr.

À proximité

Recherche des commodités à proximité...

Détails de l'annonce

Localisation

Ville
Wintzenheim
Pays
FR

Surfaces / Pièces / Composition

Nombre d’étages
3

Chauffage et diagnostics

Diagnostic de performance énergétique (DPE)
a
b
c
d
e
f
g
Indice d'émission de gaz à effet de serre (GES)
a
b
c
d
e
f
g
Rappelez-moi