Trouver...

Language: FR

Devise: EUR

Type
Bien immobilier
Tarif
498 000 €
Chambres
3
Salles de bain
0

Vente Appartement 4 pièces

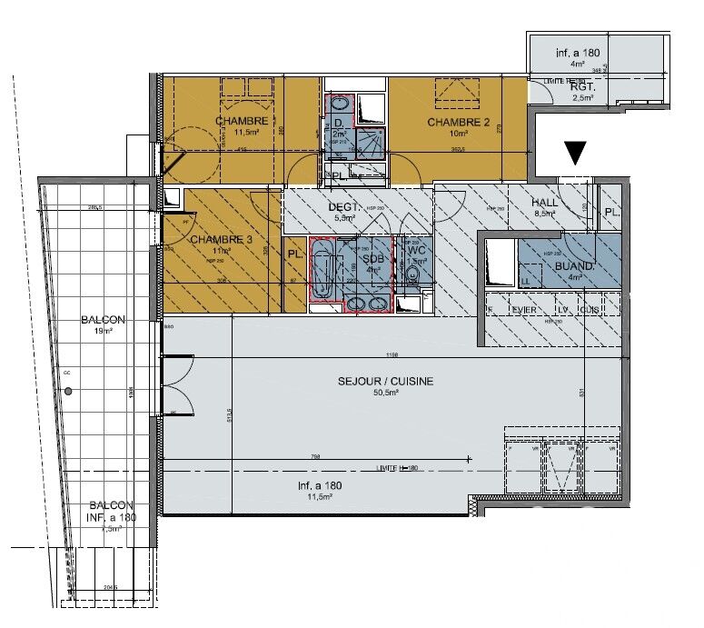
Iad France - Albine Bintz vous propose : T4 NEUF livré + TERRASSE de 26 m² - proche de toutes commodités Je vous propose cet appartement de plus de 126 m² (111 m² carrez) situé au 3ème et DERNIER ETAGE avec ascenseur dans la très jolie résidence sécurisée Les prairies du Breuil (entourée d’une zone naturelle protégée) au coeur de Vif, à 20 mn en voiture de Grenoble. Il est composé : -d’une cuisine ouverte sur une spacieuse pièce de vie de 62 m² (50 m² carrez), donnant sur une terrasse de plus de 26 m² et offrant une belle et agréable vue sans vis-à-vis sur les massifs -de 3 chambres dont une chambre avec sa salle d’eau et une avec un bel espace dressing -d’une salle de bain -d’un WC séparé -d’une buanderie de 4 m² -d’un cellier Chaudière collective au bois et gaz (au sous-sol) avec compteur individuel dans chaque appartement 2 GARAGES de 17 m² et 18 m² sont proposés en plus (non compris dans le prix) Emplacement pour les vélos Parking libre devant pour recevoir Les AVANTAGES et PRESTATIONS de l’appartement : -Frais de notaires réduits 3% -Garantie décennale -Normes RT 2012 -Visiophone avec possibilité d’ouvrir la porte à distance par smartphone -Thermostat programmable et pilotage possible avec votre smartphone - BSO (brises soleil orientables) pour les baies vitrées et volets en aluminium pour les autres fenêtres avec fermeture électrique et centralisée - Porte d’entrée 5 points - Idéalement situé ! à 2 mn à pied de toutes les commodités : transports, commerces (boulangerie, pharmacie, tabac, coiffeur, superette…) Je vous attends pour une visite ! La presente annonce immobiliere vise 1 lot situé dans une copropriété de 74 lots au total et ne faisant l'objet d'aucune procédure en cours citée à l'article L. 721-1 du code de la construction et de l'habitation. Montant moyen mensuel de charges déclaré par le vendeur : 250€ par mois (soit 3000 € annuel). Honoraires d'agence à la charge du vendeur. Information d'affichage énergétique sur ce bien : classe ENERGIE B indice 80 et classe CLIMAT A indice 2. Les informations sur les risques auxquels ce bien est exposé, y compris l'obligation légale de débroussaillement, sont disponibles sur le site Géorisques : http://www.georisques.gouv.fr. La présente annonce immobilière a été rédigée sous la responsabilité éditoriale de Mme Albine Bintz mandataire indépendant en immobilier (sans détention de fonds), agent commercial de la SAS I@D France immatriculé au RSAC de GRENOBLE sous le numéro 519116933, titulaire de la carte de démarchage immobilier pour le compte de la société I@D France SAS.

Détails de l'annonce

Localisation

Ville
Vif
Pays
FR

Diagnostics / Énergie

Diagnostic DPE
80
Diagnostic GES
2

Surfaces / Pièces / Composition

Nombre d’étages
3

Chauffage et diagnostics

Diagnostic de performance énergétique (DPE)
a
b
c
d
e
f
g
Indice d'émission de gaz à effet de serre (GES)
a
b
c
d
e
f
g
Rappelez-moi
Nos partenaires