Type
Bien immobilierTarif
119 000 €Chambres
0Salles de bain
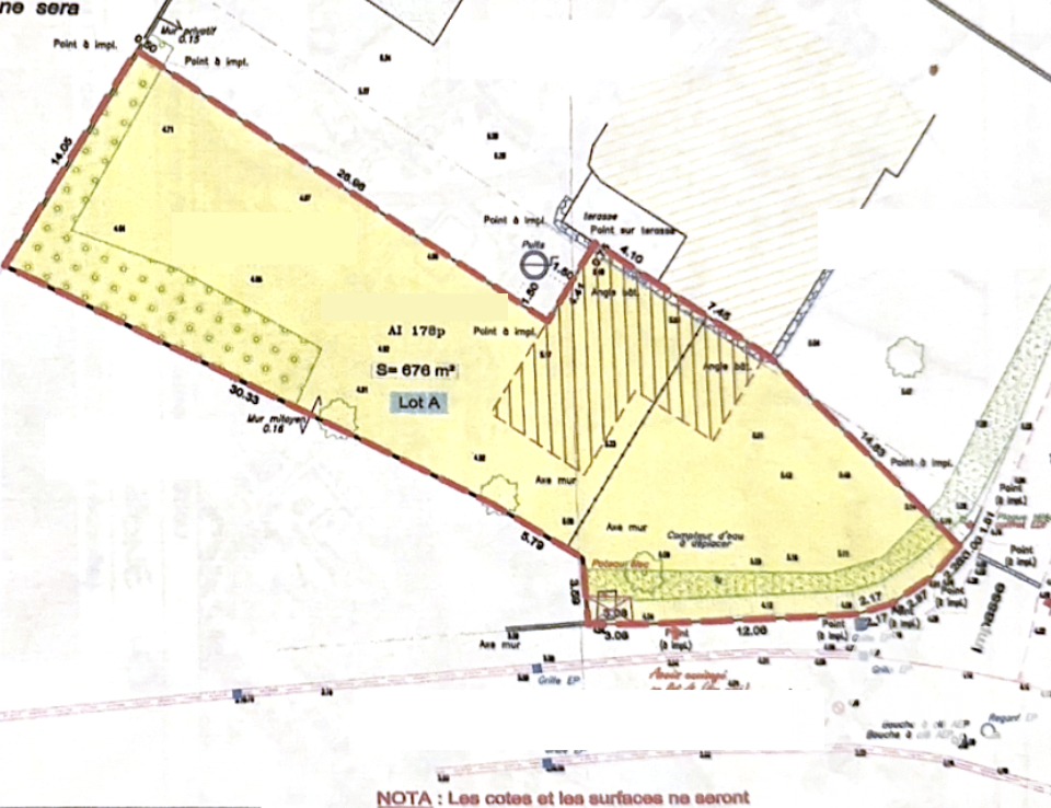
0Vente Terrain à bâtir 676 m²
Iad France - Lucie Boue vous propose : Secteur Bourgneuf en Retz - Terrain à Bâtir de 676 m² Ce beau terrain idéalement exposé est proche des commodités et dans un secteur calme. - Libre de constructeur - Zone Ub - compteur d'eau installé et raccordement au tout à l'égout - terrain clôturé A prévoir : *viabilisation en électricité et télécom, les réseaux sont à proximité * raccordement Honoraires d'agence à la charge du vendeur. Bien non soumis au DPE. Les informations sur les risques auxquels ce bien est exposé, y compris l'obligation légale de débroussaillement, sont disponibles sur le site Géorisques : http://www.georisques.gouv.fr. La présente annonce immobilière a été rédigée sous la responsabilité éditoriale de Mme Lucie Boue mandataire indépendant en immobilier (sans détention de fonds), agent commercial de la SAS I@D France immatriculé au RSAC de SAINT NAZAIRE sous le numéro 452564842, titulaire de la carte de démarchage immobilier pour le compte de la société I@D France SAS.
À proximité
Recherche des commodités à proximité...
Détails de l'annonce
Localisation
Ville
Villeneuve-en-Retz
Pays
FR
Surfaces / Pièces / Composition
Nombre d’étages
Chauffage et diagnostics
Diagnostic de performance énergétique (DPE)
a
b
c
d
e
f
g
Indice d'émission de gaz à effet de serre (GES)
a
b
c
d
e
f
g
