Trouver...

Language: FR

Devise: EUR

Vente Maison/villa 8 pièces

Publié le 1 December 2025
Type
Bien immobilier
Tarif
239 000 €
Chambres
4
Salles de bain
0

Vente Maison/villa 8 pièces

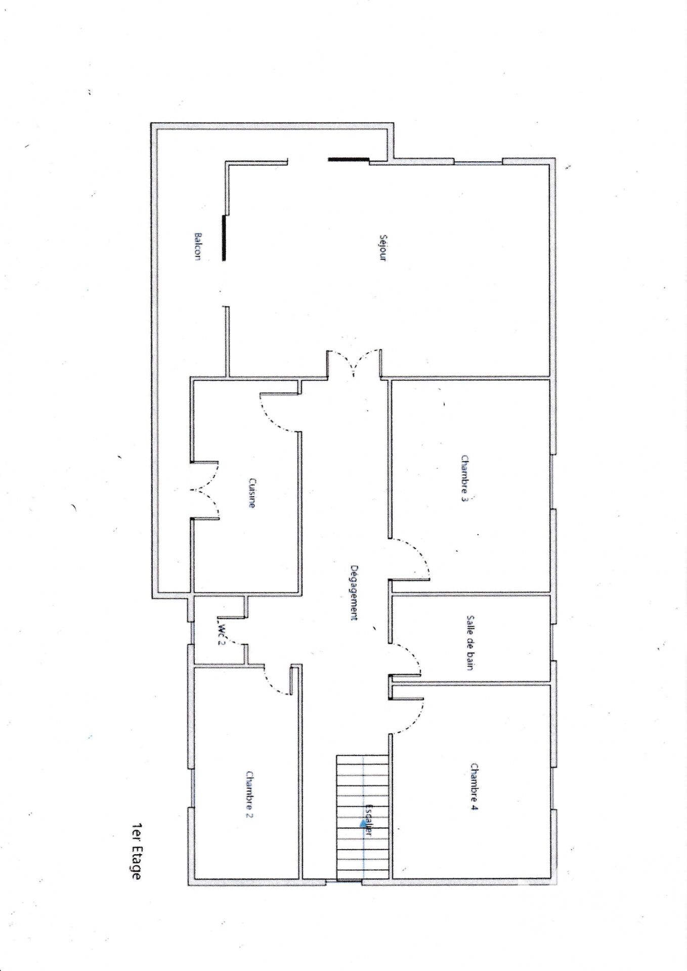
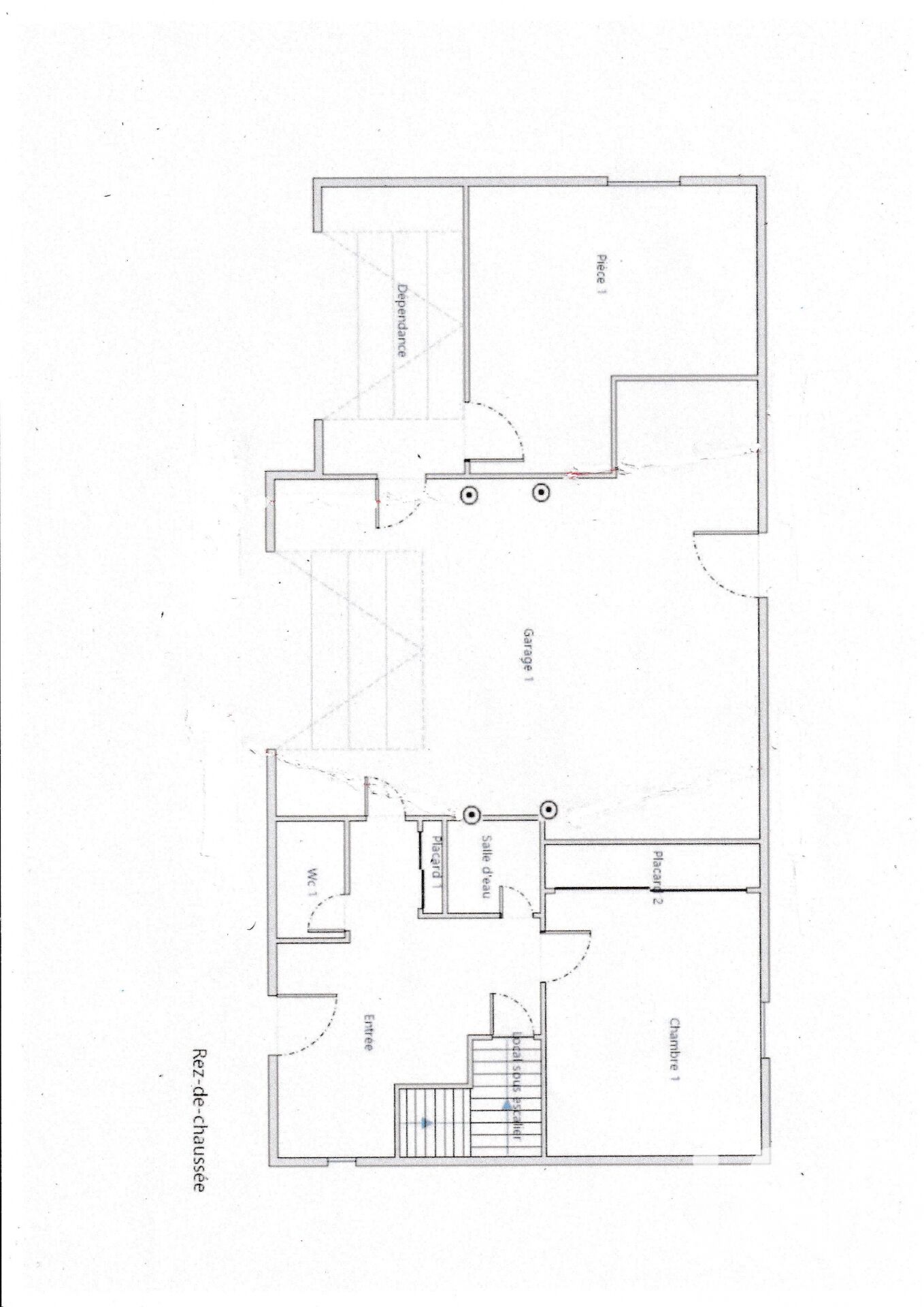
Iad France - Philippe De Cagny vous propose : Belle maison familiale individuelle de 167 m² avec jardin et garage à Albi, construction des années 70 avec de très grands volumes. Parfait état. Equipements de qualité. Terrain de 448 m². Pour bien comprendre la maison, chaque photo est commentée et vous avez les plans de la maison. bonne visite ! * Description des Pièces : * - * Chambres * : 4 chambres spacieuses (15,12, 13et 13 m²). - * Salles d'Eau * : 1 salle de bain, 1 salle d'eau et 2 WC indépendants. - * Cuisine * : Cuisine équipée de matériels récents. - * Balcon et Terrasse * : balcon de 25 m² et terrasse de 6 m². - * Salon * : (32 m²) Espace de vie lumineux et convivial. Cheminée à insert. - * 2 pièces * : (31 m²) aménageables à votre goût. * Avantages : * - * Jardin * : jardin arboré entourant la maison. - * Garage * : Stationnement facile et sécurisé avec un garage de 42 m² avec un coin cuisine d'été. - * Exposition * : Exposition optimale au nord et à l'est, offrant une belle luminosité et une agréable circulation de l'air. - * Opportunité de Personnalisation * : Travaux possibles pour adapter la maison à vos goûts et besoins. Possibilité de locaux pour ado ou personnes âgées au RDC. Cette maison, proche des commodités, des écoles et des transports en commun, est située dans un environnement calme et résidentiel. C'est une opportunité rare sur le marché, ne manquez pas l'occasion de visiter cette belle maison à Albi. Contactez nous dès maintenant pour planifier votre visite. Honoraires d'agence à la charge du vendeur. Information d'affichage énergétique sur ce bien : classe ENERGIE F indice 345 et classe CLIMAT E indice 63. Les informations sur les risques auxquels ce bien est exposé, y compris l'obligation légale de débroussaillement, sont disponibles sur le site Géorisques : http://www.georisques.gouv.fr. La présente annonce immobilière a été rédigée sous la responsabilité éditoriale de M Philippe De Cagny mandataire indépendant en immobilier (sans détention de fonds), agent commercial de la SAS I@D France immatriculé au RSAC de ALBI sous le numéro 492725486, titulaire de la carte de démarchage immobilier pour le compte de la société I@D France SAS.

À proximité

Recherche des commodités à proximité...

Détails de l'annonce

Localisation

Ville
Albi
Pays
FR

Diagnostics / Énergie

Diagnostic DPE
345
Diagnostic GES
63

Chauffage et diagnostics

Diagnostic de performance énergétique (DPE)
a
b
c
d
e
f
g
Indice d'émission de gaz à effet de serre (GES)
a
b
c
d
e
f
g
Rappelez-moi