Type
Bien immobilierTarif
85 000 €Chambres
0Salles de bain
0Vente Ferme 1 pièce
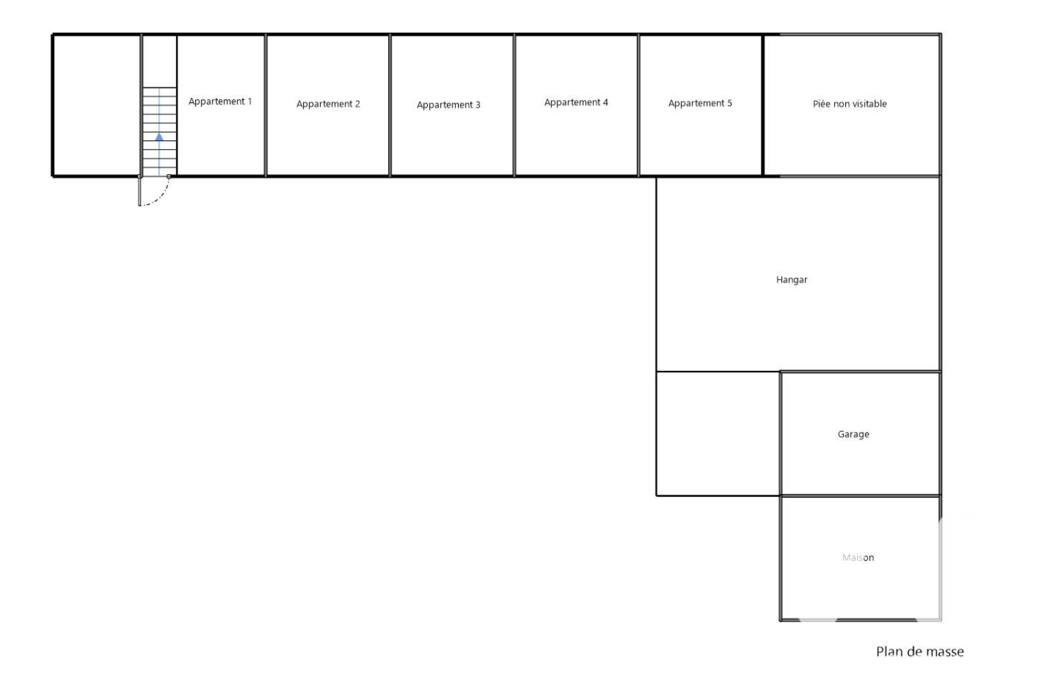
Iad France - Justine Pradere vous propose : BERAT – PROXIMITÉ CENTRE-VILLE ANCIEN CORPS DE FERME – PRODUIT BRUT À RÉHABILITER – TRÈS FORT POTENTIEL Situé à Bérat, à environ 30 km de Toulouse et 15 km de Muret, avec un accès rapide par l’autoroute, cet ancien corps de ferme de la fin du XIXᵉ siècle constitue une opportunité rare pour un projet de réhabilitation complète. Le bâti existant développe actuellement une surface habitable d’environ 259,48 m², à laquelle s’ajoutent de nombreux volumes exploitables. L’ensemble se compose : •d’une maison d’habitation avec jardin privatif et abri voiture, •d’un premier hangar attenant, offrant un potentiel d’extension significatif, •d’un second hangar de grande capacité, •et, en fond de cour, d’anciennes dépendances aujourd’hui divisées en cinq parties indépendantes, pouvant être réhabilitées en surfaces habitables, ou conservées en espaces de stockage, garages, ateliers ou annexes, selon la destination souhaitée et les autorisations d’urbanisme. Un plan de masse de l’existant est disponible afin d’appréhender précisément l’implantation et les volumes. Le bien est proposé en état brut, nécessitant une rénovation intégrale (second OEuvre complet, réseaux, isolation, menuiseries, aménagements intérieurs). Les réseaux (eau, électricité, assainissement) sont présents à proximité immédiate, les raccordements restant à réaliser. Après travaux, la surface de plancher exploitable pourra être sensiblement augmentée, offrant un potentiel de valorisation important. Le charme de l’ancien est pleinement conservé : façade en pierre, structures traditionnelles, poutres d’origine, volumes généreux et hauteurs sous plafond, constituant une base idéale pour un projet architectural ambitieux.
Ce mois
Cette annonce est récente
À proximité
Recherche des commodités à proximité...
Détails de l'annonce
Localisation
Ville
Bérat
Pays
FR
Chauffage et diagnostics
Diagnostic de performance énergétique (DPE)
a
b
c
d
e
f
g
Indice d'émission de gaz à effet de serre (GES)
a
b
c
d
e
f
g
