Type
Bien immobilierTarif
450 000 €Chambres
5Salles de bain
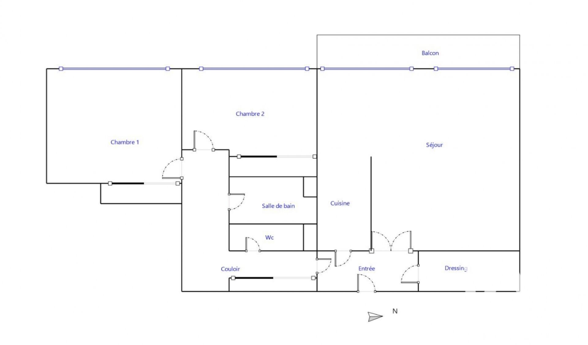
2Découvrez cette magnifique maison ancienne de 255 m², nichée dans un cadre idyllique avec une vue imprenable sur les montagnes. Cette propriété, exposée plein sud, baigne de lumière chaque pièce, créant une atmosphère chaleureuse et accueillante.
Avec ses 9 pièces, dont 5 chambres spacieuses, cette maison est parfaite pour les grandes familles ou pour recevoir des invités. Les 2 salles de bains et les 3 WC assurent un confort optimal. Le séjour de 42 m² est idéal pour des moments conviviaux, tandis que la cuisine aménagée et équipée ravira les amateurs de gastronomie.
Le terrain de 14156 m² offre un espace vert luxuriant, parfait pour les enfants ou les amateurs de jardinage. La piscine d'environ 28 m² est un véritable atout pour les jours d'été, offrant un lieu de détente et de rafraîchissement.
Cette maison, à rafraîchir, est une toile blanche prête à être transformée selon vos goûts. Le chauffage individuel et les ouvertures en bois ajoutent un charme authentique. Bien que l'assainissement ne soit pas conforme, cela représente une opportunité d'amélioration.
Située à proximité de toutes les commodités, cette maison est à 5 minutes à pied des écoles maternelles, des collèges, des restaurants et des médecins généralistes. Un bus est également accessible en 5 minutes à pied. a 10 minutes à pied, vous trouverez des écoles élémentaires et des magasins d'alimentation générale. Un parc et jardin est accessible en 5 minutes en voiture.
Ne manquez pas cette opportunité de posséder une maison ancienne pleine de caractère, avec un immense potentiel et un cadre de vie exceptionnel.
Honoraires à la charge du vendeur. Classe énergie E, Classe climat C Montant moyen estimé des dépenses annuelles d'énergie pour un usage standard, établi à partir des prix de l'énergie de l'année 2021 : entre 2521.00 et 3411.00 euros. Les informations sur les risques auxquels ce bien est exposé sont disponibles sur le site Géorisques : georisques.gouv.fr.
Votre conseiller Maisons et Manoirs : Alison PAGE
Agent commercial (Entreprise individuelle)
Avec ses 9 pièces, dont 5 chambres spacieuses, cette maison est parfaite pour les grandes familles ou pour recevoir des invités. Les 2 salles de bains et les 3 WC assurent un confort optimal. Le séjour de 42 m² est idéal pour des moments conviviaux, tandis que la cuisine aménagée et équipée ravira les amateurs de gastronomie.
Le terrain de 14156 m² offre un espace vert luxuriant, parfait pour les enfants ou les amateurs de jardinage. La piscine d'environ 28 m² est un véritable atout pour les jours d'été, offrant un lieu de détente et de rafraîchissement.
Cette maison, à rafraîchir, est une toile blanche prête à être transformée selon vos goûts. Le chauffage individuel et les ouvertures en bois ajoutent un charme authentique. Bien que l'assainissement ne soit pas conforme, cela représente une opportunité d'amélioration.
Située à proximité de toutes les commodités, cette maison est à 5 minutes à pied des écoles maternelles, des collèges, des restaurants et des médecins généralistes. Un bus est également accessible en 5 minutes à pied. a 10 minutes à pied, vous trouverez des écoles élémentaires et des magasins d'alimentation générale. Un parc et jardin est accessible en 5 minutes en voiture.
Ne manquez pas cette opportunité de posséder une maison ancienne pleine de caractère, avec un immense potentiel et un cadre de vie exceptionnel.
Honoraires à la charge du vendeur. Classe énergie E, Classe climat C Montant moyen estimé des dépenses annuelles d'énergie pour un usage standard, établi à partir des prix de l'énergie de l'année 2021 : entre 2521.00 et 3411.00 euros. Les informations sur les risques auxquels ce bien est exposé sont disponibles sur le site Géorisques : georisques.gouv.fr.
Votre conseiller Maisons et Manoirs : Alison PAGE
Agent commercial (Entreprise individuelle)
À proximité
Recherche des commodités à proximité...
Détails de l'annonce
Localisation
Ville
Boulogne sur Gesse
Pays
France
Caractéristiques / Équipements
Piscine
Oui
Diagnostics / Énergie
Diagnostic DPE
E
Diagnostic GES
C
Finances / Mandat / Références
Type de mandat
02/02/2026
Chauffage et diagnostics
Diagnostic de performance énergétique (DPE)
a
b
c
d
e
f
g
Indice d'émission de gaz à effet de serre (GES)
a
b
c
d
e
f
g
