Type
Bien immobilierTarif
211 000 €Chambres
5Salles de bain
0Vente Maison/villa 6 pièces
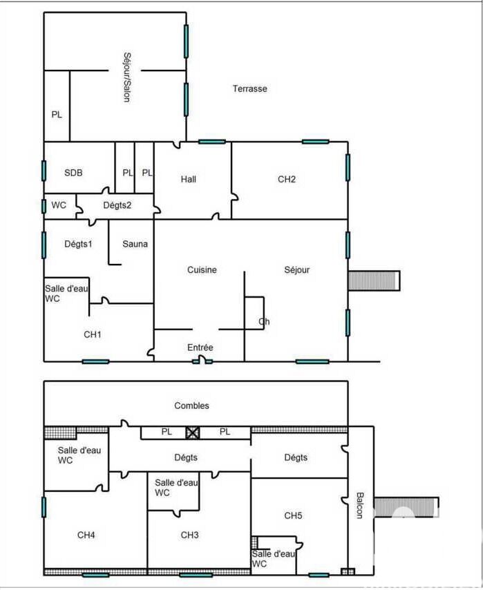
Iad France - Sandra Lacombe vous propose : Auterive - Charmante Maison à Rénover sur belle parcelle de 1300 m² Cette spacieuse maison individuelle offre un énorme potentiel pour une famille désireuse de personnaliser son futur chez-soi. Située à Auterive, à proximité des commodités locales et des écoles, elle est idéalement implantée sur un vaste terrain de 1300 m², offrant un cadre de vie paisible et verdoyant. La maison s'étend sur deux étages, avec un total de 8 pièces dont 5 chambres spacieuses, 1 salle de bain, 4 salles d'eau, 3 toilettes et une cuisine. La disposition des pièces permet d'imaginer des espaces de vie fonctionnels et accueillants, idéaux pour les moments de partage en famille. Cette maison nécessite des travaux de rénovation pour remettre en état ses installations et moderniser son agencement. Cependant, une fois les rénovations terminées, vous pourrez créer un intérieur à votre image et profiter d'un espace de vie confortable et adapté à vos besoins spécifiques. Le vaste terrain offre de nombreuses possibilités d'aménagement extérieur, que ce soit pour créer un jardin paysager, installer une piscine, ou simplement profiter de vastes espaces verts pour des instants de détente en plein air. Cette propriété présente un excellent potentiel pour devenir une maison familiale chaleureuse et accueillante, une fois les travaux de rénovation terminés. Ne manquez pas cette occasion unique de façonner votre propre havre de paix à Auterive. Investisseurs n'hésitez pas ! Vidéos de l'intérieur à la demande Honoraires d'agence à la charge du vendeur. Bien non soumis au DPE. Les informations sur les risques auxquels ce bien est exposé, y compris l'obligation légale de débroussaillement, sont disponibles sur le site Géorisques : http://www.georisques.gouv.fr. La présente annonce immobilière a été rédigée sous la responsabilité éditoriale de Mme Sandra Lacombe mandataire indépendant en immobilier (sans détention de fonds), agent commercial de la SAS I@D France immatriculé au RSAC de Toulouse sous le numéro 811607464, titulaire de la carte de démarchage immobilier pour le compte de la société I@D France SAS.
À proximité
Recherche des commodités à proximité...
Détails de l'annonce
Localisation
Ville
Auterive
Pays
FR
Chauffage et diagnostics
Diagnostic de performance énergétique (DPE)
a
b
c
d
e
f
g
Indice d'émission de gaz à effet de serre (GES)
a
b
c
d
e
f
g
