Type
Bien immobilierTarif
290 000 €Chambres
2Salles de bain
0Vente Maison/villa 4 pièces
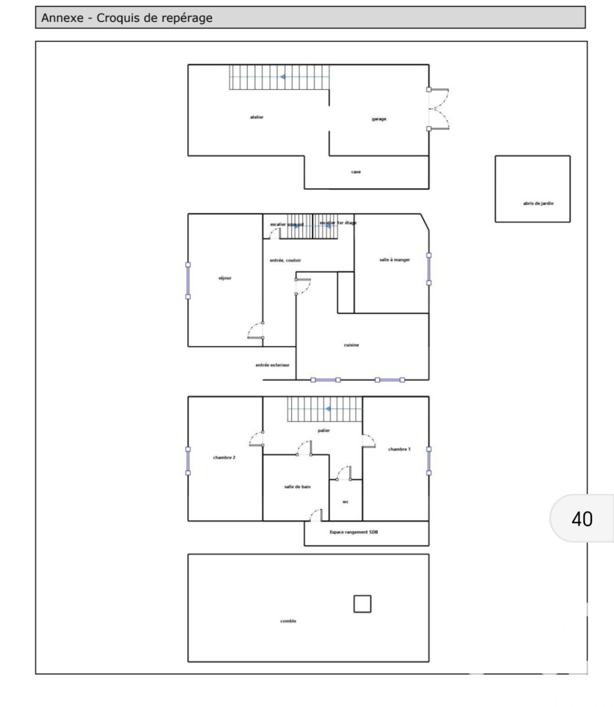
Iad France - Céline Fusco vous propose : Maison meulière de caractère – environnement verdoyant – beau potentiel d’évolution Nichée dans un cadre paisible et arboré, à proximité immédiate du parc du Perray et de l’Ormoy, cette maison meulière mitoyenne d’un seul côté séduit par son authenticité, son charme préservé et ses nombreuses possibilités d’évolution. Les écoles, commerces et la gare sont accessibles facilement, offrant un cadre de vie à la fois pratique et recherché. Dès l’entrée, la maison dévoile une atmosphère chaleureuse et lumineuse. Le salon, orienté sud-est, bénéficie d’une belle lumière naturelle et constitue un espace convivial, idéal pour les moments de détente et de partage. La cuisine, spacieuse et fonctionnelle, s’impose comme une véritable pièce de vie. Sa configuration dînatoire permet de partager aisément les repas du quotidien. Un élégant meuble intégré en bois massif vient souligner le cachet des lieux tout en apportant un confort d’usage appréciable. Dans son prolongement, la salle à manger, agrémentée d’une cheminée d’époque, renforce l’esprit chaleureux et authentique de cette maison de caractère. À l’étage, le palier dessert deux grandes chambres aux volumes généreux, un WC indépendant ainsi qu’une salle de bains avec espace dressing. Les parquets d’origine, la hauteur sous plafond et les éléments anciens conservés participent pleinement au charme et à l’âme de la maison. Le sous-sol total, sain et bien entretenu, constitue un véritable atout. Il accueille une buanderie, un atelier, une cave et plusieurs espaces de rangement, et bénéficie d’un accès de plain-pied vers le jardin à l’arrière. À l’extérieur, la parcelle de 380 m² offre un agréable jardin arboré et verdoyant, propice à la détente et aux activités de plein air. À l’avant, une palissade récente structure harmonieusement les abords de la maison. Une terrasse récemment refaite, équipée d’un éclairage LED, complète les prestations. Un espace privatif permet le stationnement de deux véhicules. Confort, travaux réalisés et potentiel énergétique : La maison a bénéficié de travaux structurels récents et qualitatifs, parmi lesquels : – une chaudière gaz à condensation installée en 2018, – une électricité refaite en 2000 – une toiture rénovée avec isolation renforcée et pose de nouveaux vélux en 2024. La performance énergétique de la maison peut être améliorée progressivement, en fonction des projets et des priorités des futurs acquéreurs. Des premières actions simples et accessibles peuvent notamment être envisagées, telles que l’optimisation de la ventilation, l’amélioration de l’étanchéité à l’air sur certains points ou encore l’installation de robinets thermostatiques pour un meilleur pilotage du chauffage et une maîtrise des consommations. Cette maison s’adresse aux amateurs de biens anciens à la recherche d’un lieu de vie authentique, offrant de beaux volumes, un environnement verdoyant et un potentiel d’amélioration maîtrisé. Laissez-vous emporter par son charme d’époque et venez en apprécier toutes les qualités lors d’une visite. Honoraires d'agence à la charge du vendeur. Information d'affichage énergétique sur ce bien : classe ENERGIE F indice 365 et classe CLIMAT F indice 80. Les informations sur les risques auxquels ce bien est exposé, y compris l'obligation légale de débroussaillement, sont disponibles sur le site Géorisques : http://www.georisques.gouv.fr. La présente annonce immobilière a été rédigée sous la responsabilité éditoriale de Mme Céline Fusco mandataire indépendant en immobilier (sans détention de fonds), agent commercial de la SAS I@D France immatriculé au RSAC de Evry sous le numéro 929737088, titulaire de la carte de démarchage immobilier pour le compte de la société I@D France SAS.
Cette semaine
Cette annonce est récente
À proximité
Recherche des commodités à proximité...
Détails de l'annonce
Localisation
Ville
Sainte-Geneviève-des-Bois
Pays
FR
Diagnostics / Énergie
Diagnostic DPE
365
Diagnostic GES
80
Surfaces / Pièces / Composition
Nombre d’étages
2
Chauffage et diagnostics
Diagnostic de performance énergétique (DPE)
a
b
c
d
e
f
g
Indice d'émission de gaz à effet de serre (GES)
a
b
c
d
e
f
g
