Type
Bien immobilierTarif
330 000 €Chambres
2Salles de bain
0Vente Duplex 4 pièces
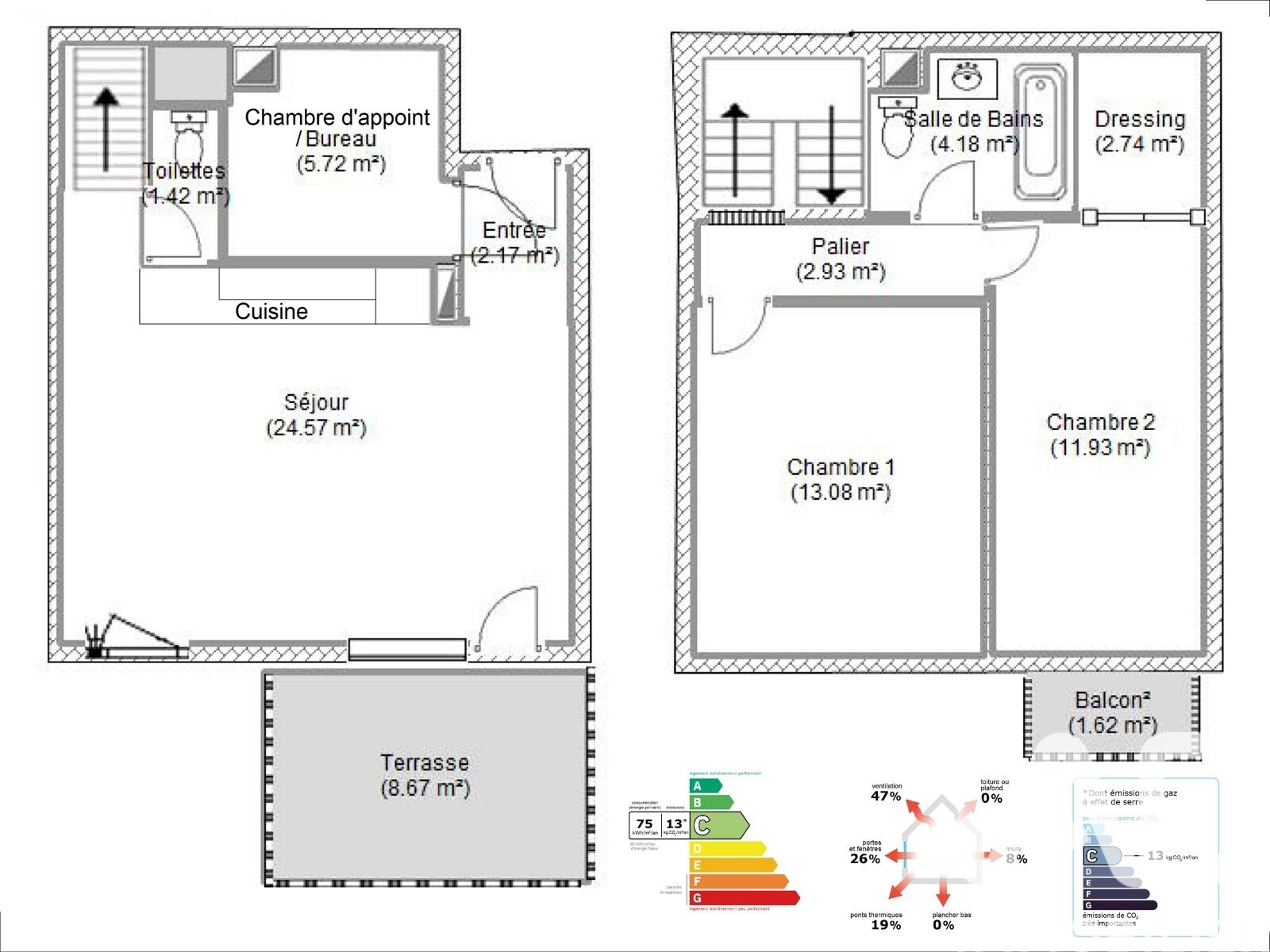
Iad France - Laïla Brodier vous propose : Superbe Duplex de 4 Pièces avec Terrasse et Balcons à Pantin Idéalement situé à Pantin, ce magnifique appartement en duplex propose un cadre de vie unique dans un quartier dynamique et en pleine expansion. Doté de 2 chambres spacieuses, de 2 salles de bains, et de vastes espaces de vie, cet appartement offre un confort exceptionnel pour ses résidents. Au premier niveau de ce duplex, vous trouverez un lumineux salon équipé de grandes baies vitrées donnant accès à deux balcons offrant une agréable vue. La cuisine ouverte ajoute une touche moderne à cet espace de vie convivial. Deux chambres accueillantes et une salle de bain complètent l'étage supérieur. L'appartement, situé au premier niveau d'une résidence de standing de 5 étages construite en 2014, bénéficie de nombreux avantages. L'accès à l'ascenseur et à la fibre optique vous assurent un quotidien facilité et connecté. La résidence sécurisée avec digicode, interphone et porte anti-intrusion garantit la tranquillité de ses habitants. Pour votre confort, le chauffage individuel et la distribution par système de chauffage mural assurent une température agréable en toutes saisons. De plus, une place de parking et les annexes comme les terrasses et les balcons renforcent le caractère pratique et agréable de ce bien. Dans un état général impeccable et sans travaux à prévoir, cet appartement est une opportunité rare à ne pas manquer à Pantin. Contactez-nous dès maintenant pour organiser une visite et découvrir votre futur chez-vous ! La presente annonce immobiliere vise 2 lots situés dans une copropriété de 20 lots au total et ne faisant l'objet d'aucune procédure en cours citée à l'article L. 721-1 du code de la construction et de l'habitation. Montant moyen mensuel de charges déclaré par le vendeur : 260€ par mois (soit 3120 € annuel). Honoraires d'agence à la charge du vendeur. Information d'affichage énergétique sur ce bien : classe ENERGIE C indice 75 et classe CLIMAT C indice 13. Les informations sur les risques auxquels ce bien est exposé, y compris l'obligation légale de débroussaillement, sont disponibles sur le site Géorisques : http://www.georisques.gouv.fr. La présente annonce immobilière a été rédigée sous la responsabilité éditoriale de Mme Laïla Brodier mandataire indépendant en immobilier (sans détention de fonds), agent commercial de la SAS I@D France immatriculé au RSAC de BOBIGNY sous le numéro 414031625, titulaire de la carte de démarchage immobilier pour le compte de la société I@D France SAS.
Ce mois
Cette annonce est récente
À proximité
Recherche des commodités à proximité...
Détails de l'annonce
Localisation
Ville
Pantin
Pays
FR
Diagnostics / Énergie
Diagnostic DPE
75
Diagnostic GES
13
Surfaces / Pièces / Composition
Nombre d’étages
5
Chauffage et diagnostics
Diagnostic de performance énergétique (DPE)
a
b
c
d
e
f
g
Indice d'émission de gaz à effet de serre (GES)
a
b
c
d
e
f
g
