Immeuble enseignement ou médical 986 m² Ste Foy
Publié le 22 January 2026
Type
Bien immobilierTarif
16 435 € /moisChambres
0Salles de bain
0Immeuble enseignement ou médical 986 m² Ste Foy
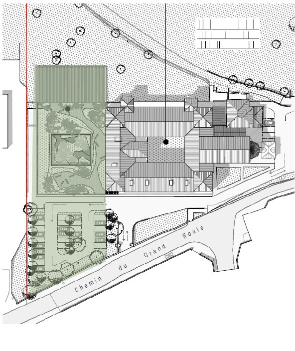
À 20 min de Lyon, au coeur d'un écrin de verdure de 20 000 m2 A LOUER un bâtiment neuf de 986 m² à destination « d'enseignement et recherche », tel que prévu dans le permis de construire obtenu et purgé. Erigé sur son terrain de 3 325 m². 20 places de parking. Pistes programmatiques Formation Enseignement / recherche Service public Spectacle .. (voir possibilités PLUh) Données Libre 24 mois après le démarrage des travaux (avec un démarrage des travaux concomitant avec la signature de l'acte de BEFA) Ce lot est indépendant et ne fait pas partie d'une copropriété. Il est destiné à la vente ou à la location. Situation géographique : 74 Chemin du Grand Roule, 69110 Sainte Foy Les Lyon Environnement magnifique ! CONDITIONS FINANCÈRES Loyer : 14 790 HT + charges : 1 645 HT = 16 435 HT/mois Taxe foncière à la charge du Preneur Dépôt de garantie : 44 370 Honoraires à la charge de l'acquéreur : 26 622 HT Type de bail : commercial Facturation : trimestre Disponibilité : immédiate Le Grand Roule est un ancien séminaire religieux du XIXe siècle qui appartenait aux Pères Maristes. Il est situé à Sainte-Foy-lès-Lyon, au coeur d'un parc de 20 000 m². D'une superficie de 5000 m², le Grand Roule est devenu une résidence d'habitation mixte et inclusive, composée de 63 logements : accession sociale, logements étudiants, logements locatifs sociaux familiaux, logements locatifs libres, habitat inclusif. Kamel BOUTIAB - Tél : 06 99 38 81 63 - agent immobilier pour le réseau Casarèse. Mandat N° 5768. D'autres biens sur www casarese com ! Les informations sur les risques auxquels ce bien est exposé sont disponibles sur le site Géorisques : www.georisques.gouv.fr.
Cette semaine
Cette annonce est récente
À proximité
Recherche des commodités à proximité...
Détails de l'annonce
Localisation
Ville
SAINTE FOY LES LYON
Pays
France
Surfaces / Pièces / Composition
Surface du terrain
3325 m²
Chauffage / Énergie
Nature de chauffage
Non renseigné
Chauffage et diagnostics
Diagnostic de performance énergétique (DPE)
a
b
c
d
e
f
g
Indice d'émission de gaz à effet de serre (GES)
a
b
c
d
e
f
g
