Maison T4 moderne au Puy-Sainte-Réparade : espace et futur
Publié le 13 April 2026
Type
Bien immobilierTarif
1 150 € /moisChambres
3Salles de bain
0Maison T4 moderne au Puy-Sainte-Réparade : espace et futur
Découvrez cette belle maison contemporaine, parfaitement pensée pour offrir confort, fonctionnalité et qualité de vie au quotidien. Située dans un environnement paisible, elle séduira immédiatement par ses volumes, sa luminosité et son agencement optimisé.
Dès l'entrée, vous profitez d'une agréable pièce de vie baignée de lumière, avec de larges ouvertures donnant sur l'extérieur. L'espace est conçu pour allier convivialité et modernité, idéal pour recevoir ou profiter en famille.
La maison propose plusieurs chambres aux beaux volumes, offrant à chacun son espace, ainsi qu'une distribution intelligente des pièces pour un quotidien fluide et agréable. Les prestations sont soignées, avec une attention particulière portée aux finitions et au confort thermique.
À l'extérieur, le jardin offre un véritable potentiel d'aménagement, parfait pour créer un espace de détente à votre image (terrasse, pelouse, coin repas…). Le tout dans un cadre calme, à l'abri des nuisances.
Idéalement située, la maison bénéficie d'un secteur recherché, proche des commodités, tout en conservant un environnement serein.
Un bien rare, alliant modernité, confort et qualité de vie.
Maison proposée en accession à la propriété
Ce mois
Cette annonce est récente
À proximité
Recherche des commodités à proximité...
Détails de l'annonce
Finances / Mandat / Références
Charges
€
Localisation
Ville
Le Puy Sainte Reparade
Pays
France
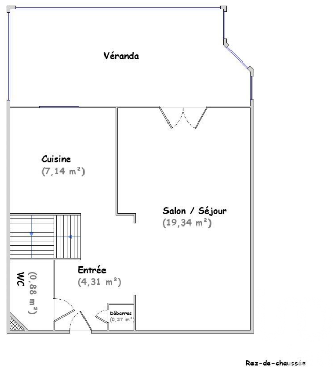
Surfaces / Pièces / Composition
Surface habitable
80 m²
Nombre de chambres
3
Caractéristiques / Équipements
Ascenseur
Digicode
Interphone
Meublé
Chauffage et diagnostics
Diagnostic de performance énergétique (DPE)
a
b
c
d
e
f
g
Indice d'émission de gaz à effet de serre (GES)
a
b
c
d
e
f
g
