Trouver...

Language: FR

Devise: EUR

Vente Appartement 3 pièces

Publié le 29 January 2026
Type
Bien immobilier
Tarif
265 000 €
Chambres
2
Salles de bain
0

Vente Appartement 3 pièces

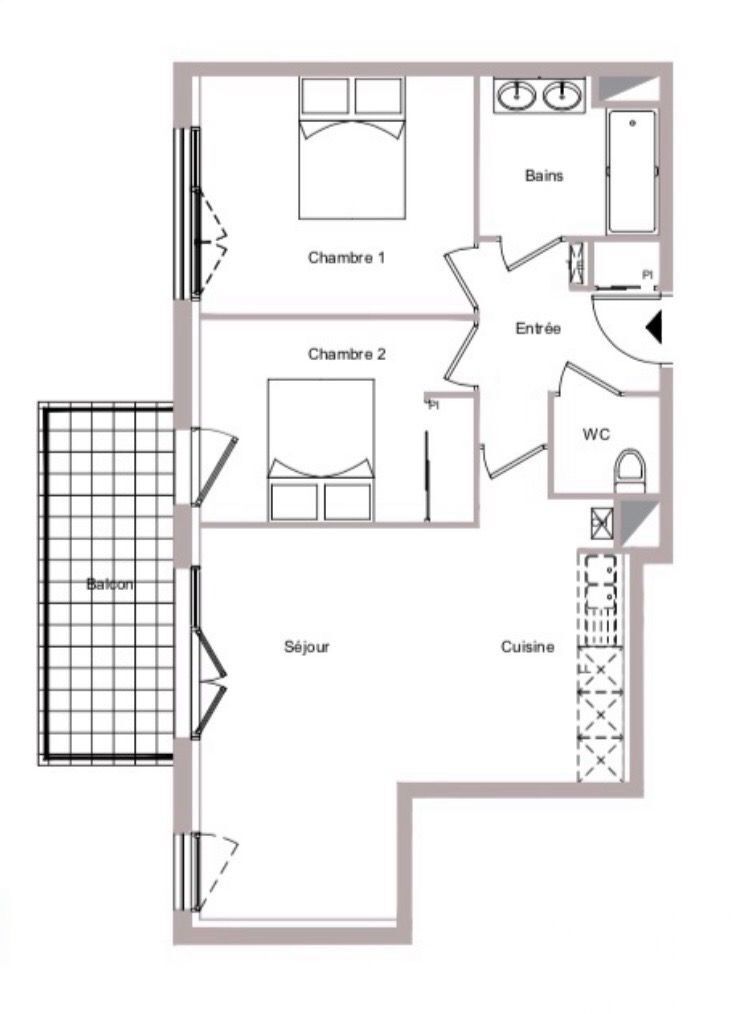
Iad France - Prescillia Carpentier vous propose : Situé dans une résidence récente de 2021, sécurisée et bien entretenue, cet appartement 3 pièces de 58 m², au 1er étage avec ascenseur, offre un cadre de vie confortable et pratique. L’appartement est très lumineux, en très bon état, et ne nécessite aucun travaux. Il se compose d’un séjour avec cuisine ouverte entièrement équipée donnant accès à un balcon agréable, accessible à la fois depuis le séjour et la chambre parentale, un vrai plus au quotidien. L’espace nuit propose deux chambres, une salle de bains moderne et des WC séparés. Vous bénéficierez également de : -Deux places de parking sécurisées (possibilité de boxer une place) -Résidence sécurisée avec digicode et interphone -Ascenseur et accès PMR -Local vélos -Charges de copropriété : 128 € / mois -DPE C La localisation est idéale, à proximité du centre-ville, des écoles, des transports et de la zone commerciale La Promenade. Un appartement clé en main, parfait pour un premier achat, un couple ou une petite famille souhaitant s’installer dans un environnement agréable à Claye-Souilly. La presente annonce immobiliere vise 3 lots situés dans une copropriété de 93 lots au total et ne faisant l'objet d'aucune procédure en cours citée à l'article L. 721-1 du code de la construction et de l'habitation. Montant moyen mensuel de charges déclaré par le vendeur : 128€ par mois (soit 1536 € annuel). Honoraires d'agence à la charge du vendeur. Information d'affichage énergétique sur ce bien : classe ENERGIE C indice 90 et classe CLIMAT C indice 17. Les informations sur les risques auxquels ce bien est exposé, y compris l'obligation légale de débroussaillement, sont disponibles sur le site Géorisques : http://www.georisques.gouv.fr. La présente annonce immobilière a été rédigée sous la responsabilité éditoriale de Mme Prescillia Carpentier mandataire indépendant en immobilier (sans détention de fonds), agent commercial de la SAS I@D France immatriculé au RSAC de MEAUX sous le numéro 943207555, titulaire de la carte de démarchage immobilier pour le compte de la société I@D France SAS.
Cette semaine Cette annonce est récente

À proximité

Recherche des commodités à proximité...

Détails de l'annonce

Localisation

Ville
Claye Souilly
Pays
FR

Diagnostics / Énergie

Diagnostic DPE
90
Diagnostic GES
17

Surfaces / Pièces / Composition

Nombre d’étages
2

Chauffage et diagnostics

Diagnostic de performance énergétique (DPE)
a
b
c
d
e
f
g
Indice d'émission de gaz à effet de serre (GES)
a
b
c
d
e
f
g
Rappelez-moi