Type
Bien immobilierTarif
110 000 €Chambres
3Salles de bain
0Vente Appartement 5 pièces
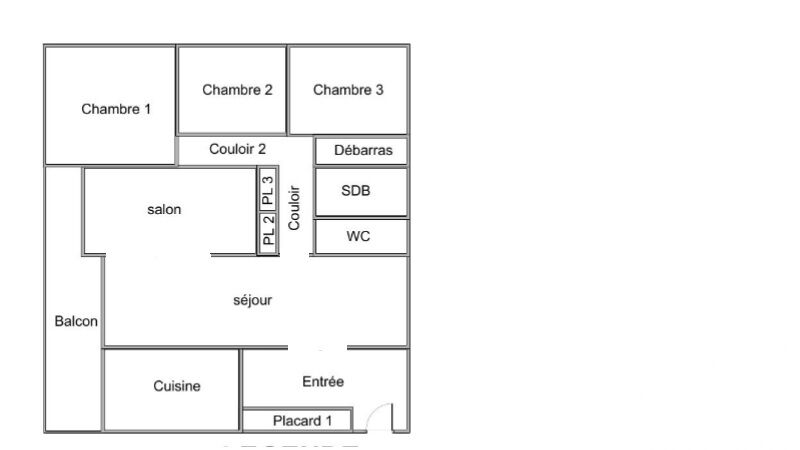
Iad France - Sabine PERRIN vous propose : EVREUX centre ville et commerces à pied, spacieux appartement au dernier étage avec ascenseur, entrée avec placard, cuisine, séjour salon de 36 m² donnant sur un balcon plein sud de 12 m², couloir desservant WC, salle de bains, buanderie, 3 chambres., Cellier, garage. La presente annonce immobiliere vise 3 lots situés dans une copropriété de 161 lots au total et ne faisant l'objet d'aucune procédure en cours citée à l'article L. 721-1 du code de la construction et de l'habitation. Montant moyen mensuel de charges déclaré par le vendeur : 662€ par mois (soit 7944 € annuel). Honoraires d'agence à la charge du vendeur. Information d'affichage énergétique sur ce bien : classe ENERGIE F indice 298 et classe CLIMAT F indice 93. Les informations sur les risques auxquels ce bien est exposé, y compris l'obligation légale de débroussaillement, sont disponibles sur le site Géorisques : http://www.georisques.gouv.fr. La présente annonce immobilière a été rédigée sous la responsabilité éditoriale de Mme Sabine PERRIN mandataire indépendant en immobilier (sans détention de fonds), agent commercial de la SAS I@D France immatriculé au RSAC de EVREUX sous le numéro 893308684, titulaire de la carte de démarchage immobilier pour le compte de la société I@D France SAS.
Ce mois
Cette annonce est récente
À proximité
Recherche des commodités à proximité...
Détails de l'annonce
Localisation
Ville
Évreux
Pays
FR
Diagnostics / Énergie
Diagnostic DPE
297
Diagnostic GES
93
Surfaces / Pièces / Composition
Nombre d’étages
4
Étage
4
Chauffage et diagnostics
Diagnostic de performance énergétique (DPE)
a
b
c
d
e
f
g
Indice d'émission de gaz à effet de serre (GES)
a
b
c
d
e
f
g
