Type
Bien immobilierTarif
747 532 €Chambres
0Salles de bain
0Vente Appartement 5 pièces
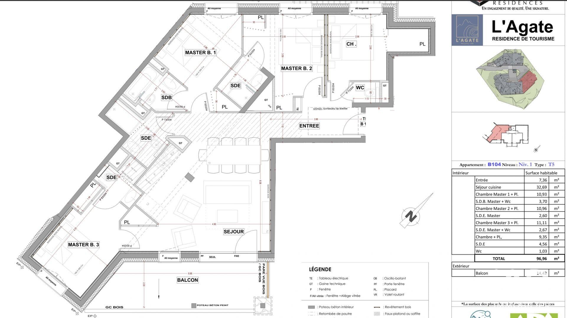
Iad France - Ophélie Rambaud (06 44 86 45 21) vous propose : Découvrez cet appartement T5 de rêve à Vaujany, au cOEur de la station ! Bénéficiez d'une vue imprenable sur les montagnes et d'un accès direct aux remontées mécaniques. Cet appartement lumineux se compose d'une pièce de vie avec cuisine ouverte, de trois master-rooms, d'une chambre et d'un balcon. Idéal pour une résidence secondaire ou un investissement locatif, la résidence offre des services de qualité, notamment une play-room et un espace bien-être. Ne manquez pas l'opportunité de profiter du territoire de l'Oisans été comme hiver ! Honoraires d’agence à la charge du vendeur. Bien non soumis au DPE. Les informations sur les risques auxquels ce bien est exposé sont disponibles sur le site Géorisques : www.georisques.gouv.fr. La présente annonce immobilière a été rédigée sous la responsabilité éditoriale de Mlle Ophélie Rambaud EI (ID 88878), mandataire indépendant en immobilier (sans détention de fonds), agent commercial de la SAS I@D France immatriculé au RSAC de CHAMBERY sous le numéro 884866872, titulaire de la carte de démarchage immobilier pour le compte de la société I@D France SAS. Retrouvez tous nos biens sur notre site internet. www.iadfrance.fr.
Cette semaine
Cette annonce est récente
À proximité
Recherche des commodités à proximité...
Détails de l'annonce
Localisation
Ville
Vaujany
Pays
FR
Surfaces / Pièces / Composition
Nombre d’étages
5
Chauffage et diagnostics
Diagnostic de performance énergétique (DPE)
a
b
c
d
e
f
g
Indice d'émission de gaz à effet de serre (GES)
a
b
c
d
e
f
g
