Type
Bien immobilierTarif
208 000 €Chambres
3Salles de bain
0Vente Maison/villa 5 pièces
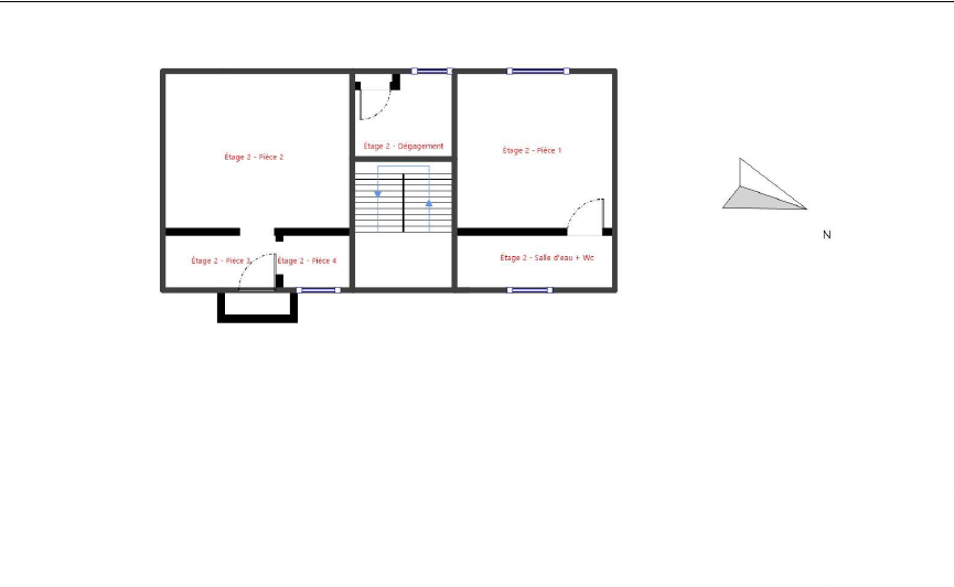
Iad France - Nicolas Mauguy vous propose : – Maison 164 m² à Fouquenies : Volumes exceptionnels à 5min de Beauvais, DPE D LE PRIX D’UN APPARTEMENT, L’ESPACE D’UNE MAISON ! iad France - Nicolas Mauguy vous présente cette maison de caractère située au cOEur du village prisé de Fouquenies, à seulement 5 km de Beauvais et 7 minutes du Plan d’Eau du Canada. Si vous recherchez de l'espace, du calme et la possibilité de créer un intérieur qui vous ressemble, ce bien est une opportunité rare sur le marché actuel. LES POINTS FORTS : • ESPACE DE VIE XXL : Un séjour triple de plus de 55 m², baigné de lumière, offrant un volume rare pour vos moments en famille. • LOCALISATION PRISÉE : Cadre de vie idyllique à deux pas des activités nautiques et des sentiers de randonnée du Plan d’Eau du Canada. • POTENTIEL ÉVOLUTIF : 163 m² habitables + des combles aménageables pour répondre à tous vos projets (4ème chambre, salle de jeux, bureau). AGENCEMENT DU BIEN : Au rez-de-chaussée : • Une entrée desservant la pièce de vie monumentale de 55 m². • Un espace cuisine ouvert, prêt à être aménagé et équipé selon vos goûts (une véritable toile blanche pour votre projet ! ). • Salle d’eau et WC. À l’étage (Espace Nuit) : • 3 chambres spacieuses aux volumes généreux, dont une suite atypique avec baignoire. • Accès aux combles offrant un potentiel de stockage ou d’agrandissement supplémentaire. Extérieurs & Annexes : • Un jardin clos pour la sécurité des enfants et des animaux. • Une terrasse pour vos repas d'été. • Une dépendance et une cave voûtée complètent ce bien. L’AVIS DU CONSEILLER : À 1 274 € / m², cette maison est idéalement placée pour une famille souhaitant valoriser un bien par un rafraîchissement global ou pour un investisseur averti. Sa proximité avec Beauvais et le cadre naturel de Fouquenies en font un placement sûr. INFOS TECHNIQUES : • Surface : 164 m² • DPE : Classe D Ne laissez pas passer ce volume ! Contactez-moi dès maintenant pour organiser une visite et découvrir tout le potentiel de cette maison. N'hésitez pas à me contacter pour plus d'informations ou pour organiser une visite. Honoraires d'agence à la charge du vendeur. Information d'affichage énergétique sur ce bien : classe ENERGIE E indice 259 et classe CLIMAT B indice 8. Les informations sur les risques auxquels ce bien est exposé, y compris l'obligation légale de débroussaillement, sont disponibles sur le site Géorisques : http://www.georisques.gouv.fr. La présente annonce immobilière a été rédigée sous la responsabilité éditoriale de M Nicolas Mauguy mandataire indépendant en immobilier (sans détention de fonds), agent commercial de la SAS I@D France immatriculé au RSAC de Beauvais sous le numéro 934250549, titulaire de la carte de démarchage immobilier pour le compte de la société I@D France SAS.
À proximité
Recherche des commodités à proximité...
Détails de l'annonce
Localisation
Ville
Beauvais
Pays
FR
Diagnostics / Énergie
Diagnostic DPE
259
Diagnostic GES
8
Surfaces / Pièces / Composition
Nombre d’étages
2
Chauffage et diagnostics
Diagnostic de performance énergétique (DPE)
a
b
c
d
e
f
g
Indice d'émission de gaz à effet de serre (GES)
a
b
c
d
e
f
g
