F2 Dernier étage Ascenseur Cheminée Parking privé
Type
Bien immobilierTarif
97 000 €Chambres
1Salles de bain
1F2 Dernier étage Ascenseur Cheminée Parking privé
Mandat exclusif le 22.07.2025. Compromis le 17.09.2025. Acte authentique le 18.12.2025.
Dossier de vente sécurisé par Jonathan Gubello (06.25.15.44.66) et Alain Brecheisen (06.23.18.57.74), réseau LF immo, by La Fédé.
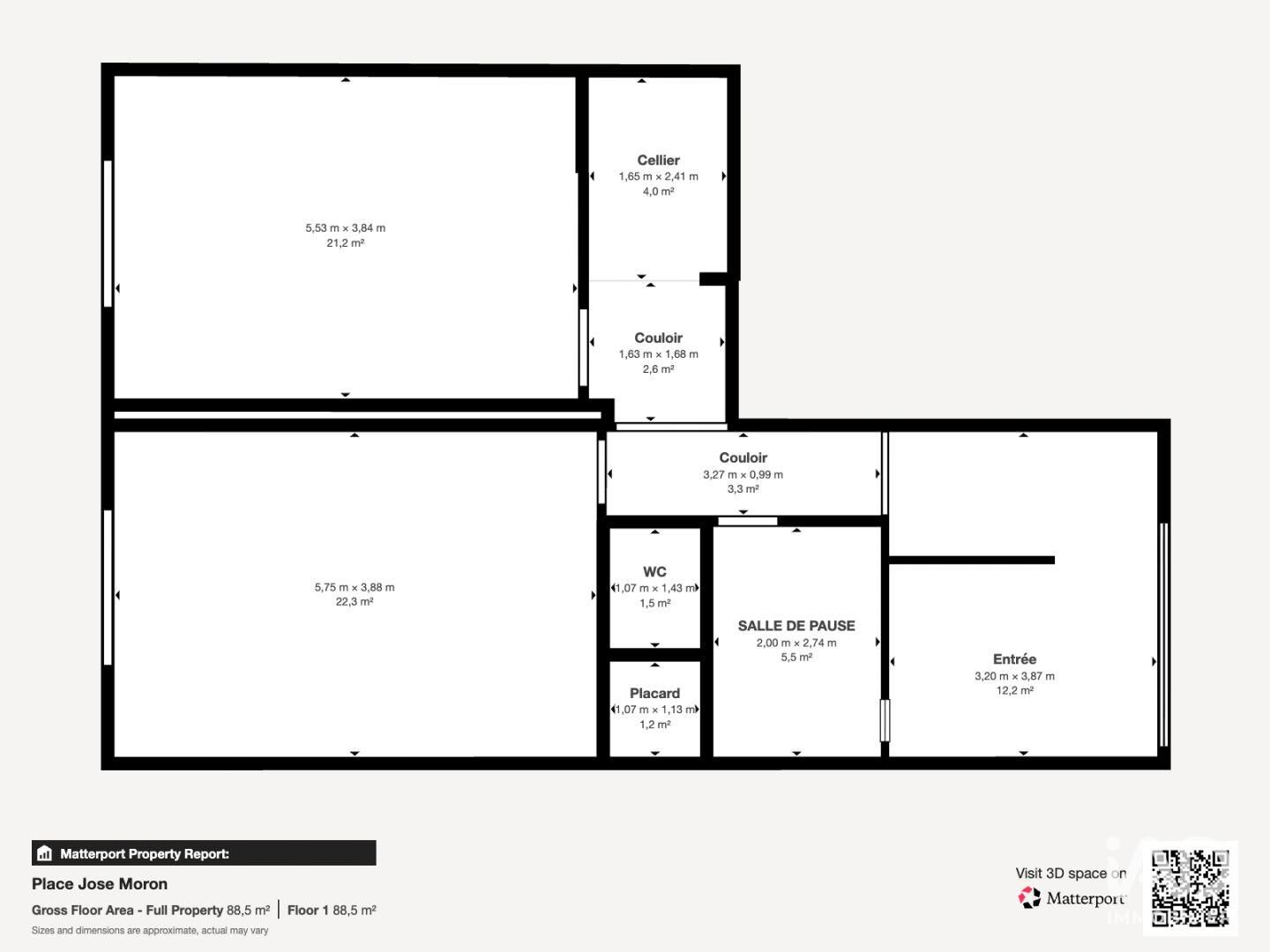
À environ 1h10 de Mulhouse, 1h45 de Strasbourg et 15 min de Gérardmer. Pied-à-terre sympa au cœur des Vosges. F2 de 52,14 m² + véranda de 8 m² (vue panoramique). À 2 pas : pistes, sentiers, plaisirs variés au sein du plus grand domaine skiable du Nord-Est. Ambiance chaleureuse et pratique : jusqu’à 5 couchages + cuisine fonctionnelle + SDB + WC séparés + cheminée + place de parking privative + local à skis et à vélos.
Bien soumis au statut de la copropriété, 60 logements, procédure en cours : aucune, 180 lots, Charges budget prévisionnel annuel 1 530 €.
Annonce publiée par Alain Brecheisen (EI) votre agent commercial en immobilier LF immo à Oberhausbergen, 67205 immatriculé au RSAC de Strasbourg sous le n°437 807 415 000 25. Consultez nos tarifs sur le site LF immo.
Les informations sur les risques auxquels ce bien est exposé sont disponibles sur le site Géorisques : www.georisques.gouv.fr.
Dossier de vente sécurisé par Jonathan Gubello (06.25.15.44.66) et Alain Brecheisen (06.23.18.57.74), réseau LF immo, by La Fédé.
À environ 1h10 de Mulhouse, 1h45 de Strasbourg et 15 min de Gérardmer. Pied-à-terre sympa au cœur des Vosges. F2 de 52,14 m² + véranda de 8 m² (vue panoramique). À 2 pas : pistes, sentiers, plaisirs variés au sein du plus grand domaine skiable du Nord-Est. Ambiance chaleureuse et pratique : jusqu’à 5 couchages + cuisine fonctionnelle + SDB + WC séparés + cheminée + place de parking privative + local à skis et à vélos.
Bien soumis au statut de la copropriété, 60 logements, procédure en cours : aucune, 180 lots, Charges budget prévisionnel annuel 1 530 €.
Annonce publiée par Alain Brecheisen (EI) votre agent commercial en immobilier LF immo à Oberhausbergen, 67205 immatriculé au RSAC de Strasbourg sous le n°437 807 415 000 25. Consultez nos tarifs sur le site LF immo.
Les informations sur les risques auxquels ce bien est exposé sont disponibles sur le site Géorisques : www.georisques.gouv.fr.
À proximité
Recherche des commodités à proximité...
Détails de l'annonce
Caractéristiques / Équipements
Ascenseur
Oui
Cave
Oui
Mandat exclusif
Oui
Meublé
Oui
Cheminée
Oui
Vue dégagée
Oui
Localisation
Ville
La Bresse - Hohneck
Pays
France
Adresse
2 Vouille de Belle Hutte
Diagnostics / Énergie
Diagnostic DPE
G
Diagnostic GES
D
Consommation en énergie (kWh/m²/an)
1023
Émissions de GES
33
Version du DPE
DPE version 07-2021
DPE coût min. estimé
3620.0
DPE coût max. estimé
4970.0
DPE année de référence conso
01/01/2023
Finances / Mandat / Références
Honoraires vendeur
€
Date du mandat
Brecheisen
Identifiant agence
LFIMMO
Prénom mandataire
Alain
Raison sociale mandataire
réel simplifié
CP mandataire
67205
Ville mandataire
Oberhausbergen
Téléphone mandataire
0623185774
Code négociateur
201
Identifiant technique (code)
fr064655
Honoraires à la charge de
2 €
Prix hors honoraires acquéreur
97000.0 €
Chauffage / Énergie
Type de chauffage
électrique
Cuisine
Type de cuisine
coin cuisine
Photos / Médias / Visites
URL visite virtuelle
https://youtu.be/NFmDvhL0aLg
Contact à afficher
Alain Brecheisen
Copropriété / Syndic
En copropriété
Oui
Nombre de lots en copropriété
180
Charges annuelles de copropriété
1530.0
Chauffage et diagnostics
Diagnostic de performance énergétique (DPE)
a
b
c
d
e
f
g
Indice d'émission de gaz à effet de serre (GES)
a
b
c
d
e
f
g
