Vente Maison/villa 4 pièces
Type
Bien immobilierTarif
349 900 €Chambres
3Salles de bain
0Vente Maison/villa 4 pièces
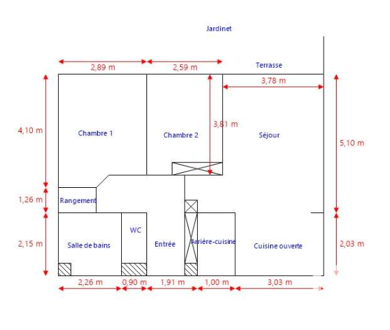
Iad France - Andy Demorise vous propose : Elégance et confort : Villa RT 2012 avec piscine dans un cadre paisible à Claira. Située dans un environnement calme et recherché de Claira, cette villa récente d'une superficie totale de plus de 125 m², conjugue confort moderne, économies d’énergie et véritable art de vivre. Construite sous la réglementation RT 2012, elle offre des prestations soignées et une atmosphère unique, loin des maisons standardisées. Dès l’extérieur, le charme opère : un jardin aménagé avec goût, une piscine et un espace détente composent un cadre propice à la détente. La terrasse carrelée, protégée par une pergola bioclimatique, accueille une cuisine d’été avec barbecue, parfaite pour partager de beaux moments entre amis ou en famille. À l’intérieur, la maison séduit immédiatement par son ambiance chaleureuse. La pièce de vie de 50 m², baignée de lumière, offre un espace ouvert et convivial, où la décoration, pensée avec beaucoup de goût, apporte une touche de charme et de personnalité. La cuisine américaine, moderne et fonctionnelle, s’intègre harmonieusement à cet ensemble accueillant. Le garage de 22 m², avec mezzanine, offre un bel espace supplémentaire pour le rangement, le bricolage ou même la création d’une suite parentale au rez-de-chaussée. À l’étage, le coin nuit se compose de trois chambres confortables, dont une de 15 m² avec dressing et une salle de bains combinant baignoire et douche à l’italienne. Il ne vous reste plus qu'a poser vos valises et profiter pleinement de votre nouvelle maison. Honoraires d'agence à la charge du vendeur. Information d'affichage énergétique sur ce bien : classe ENERGIE A indice 43 et classe CLIMAT A indice 1. Les informations sur les risques auxquels ce bien est exposé, y compris l'obligation légale de débroussaillement, sont disponibles sur le site Géorisques : http://www.georisques.gouv.fr. La présente annonce immobilière a été rédigée sous la responsabilité éditoriale de M Andy Demorise mandataire indépendant en immobilier (sans détention de fonds), agent commercial de la SAS I@D France immatriculé au RSAC de Perpignan sous le numéro 517802963, titulaire de la carte de démarchage immobilier pour le compte de la société I@D France SAS.
Détails de l'annonce
Localisation
Ville
Claira
Pays
FR
Diagnostics / Énergie
Diagnostic DPE
43
Chauffage et diagnostics
Diagnostic de performance énergétique (DPE)
a
b
c
d
e
f
g
Indice d'émission de gaz à effet de serre (GES)
a
b
c
d
e
f
g
