Type
Bien immobilierTarif
500 000 €Chambres
3Salles de bain
0Vente Appartement 4 pièces
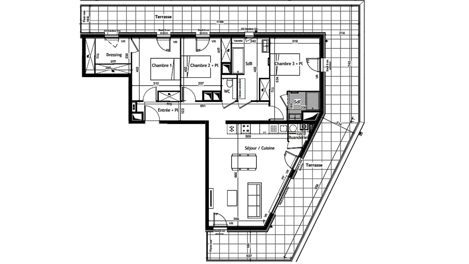
Iad France - Sarah Rozière (06 99 86 19 42) vous propose : Appartement T4 avec terrasses à Sciez. Au cOEur de la résidence contemporaine SWAN, idéalement située route d’Excenevex à Sciez, découvrez une adresse élégante qui associe qualité architecturale, confort moderne et qualité de vie. À deux pas du centre-ville, des commerces et du futur parc paysager, la résidence bénéficie d’un environnement privilégié à proximité immédiate du Léman. Disponible 2026. Un appartement raffiné : Situé au 4 ème étage, cet appartement T4 de 101 m² environ habitables se prolonge par une terrasse de 72 m² environ. - Séjour / cuisine de 33 m² environ. - Trois belles chambres dont une suite parentale. - Salle de bains moderne et WC séparés. - Annexes incluses : 2 parkings en sous-sol et 1 cave. De belles prestation : - Volets roulants motorisés. - Chauffage individuel au gaz avec chaudière à condensation. - Résidence sécurisée : badge Vigik, visiophone couleur, porte palière blindée et isophonique A2P * 3 points. - Stationnements en sous-sol sécurisés par porte automatique. L’art de vivre à Sciez : - Commerces, services, école, mairie et équipements sportifs accessibles à pied. - Port et plages de Sciez à 10 minutes en vélo. - Connexions rapides : gare de Bons-en-Chablais (15 min), Genève centre (40 min), Lausanne via Thonon (bateau en 15 min). - Un cadre naturel unique entre lac et montagne. N’hésitez pas à me contacter pour plus d’informations ou pour un accompagnement sur mesure. Honoraires d’agence à la charge du vendeur. Bien non soumis au DPE. Les informations sur les risques auxquels ce bien est exposé sont disponibles sur le site Géorisques : www.georisques.gouv.fr. La présente annonce immobilière a été rédigée sous la responsabilité éditoriale de Mlle Sarah Rozière EI (ID 83696), mandataire indépendant en immobilier (sans détention de fonds), agent commercial de la SAS I@D France immatriculé au RSAC de Clermont-Ferrand sous le numéro 978616993, titulaire de la carte de démarchage immobilier pour le compte de la société I@D France SAS. Retrouvez tous nos biens sur notre site internet. www.iadfrance.fr.
À proximité
Recherche des commodités à proximité...
Détails de l'annonce
Localisation
Ville
Sciez
Pays
FR
Surfaces / Pièces / Composition
Nombre d’étages
4
Étage
4
Chauffage et diagnostics
Diagnostic de performance énergétique (DPE)
a
b
c
d
e
f
g
Indice d'émission de gaz à effet de serre (GES)
a
b
c
d
e
f
g
