Trouver...

Language: FR

Devise: EUR

Vente Appartement 2 pièces

Publié le 6 January 2026
Type
Bien immobilier
Tarif
188 200 €
Chambres
1
Salles de bain
0

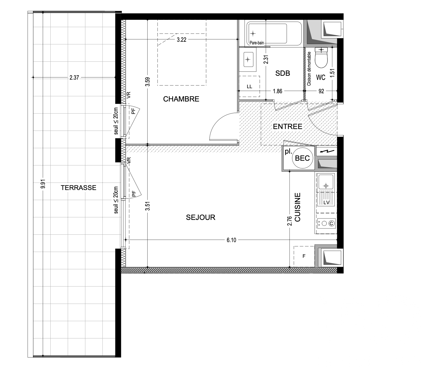
Vente Appartement 2 pièces

Iad France - Kevin Alibert vous propose : Appartement T2 avec terrasse & parking Magnifique vue dégagée Situé aux dernier étage dans un immeuble récent de 4 étages, cet appartement de type T2 offre : Un séjour accueillant et d'une cuisine ouverte. Une chambre spacieuse Une salle de bain Cet appartement bénéficie d'une exposition ouest, offrant une belle luminosité tout au long de la journée. Profiter de magnifiques couchers de soleil depuis votre espace de vie. La résidence sécurisée vous garantit tranquillité et sérénité. Vous pourrez également profiter d'un système de chauffage individuel avec climatisation réversible pour un confort thermique optimal toute l'année. Une place de parking privative est incluse. La presente annonce immobiliere vise 2 lots situés dans une copropriété de 100 lots au total et ne faisant l'objet d'aucune procédure en cours citée à l'article L. 721-1 du code de la construction et de l'habitation. Montant moyen mensuel de charges déclaré par le vendeur : 62€ par mois (soit 744 € annuel). Honoraires d'agence à la charge du vendeur. Bien non soumis au DPE. Les informations sur les risques auxquels ce bien est exposé, y compris l'obligation légale de débroussaillement, sont disponibles sur le site Géorisques : http://www.georisques.gouv.fr. La présente annonce immobilière a été rédigée sous la responsabilité éditoriale de M Kevin Alibert mandataire indépendant en immobilier (sans détention de fonds), agent commercial de la SAS I@D France immatriculé au RSAC de NImes sous le numéro 919817791, titulaire de la carte de démarchage immobilier pour le compte de la société I@D France SAS.
Ce mois Cette annonce est récente

À proximité

Recherche des commodités à proximité...

Détails de l'annonce

Localisation

Ville
Agde
Pays
FR

Surfaces / Pièces / Composition

Nombre d’étages
4
Étage
4

Chauffage et diagnostics

Diagnostic de performance énergétique (DPE)
a
b
c
d
e
f
g
Indice d'émission de gaz à effet de serre (GES)
a
b
c
d
e
f
g
Rappelez-moi