Trouver...

Language: FR

Devise: EUR

Vente Bureaux 29 m²

Publié le 24 November 2025
Type
Bien immobilier
Tarif
275 000 €
Chambres
0
Salles de bain
0

Vente Bureaux 29 m²

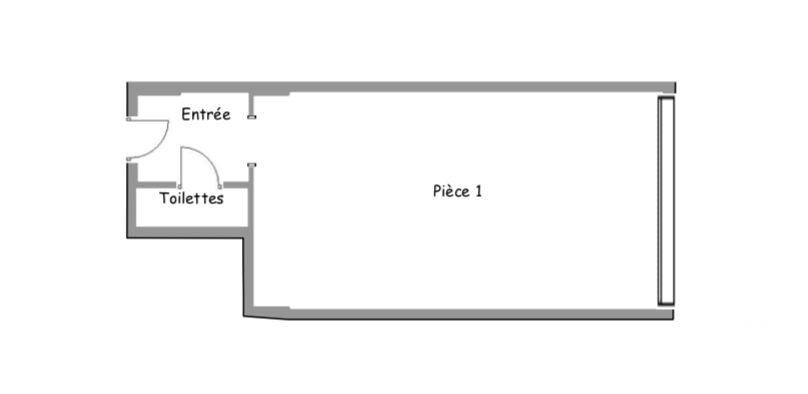
Iad France - Stéphanie Foulquier (06 87 73 13 00) vous propose : BAS MOUFFETARD / 4 Rue de Valence : Local commercial / bureau de 29 m² environ, situé au RDC d’un immeuble des années 60 bien entretenu. NB : Le propriétaire refuse une condition suspensive de transformation en hébergement hotelier, l'acquéreur en fera donc son affaire personnelle. Le local se compose d’une petite entrée, d’une pièce principale de 25 m. 2 (sur rue, orienté Sud) et d’un WC avec lavabo. Possibilité d’acquérir et de relier le lot mitoyen de 37 m. 2. Pas d’entrée directe sur la rue. Métro Censier ou Les Gobelins (7) - Direct Bus vers Gare de Lyon ou Montparnasse. Chauffage et eau collectifs, compris dans les charges. Information d'affichage énergétique sur le bien associé à cette annonce : DPE NS indice 0 et GES NS indice 0. La présente annonce immobilière a été rédigée sous la responsabilité éditoriale de Mme Stéphanie Foulquier (ID 13405), Agent Commercial mandataire en immobilier immatriculé au Registre Spécial des Agents Commerciaux (RSAC) du Tribunal de Commerce de PARIS sous le numéro 524 400 785 Retrouvez tous nos biens sur notre site internet. www.iadfrance.fr.

À proximité

Recherche des commodités à proximité...

Détails de l'annonce

Localisation

Ville
Paris
Pays
FR

Surfaces / Pièces / Composition

Nombre d’étages

Chauffage et diagnostics

Diagnostic de performance énergétique (DPE)
a
b
c
d
e
f
g
Indice d'émission de gaz à effet de serre (GES)
a
b
c
d
e
f
g
Rappelez-moi