Type
Bien immobilierTarif
198 000 €Chambres
3Salles de bain
0vente appartement
Cet appartement T4 est situé dans le secteur recherché en périphérie du centre La Valette du Var.
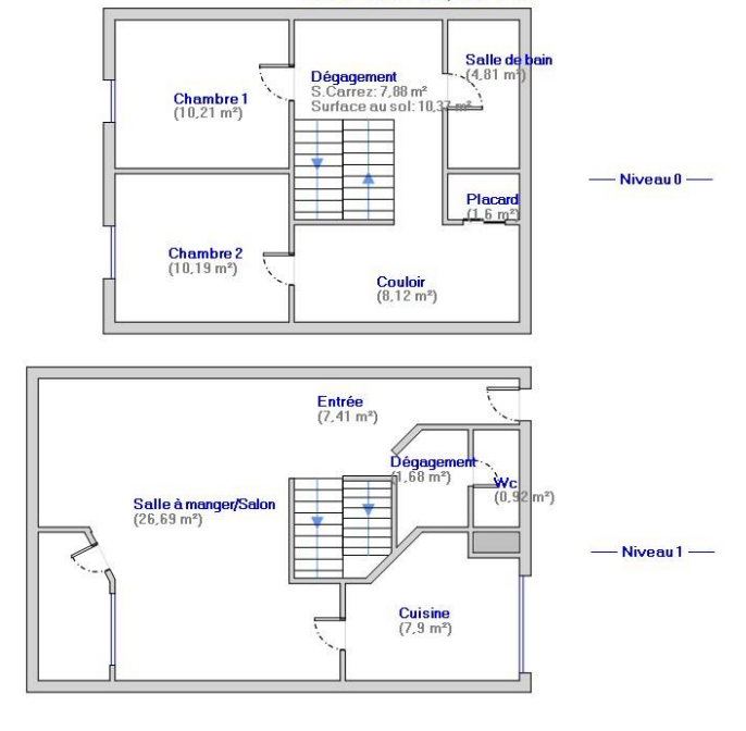
Il est composé d'un séjour, de trois chambres, d'une cuisine indépendante aménagée. Toutes ces pièces, grâce à leur porte fenêtre, ont accès à deux loggias, et également d'une salle d'eau, d'un WC indépendant et d'une cave.
Il est situé au 9° et dernier étage, dans une résidence fermée avec un parking collectif. Un gardien assure l'entretien des espaces verts, des voies de circulation et des parkings.
Un portillon permet l'accès à un supermarché. La proximité du centre vous apporte toutes les commodités.
Le séjour et une chambre sont orientés sud-est, les deux autres chambres et la cuisine au sud-ouest. Grâce à ses portes fenêtres l'appartement est très lumineux. Il bénéficie de nombreux placards. Les fenêtres en PVC double vitrage furent changées en 2022. Un chauffe-eau instantané fut installé en 2023.
La copropriété est composée de 124 lots dont 120 appartements, pas de procédure d'alerte ou de redressement judiciaire en cours. Le montant des charges de l'appartement et de la cave s'élève à 2286 euros par an, chauffage compris.
Le DPE fut établi le.
Le prix de vente est de 198?000 euros, les honoraires d'agence sont à la charge du vendeur.
Pour de plus amples renseignements contacter le 04 94 20 18 00.
Les informations sur les risques auxquels ce bien est exposé sont disponibles sur le site Géorisques : www.georisques.gouv.fr
Il est composé d'un séjour, de trois chambres, d'une cuisine indépendante aménagée. Toutes ces pièces, grâce à leur porte fenêtre, ont accès à deux loggias, et également d'une salle d'eau, d'un WC indépendant et d'une cave.
Il est situé au 9° et dernier étage, dans une résidence fermée avec un parking collectif. Un gardien assure l'entretien des espaces verts, des voies de circulation et des parkings.
Un portillon permet l'accès à un supermarché. La proximité du centre vous apporte toutes les commodités.
Le séjour et une chambre sont orientés sud-est, les deux autres chambres et la cuisine au sud-ouest. Grâce à ses portes fenêtres l'appartement est très lumineux. Il bénéficie de nombreux placards. Les fenêtres en PVC double vitrage furent changées en 2022. Un chauffe-eau instantané fut installé en 2023.
La copropriété est composée de 124 lots dont 120 appartements, pas de procédure d'alerte ou de redressement judiciaire en cours. Le montant des charges de l'appartement et de la cave s'élève à 2286 euros par an, chauffage compris.
Le DPE fut établi le.
Le prix de vente est de 198?000 euros, les honoraires d'agence sont à la charge du vendeur.
Pour de plus amples renseignements contacter le 04 94 20 18 00.
Les informations sur les risques auxquels ce bien est exposé sont disponibles sur le site Géorisques : www.georisques.gouv.fr
À proximité
Recherche des commodités à proximité...
Détails de l'annonce
Localisation
Ville
La Valette du Var
Pays
France
Caractéristiques / Équipements
Ascenseur
Oui
Cave
Oui
Diagnostics / Énergie
Diagnostic DPE
D
Diagnostic GES
D
Finances / Mandat / Références
Numéro de mandat
13492
Type de mandat
02/02/2026
Chauffage et diagnostics
Diagnostic de performance énergétique (DPE)
a
b
c
d
e
f
g
Indice d'émission de gaz à effet de serre (GES)
a
b
c
d
e
f
g
