Trouver...

Language: FR

Devise: EUR

Appartement le Plein Soleil

Publié le 13 August 2025
Type
Bien immobilier
Tarif
150 000 €
Chambres
2
Salles de bain
0

Appartement le Plein Soleil

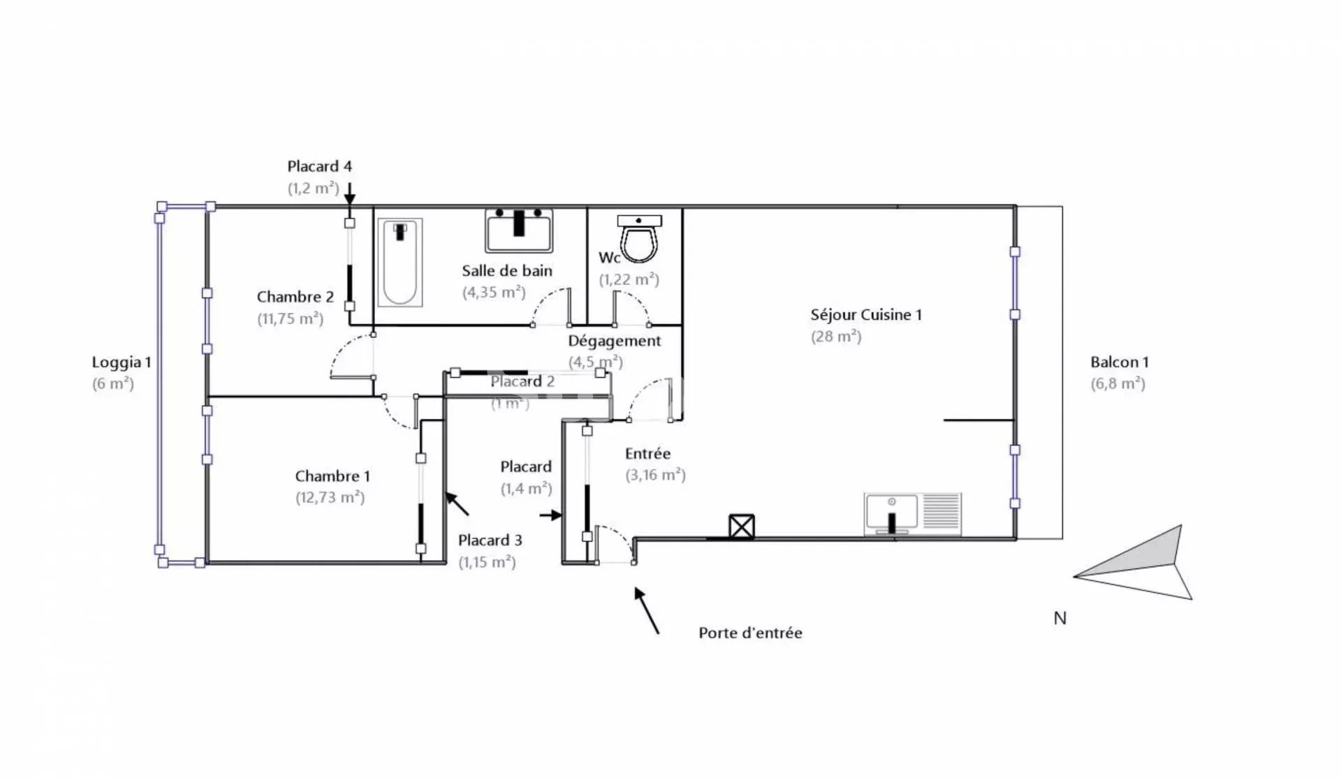
Réf 70009RD : belle Appartement 70m2 au 6e étages avec ascenseur dans une copropriété bien entretenue et sécurisé. Type 3, avec loggia et balcon récemment rénové côté sud, 1 place de parking en sous-sol. Idéale pour la location.

À proximité

Recherche des commodités à proximité...

Détails de l'annonce

Finances / Mandat / Références

Charges
Dépôt de garantie

Localisation

Ville
Marseille 3ème
Pays
FR

Diagnostics / Énergie

Diagnostic DPE
108
Diagnostic GES
22

Surfaces / Pièces / Composition

Surface (m²)
70.46 m²
Nombre de pièces
3
Nombre de chambres
2
Étage
6

Caractéristiques / Équipements

Terrain viabilisé

Chauffage et diagnostics

Diagnostic de performance énergétique (DPE)
a
b
c
d
e
f
g
Indice d'émission de gaz à effet de serre (GES)
a
b
c
d
e
f
g
Rappelez-moi