Type
Bien immobilierTarif
460 211 €Chambres
3Salles de bain
0Projet de Villa individuelle
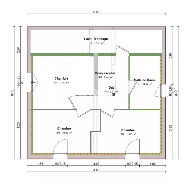
Réf 70389F3FVFV : FILLIERE - Projet de Villa d’environ 90 m², une belle pièce de vie ouverte, 3 chambres, un garage.
Lotissement 4 Lots.
visuel non contractuel.
A découvrir !
À proximité
Recherche des commodités à proximité...
Détails de l'annonce
Finances / Mandat / Références
Charges
€
Dépôt de garantie
€
Localisation
Ville
Fillière
Pays
FR
Chauffage / Énergie
Chauffage
Au sol
Accès
Individuel
Énergie
Pompe à chaleur
Type de chauffage
2
Énergie
7
Surfaces / Pièces / Composition
Surface (m²)
90 m²
Nombre de pièces
4
Nombre de chambres
3
Nombre d’étages
2
Caractéristiques / Équipements
Terrain viabilisé
Standing
5
Chauffage et diagnostics
Diagnostic de performance énergétique (DPE)
a
b
c
d
e
f
g
Indice d'émission de gaz à effet de serre (GES)
a
b
c
d
e
f
g
