Type
Bien immobilierTarif
284 000 €Chambres
2Salles de bain
0Vente Appartement 4 pièces
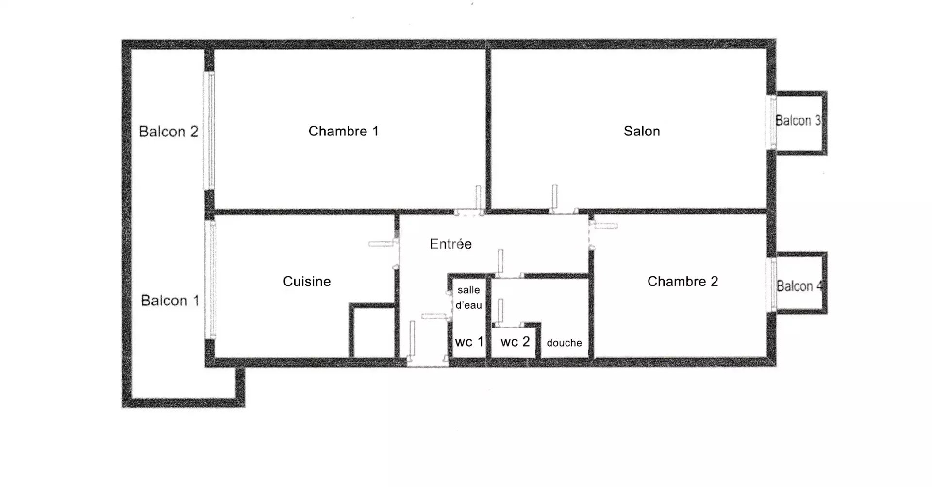
Iad France - Christel Lavenant vous propose : * APPARTEMENT 4 PIECES * 2 BALCONS * CAVE * PARKING * LE BOURGET * Au cOEur de la ville, vous trouverez ce bel appartement de 4 pièces situé au 5e et dernier étage d'1 immeuble construit en 1975, offrant une surface habitable de 84.85 m². IL a été entretenu avec soin et est en excellent état. Idéal pour les familles, les couples ou les investisseurs à la recherche d'un bien immobilier de qualité. L'appartement se compose d'1 entrée parquetée, 1 cuisine entièrement aménagée et équipée avec son cellier attenant, 1 double séjour lumineux et chaleureux avec accès direct au grand balcon, 2 chambres parquetées dont 1 avec placard (chacune 1 balcon), 1 salle d'eau rénovée, 1 WC séparé, 1 dressing. Les deux balcons offrent un espace extérieur supplémentaire et une vue dégagée sur les environs. Vous pourrez vous projeter plus facilement grâce au home staging, photos avant / après. Une place de parking en sous-sol est également prévue pour garer votre véhicule en toute tranquillité. Les + : * volets roulants électriques. * store ban manuel. * frigo Whirlpool neuf. * fenêtres changées en 2022. * les charges comprennent tout : eau chaude et froide, chauffage, ascenseur, entretien espaces verts, ménage. * travaux votés et payés pour 2026 avec passage à la géothermie, ravalement et étanchéité des balcons et toit terrasse (TRAVAUX ENERGETIQUES PREVUS EN MARS AVRIL 2026). L'emplacement de cet appartement est idéal, à proximité des commerces, des écoles, des transports en commun et des espaces verts. Ne manquez pas cette opportunité unique d'acquérir un appartement confortable et bien entretenu dans la résidence recherchée des Acacias. Simulation bancaire datant de - 3 mois demandée avant toute visite. Intercabinet possible. La presente annonce immobiliere vise 3 lots situés dans une copropriété de 126 lots au total et ne faisant l'objet d'aucune procédure en cours citée à l'article L. 721-1 du code de la construction et de l'habitation. Montant moyen mensuel de charges déclaré par le vendeur : 300€ par mois (soit 3600 € annuel). Honoraires d'agence à la charge du vendeur. Information d'affichage énergétique sur ce bien : classe ENERGIE E indice 234 et classe CLIMAT E indice 51. Les informations sur les risques auxquels ce bien est exposé, y compris l'obligation légale de débroussaillement, sont disponibles sur le site Géorisques : http://www.georisques.gouv.fr. La présente annonce immobilière a été rédigée sous la responsabilité éditoriale de Mme Christel Lavenant mandataire indépendant en immobilier (sans détention de fonds), agent commercial de la SAS I@D France immatriculé au RSAC de MEAUX sous le numéro 884511908, titulaire de la carte de démarchage immobilier pour le compte de la société I@D France SAS.
À proximité
Recherche des commodités à proximité...
Détails de l'annonce
Localisation
Ville
Le Bourget
Pays
FR
Diagnostics / Énergie
Diagnostic DPE
234
Diagnostic GES
51
Surfaces / Pièces / Composition
Nombre d’étages
5
Étage
5
Chauffage et diagnostics
Diagnostic de performance énergétique (DPE)
a
b
c
d
e
f
g
Indice d'émission de gaz à effet de serre (GES)
a
b
c
d
e
f
g
