Type
Bien immobilierTarif
865 000 €Chambres
3Salles de bain
0Vente Appartement 4 pièces
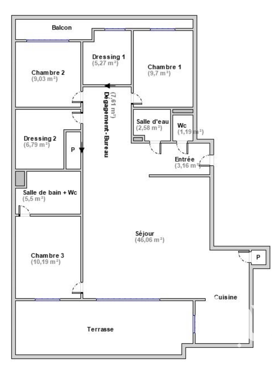
Iad France - Mikael Jerusalmy vous propose : Comme une maison à Paris, je vous présente cet appartement familial de 108 m² en rez-de-jardin avec terrasse de 20 m² situé Rue ORFILA à 3 mn du métro Gambetta dans un immeuble de standing de 2004 Kaufman and Broad. L'entrée s'ouvre sur un vaste salon / salle à manger de 46 m² avec cuisine américaine aménagée et équipée donnant sur une très jolie terrasse de 19 m². Vous disposez de 3 chambres dont une chambre parentale ainsi qu'une salle d'eau et de 2 WC. Un espace qui sépare les chambres du salon peut être utilisé comme bureau. Vous disposez également de 2 dressings. La vente de ce bien comprend aussi 2 caves. Les plus : - Familial avec 3 chambres - Terrasse - une salle d'eau et une salle de bain - 2 WC - 2 dressings - 2 caves - local vélos / poussettes - A proximité immédiate des transports, des écoles (notre Dame de Lourdes) mais également des commerces et théâtres. Possibilité d'acquérir un emplacement de parking en sus. Contactez moi dès maintenant pour organiser une visite et découvrir ce bien. La presente annonce immobiliere vise 4 lots situés dans une copropriété de 82 lots au total et ne faisant l'objet d'aucune procédure en cours citée à l'article L. 721-1 du code de la construction et de l'habitation. Montant moyen mensuel de charges déclaré par le vendeur : 173.33€ par mois (soit 2080 € annuel). Honoraires d'agence à la charge du vendeur. Information d'affichage énergétique sur ce bien : classe ENERGIE D indice 188 et classe CLIMAT D indice 6. Les informations sur les risques auxquels ce bien est exposé, y compris l'obligation légale de débroussaillement, sont disponibles sur le site Géorisques : http://www.georisques.gouv.fr. La présente annonce immobilière a été rédigée sous la responsabilité éditoriale de M Mikael Jerusalmy mandataire indépendant en immobilier (sans détention de fonds), agent commercial de la SAS I@D France immatriculé au RSAC de Paris sous le numéro 884758962, titulaire de la carte de démarchage immobilier pour le compte de la société I@D France SAS.
À proximité
Recherche des commodités à proximité...
Détails de l'annonce
Localisation
Ville
Paris
Pays
FR
Diagnostics / Énergie
Diagnostic DPE
188
Diagnostic GES
6
Surfaces / Pièces / Composition
Nombre d’étages
6
Chauffage et diagnostics
Diagnostic de performance énergétique (DPE)
a
b
c
d
e
f
g
Indice d'émission de gaz à effet de serre (GES)
a
b
c
d
e
f
g
