Trouver...

Language: FR

Devise: EUR

Vente Pavillon 5 pièces

Publié le 8 September 2025
Type
Bien immobilier
Tarif
159 000 €
Chambres
4
Salles de bain
0

Vente Pavillon 5 pièces

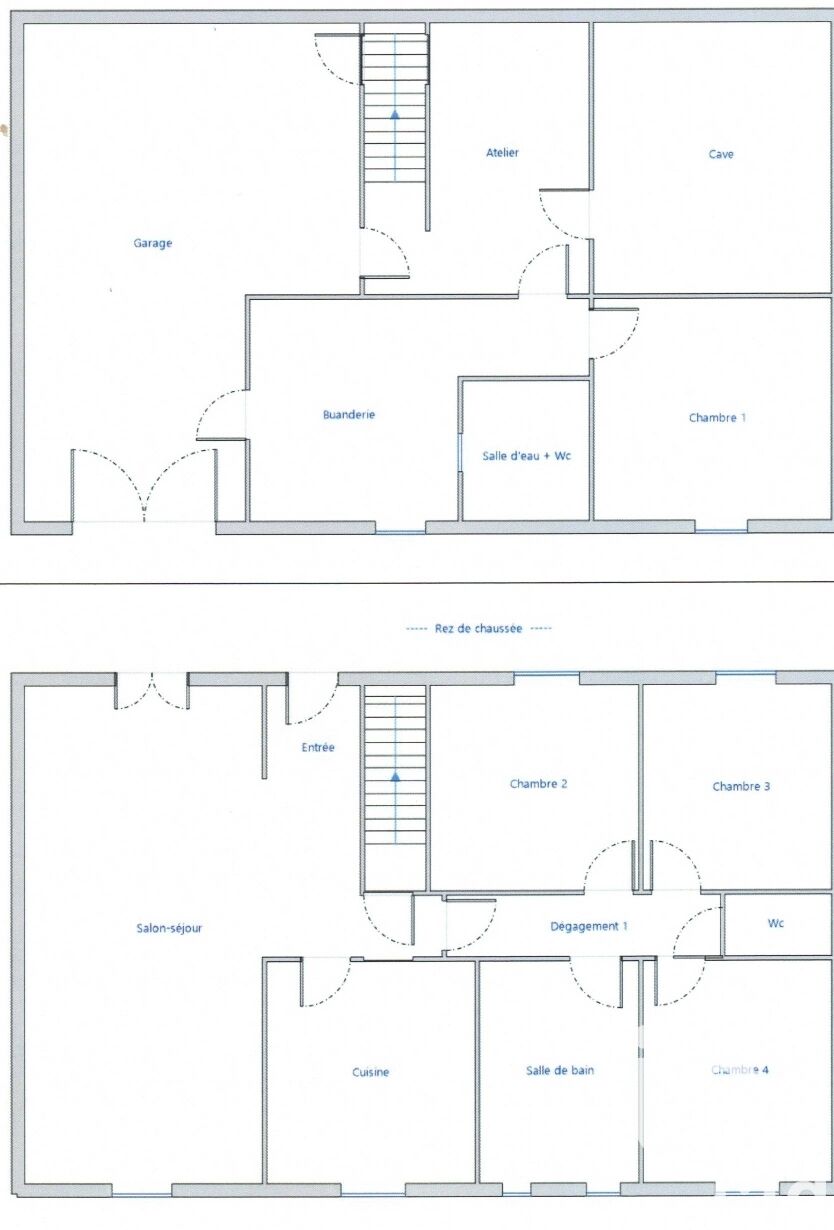
Iad France - Carole Flandrin vous propose : Charmant Pavillon Familial rénové avec Jardin, terrasse et Garage à Bessé-sur-Braye Venez découvrir ce pavillon familial rénové, situé à Bessé-sur-Braye, offrant un cadre de vie idéal pour votre famille. Cette maison individuelle de 118 m² est répartie sur 2 niveaux et bénéficie d'un terrain de 571 m² au calme. L'espace de vie se compose d'une entrée sur un séjour lumineux de 31 m², d'une cuisine séparée entièrement équipée et aménagée, de 3 chambres spacieuses, d'une salle de bain et d'un toilette séparé. Au niveau du sous-sol complet, vous y trouverez un grand garage avec porte électrique sectionnelle, une grande buanderie, d'une salle d'eau avec WC, une quatrième chambre, un atelier et une cave. Les pièces sont bien agencées pour offrir confort et fonctionnalité au quotidien. Le pavillon dispose également d'une terrasse où vous pourrez vous détendre en plein air et profiter des journées ensoleillées. Le jardin arboré vous offrira un espace verdoyant et paisible pour vous ressourcer en toute tranquillité. En plus d'un garage pour stationner votre véhicule en toute sécurité, cette propriété est équipée de la fibre optique, d'une VMC double flux, de panneaux photovoltaïques et d'une éolienne. Un chauffage individuel avec distribution par radiateurs récents et poêle à bois, des huisseries PVC et double-vitrage et un assainissement au tout à l'égout vous offrent un confort optimal. Excepté un rafraîchissement de la salle de bain, vous n'avez pas de travaux à prévoir. À proximité immédiate de différents points d'intérêt tels que le collège et les commerces, cette maison bénéficie d'une situation idéale pour faciliter votre quotidien. Si vous recherchez un bien familial chaleureux et fonctionnel, n'attendez plus pour visiter ce charmant pavillon à Bessé-sur-Braye, à 30 minutes de la gare TGV de Vendôme et 50 mn du Mans. Contactez-nous dès maintenant pour organiser une visite et laissez-vous séduire par le potentiel de cette belle propriété. Honoraires d'agence à la charge du vendeur. Information d'affichage énergétique sur ce bien : classe ENERGIE D indice 249 et classe CLIMAT B indice 8. Les informations sur les risques auxquels ce bien est exposé, y compris l'obligation légale de débroussaillement, sont disponibles sur le site Géorisques : http://www.georisques.gouv.fr. La présente annonce immobilière a été rédigée sous la responsabilité éditoriale de Mme Carole Flandrin mandataire indépendant en immobilier (sans détention de fonds), agent commercial de la SAS I@D France immatriculé au RSAC de LE MANS sous le numéro 912777406, titulaire de la carte de démarchage immobilier pour le compte de la société I@D France SAS.

À proximité

Recherche des commodités à proximité...

Détails de l'annonce

Localisation

Ville
Bessé-sur-Braye
Pays
FR

Diagnostics / Énergie

Diagnostic DPE
249
Diagnostic GES
8

Surfaces / Pièces / Composition

Nombre d’étages
2

Chauffage et diagnostics

Diagnostic de performance énergétique (DPE)
a
b
c
d
e
f
g
Indice d'émission de gaz à effet de serre (GES)
a
b
c
d
e
f
g
Rappelez-moi