Type
Bien immobilierTarif
790 000 €Chambres
2Salles de bain
0Vente Appartement 3 pièces
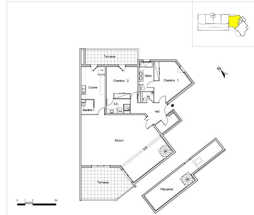
Iad France - Sabrina Martinez (06 09 75 78 33) vous propose : Aux Hauteurs de Saint-Raphaël, découvrez ce superbe appartement récent de 2021, situé au deuxième et dernier étage avec ascenseur d’une résidence de standing avec piscine. En version duplex, il offre un grand salon lumineux de 70 m² environ avec une belle vue mer, prolongé par une terrasse idéale pour profiter des beaux jours, une cuisine indépendante avec terrasse et une buanderie. Deux suites parentales confortables, une mezzanine apportant volume et caractère, un toilette indépendant, un cellier, et des prestations modernes complètent l’ensemble. Un garage en sous-sol vient parfaire ce bien rare. Un appartement élégant, lumineux et résolument agréable à vivre. Honoraires d’agence à la charge du vendeur. Bien non soumis au DPE. Les informations sur les risques auxquels ce bien est exposé sont disponibles sur le site Géorisques : www.georisques.gouv.fr. La présente annonce immobilière a été rédigée sous la responsabilité éditoriale de Mme Sabrina Martinez EI (ID 41019), mandataire indépendant en immobilier (sans détention de fonds), agent commercial de la SAS I@D France immatriculé au RSAC de FREJUS sous le numéro 877491530, titulaire de la carte de démarchage immobilier pour le compte de la société I@D France SAS. Retrouvez tous nos biens sur notre site internet. www.iadfrance.fr.
À proximité
Recherche des commodités à proximité...
Détails de l'annonce
Localisation
Ville
Saint-Raphaël
Pays
FR
Surfaces / Pièces / Composition
Nombre d’étages
2
Étage
2
Chauffage et diagnostics
Diagnostic de performance énergétique (DPE)
a
b
c
d
e
f
g
Indice d'émission de gaz à effet de serre (GES)
a
b
c
d
e
f
g
