Trouver...

Language: FR

Devise: EUR

Vente Maison de village 6 pièces

Publié le 4 January 2026
Type
Bien immobilier
Tarif
219 900 €
Chambres
3
Salles de bain
0

Vente Maison de village 6 pièces

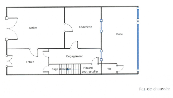
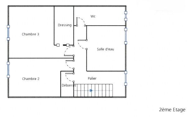
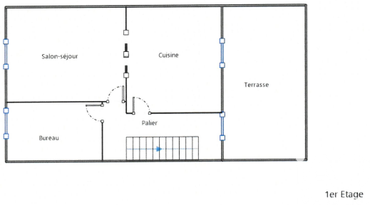
Iad France - Jérôme Algans vous propose : Située à Molandier, dans un environnement paisible au calme absolu, vous profitez de la douceur de vivre de l'Aude (taxe foncière attractive) tout en étant à 5 min de Mazères, 20 min de Pamiers et seulement 30 min du péage de Toulouse-Labège. Un cadre de vie entre intérieur et extérieur Édifiée sur une parcelle de 275 m², cette maison mitoyenne (sans vis a vis gênant) de 179.18 m² habitables est pensée pour la vie de famille Rez-de-chaussée fonctionnel : Un vaste hall d'entrée de 11 m² dessert un garage de 20 m², une buanderie spacieuse de 12 m² Une véranda, cet espace chauffé avec sanitaire indépendant est une véritable extension de la maison. Télétravail : Un bureau spacieux et lumineux,. Salon d'hiver : Un coin lecture baigné de lumière. Espace Bien-être : Parfait pour une salle de sport, un atelier d'artiste ou un salon de musique. Cette pièce s'ouvre sur le jardin, idéal pour les moments de détente en toute sérénité. Un abri de jardin de 10,6 m², idéal pour ranger vos outils et libérer de l'espace Premier étage le cOEur de la maison : Un séjour lumineux de 21 m² avec cheminée fonctionnelle, ouvrant sur un balcon offrant une vue sur la chaîne des Pyrénées. Cuisine : Un espace de 13 m², moderne et entièrement équipé, ouvert sur le séjour. Un accès direct à une terrasse couverte d'environs 22.5 m², permettant de rejoindre le jardin par quelques marches. Une première chambre de plus de 10.5 m² avec accès sur la balcon complète ce niveau. Second étage l'espace nuit : Deux grandes chambres (13,66 m² et 16,98 m²), dont une bénéficiant d'un dressing de 4,50 m². Une superbe salle d’eau rénovée avec goût, équipée d'une douche à l’italienne. Un WC indépendant avec lave-mains. Atouts supplémentaires : Système de chauffage central et production d’eau chaude via chaudière à granulés avec silo de stockage pour une grande autonomie. Ballon d’eau chaude électrique (150L) pour l’été Tout-à-l'égout Un puits avec pompe et filtre. Bénéficiez des avantages fiscaux de l'Aude (taxe foncière attractive) tout en profitant de la proximité immédiate de Mazères et de ses commodités. Ecoles, collège, commerces, accès autoroute A66 vers Toulouse. Honoraires d'agence à la charge du vendeur. Information d'affichage énergétique sur ce bien : classe ENERGIE C indice 133 et classe CLIMAT A indice 4. Les informations sur les risques auxquels ce bien est exposé, y compris l'obligation légale de débroussaillement, sont disponibles sur le site Géorisques : http://www.georisques.gouv.fr. La présente annonce immobilière a été rédigée sous la responsabilité éditoriale de M Jérôme Algans mandataire indépendant en immobilier (sans détention de fonds), agent commercial de la SAS I@D France immatriculé au RSAC de FOIX sous le numéro 993325570, titulaire de la carte de démarchage immobilier pour le compte de la société I@D France SAS.
Ce mois Cette annonce est récente

À proximité

Recherche des commodités à proximité...

Détails de l'annonce

Localisation

Ville
Molandier
Pays
FR

Diagnostics / Énergie

Diagnostic DPE
133
Diagnostic GES
4

Surfaces / Pièces / Composition

Nombre d’étages
3

Chauffage et diagnostics

Diagnostic de performance énergétique (DPE)
a
b
c
d
e
f
g
Indice d'émission de gaz à effet de serre (GES)
a
b
c
d
e
f
g
Rappelez-moi