Type
Bien immobilierTarif
399 000 €Chambres
0Salles de bain
0Vente Appartement 2 pièces
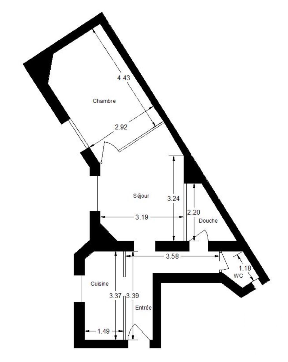
Iad France - Romain Treccani vous propose : En exclusivité, à deux pas du Jardin des Plantes, situé entre la place de l’Émir Abdelkader et le boulevard Saint-Marcel, cet appartement F2 en rez-de-chaussée, donnant sur une cour sans vis-à-vis, offre un cadre de vie pratique et agréable, au pied des commerces. Cette habitation se compose d’une entrée, d’une cuisine indépendante, d’un séjour, d’une chambre, ainsi que d’une salle d’eau et de WC séparés. En complément, une cave et un débarras viennent enrichir ce bien. Des travaux de rafraîchissement sont à prévoir, avec la possibilité d’ouvrir ou de repenser l’espace entre le séjour et la chambre pour un aménagement plus spacieux. Pour plus d’informations ou pour organiser une visite, contactez-moi sans tarder ! La presente annonce immobiliere vise 3 lots situés dans une copropriété de 54 lots au total et ne faisant l'objet d'aucune procédure en cours citée à l'article L. 721-1 du code de la construction et de l'habitation. Montant moyen mensuel de charges déclaré par le vendeur : 83.01€ par mois (soit 996.16 € annuel). Honoraires d'agence à la charge du vendeur. Information d'affichage énergétique sur ce bien : classe ENERGIE F indice 405 et classe CLIMAT F indice 89. Les informations sur les risques auxquels ce bien est exposé, y compris l'obligation légale de débroussaillement, sont disponibles sur le site Géorisques : http://www.georisques.gouv.fr. La présente annonce immobilière a été rédigée sous la responsabilité éditoriale de M Romain Treccani mandataire indépendant en immobilier (sans détention de fonds), agent commercial de la SAS I@D France immatriculé au RSAC de Pontoise sous le numéro 897686390, titulaire de la carte de démarchage immobilier pour le compte de la société I@D France SAS.
À proximité
Recherche des commodités à proximité...
Détails de l'annonce
Localisation
Ville
Paris
Pays
FR
Diagnostics / Énergie
Diagnostic DPE
405
Diagnostic GES
89
Surfaces / Pièces / Composition
Nombre d’étages
5
Chauffage et diagnostics
Diagnostic de performance énergétique (DPE)
a
b
c
d
e
f
g
Indice d'émission de gaz à effet de serre (GES)
a
b
c
d
e
f
g
