Trouver...

Language: FR

Devise: EUR

Vente Maison de ville 4 pièces

Publié le 12 February 2026
Type
Bien immobilier
Tarif
168 500 €
Chambres
2
Salles de bain
0

Vente Maison de ville 4 pièces

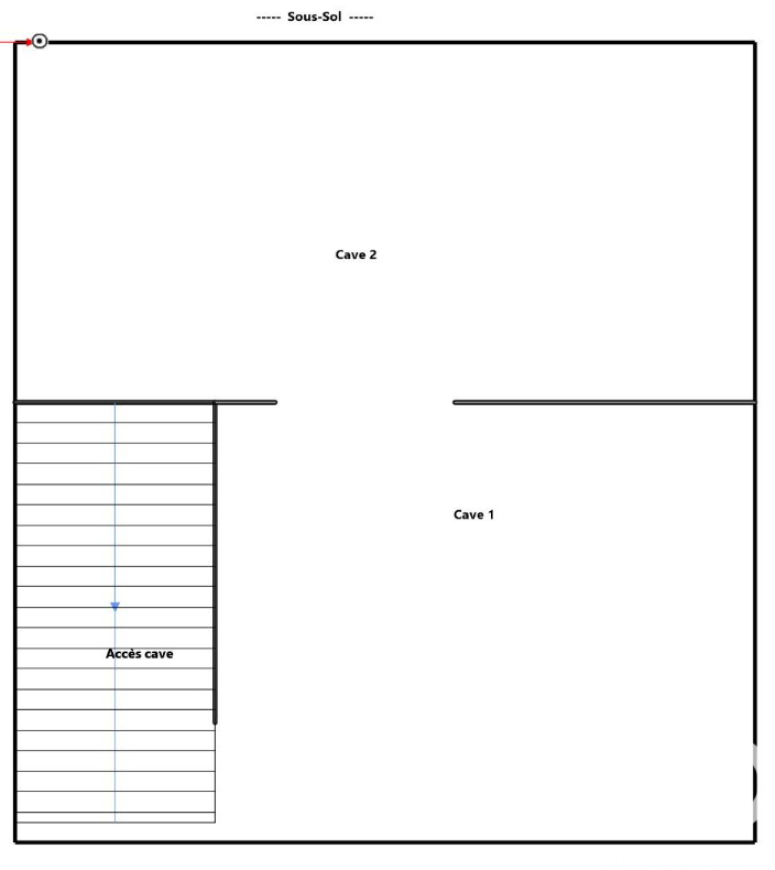
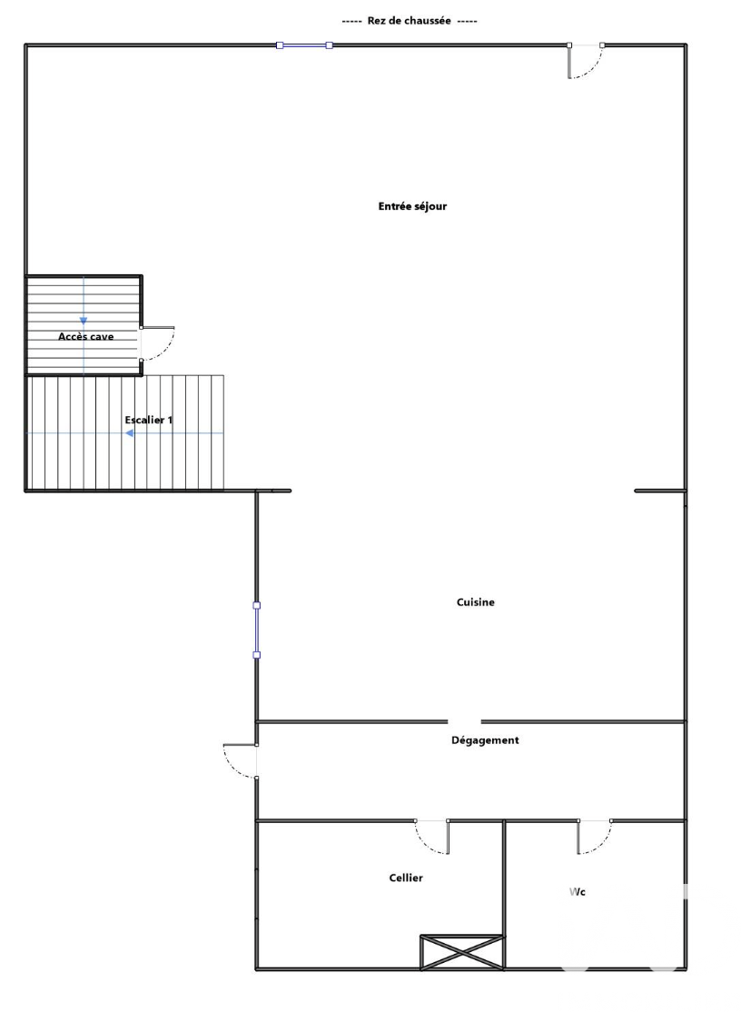
Iad France - Stéphanie Lucas vous propose : * Amiens – Quartier Renancourt – Maison de ville mitoyenne rénovée * Située à Amiens, à proximité du Stade de la Licorne, cette charmante maison de ville mitoyenne rénovée offre un cadre de vie confortable, fonctionnel et sans travaux. D’une surface d’environ 64 m², elle se compose comme suit : Au rez-de-chaussée : Un espace salon / séjour lumineux, une cuisine ouverte, un cellier et un WC. Au 1er étage : Une chambre ainsi qu’une salle de bain. Au 2ᵉ étage : Une petite chambre pouvant également faire office de bureau, complétée par un second petit espace bureau. Les + : -Une cave avec espace buanderie aménagé -Un extérieur à l’avant de la maison d’environ 18 m² -Une petite cour à l’arrière d’environ 7 m² Le bien est en excellent état et ne nécessite aucun travaux, permettant une installation immédiate. Idéale pour un première achat ou une petite famille, cette maison rénovée allie modernité, praticité et emplacement recherché. Ne manquez pas cette opportunité et contactez-moi dès maintenant pour organiser une visite et découvrir tous les atouts de ce bien. Honoraires d'agence à la charge du vendeur. Information d'affichage énergétique sur ce bien : classe ENERGIE D indice 189 et classe CLIMAT D indice 40. Les informations sur les risques auxquels ce bien est exposé, y compris l'obligation légale de débroussaillement, sont disponibles sur le site Géorisques : http://www.georisques.gouv.fr. La présente annonce immobilière a été rédigée sous la responsabilité éditoriale de Mme Stéphanie Lucas mandataire indépendant en immobilier (sans détention de fonds), agent commercial de la SAS I@D France immatriculé au RSAC de AMIENS sous le numéro 902305549, titulaire de la carte de démarchage immobilier pour le compte de la société I@D France SAS.

À proximité

Recherche des commodités à proximité...

Détails de l'annonce

Localisation

Ville
Amiens
Pays
FR

Diagnostics / Énergie

Diagnostic DPE
189
Diagnostic GES
40

Surfaces / Pièces / Composition

Nombre d’étages
2

Chauffage et diagnostics

Diagnostic de performance énergétique (DPE)
a
b
c
d
e
f
g
Indice d'émission de gaz à effet de serre (GES)
a
b
c
d
e
f
g
Rappelez-moi