Type
Bien immobilierTarif
234 000 €Chambres
1Salles de bain
0Vente Appartement 2 pièces
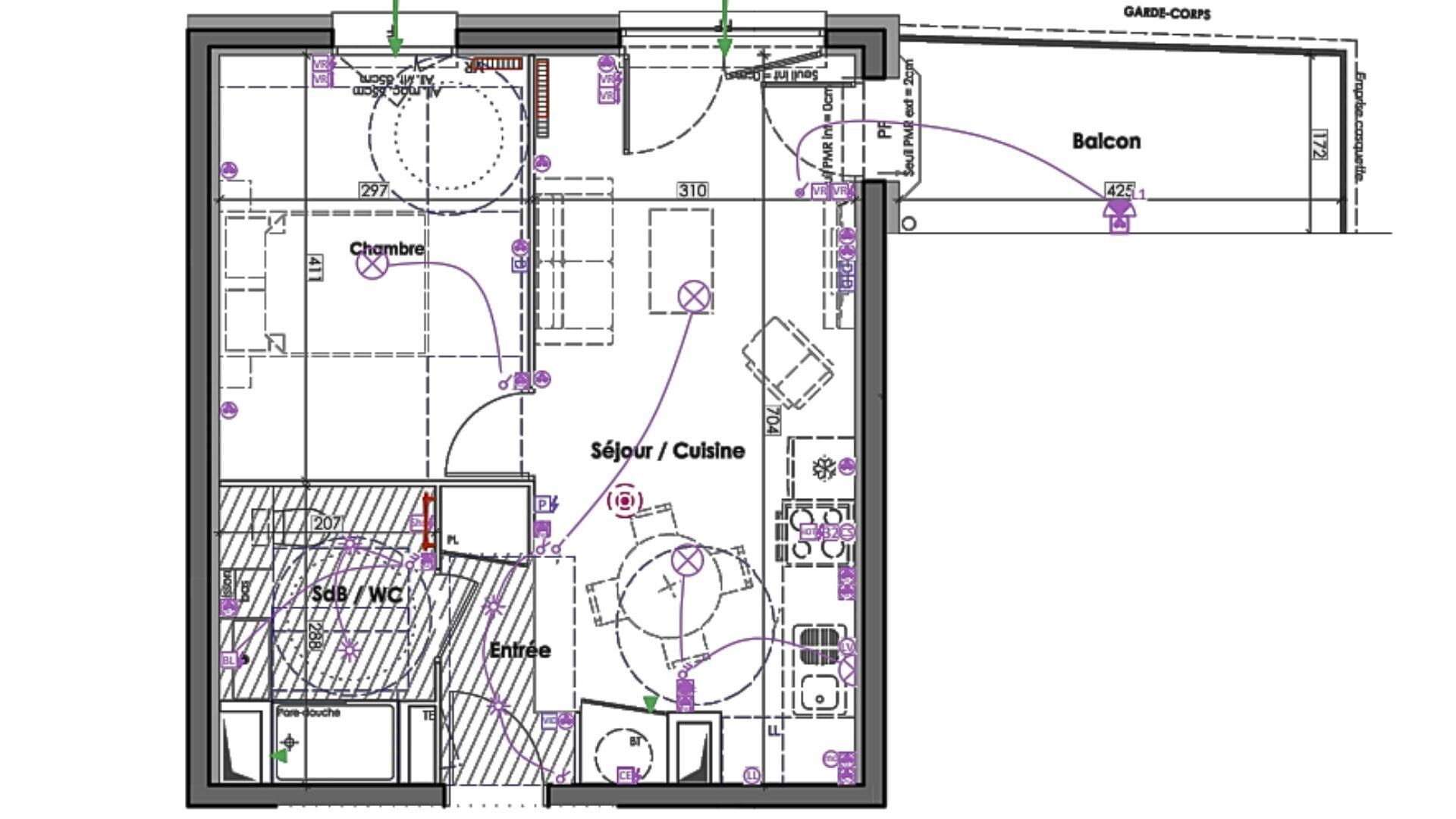
Iad France - Sarah Rozière (06 99 86 19 42) vous propose : Appartement T2 avec balcon à Claix. Située Montée de la Croix Blanche à Claix, au sud de Grenoble, la résidence Effet Vercors offre un cadre de vie unique entre ville et nature, avec une vue imprenable sur le massif du Vercors. Cette résidence conjugue architecture élégante, performance énergétique et douceur de vivre au cOEur d’un environnement verdoyant. Disponible 2027. Un appartement raffiné : Situé au 2 ème étage, cet appartement T2 de 41 m² environ habitables se prolonge par un balcon de 8 m² environ. - Séjour / cuisine de 21 m² environ. - Chambre confortable. - Salle d’eau moderne. - Annexes incluses : 1 cellier, 1 parking extérieur et 1 parking intérieur. De belles prestations : - Chauffage et eau chaude par pompe à chaleur individuelle vecteur air. - Grandes baies vitrées et volets roulants motorisés. - Espaces verts paysagers, jardin partagé et cheminements piétons en bois. L’art de vivre à Claix : - À 8 minutes à pied du centre-bourg, commerces et services de proximité. - Bus 21 (arrêt La Chièze) à 350 m et gare TER de Pont-de-Claix à 3 min en voiture. - Accès rapide aux autoroutes A480 et A51 vers Grenoble ou Marseille. - Écoles, collège, médiathèque et équipements sportifs à proximité. - Espaces naturels à deux pas : Parc de la Ronzy, Fort de Comboire, réserve naturelle du Peuil. N’hésitez pas à me contacter pour plus d’informations ou pour un accompagnement sur mesure. Honoraires d’agence à la charge du vendeur. Bien non soumis au DPE. Les informations sur les risques auxquels ce bien est exposé sont disponibles sur le site Géorisques : www.georisques.gouv.fr. La présente annonce immobilière a été rédigée sous la responsabilité éditoriale de Mlle Sarah Rozière EI (ID 83696), mandataire indépendant en immobilier (sans détention de fonds), agent commercial de la SAS I@D France immatriculé au RSAC de Clermont-Ferrand sous le numéro 978616993, titulaire de la carte de démarchage immobilier pour le compte de la société I@D France SAS. Retrouvez tous nos biens sur notre site internet. www.iadfrance.fr.
À proximité
Recherche des commodités à proximité...
Détails de l'annonce
Localisation
Ville
Claix
Pays
FR
Surfaces / Pièces / Composition
Nombre d’étages
3
Étage
2
Chauffage et diagnostics
Diagnostic de performance énergétique (DPE)
a
b
c
d
e
f
g
Indice d'émission de gaz à effet de serre (GES)
a
b
c
d
e
f
g
