Type
Bien immobilierTarif
119 000 €Chambres
3Salles de bain
0Vente Appartement 4 pièces
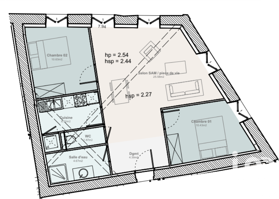
Iad France - Céline Tyrode vous propose : DERNIERE OPPORTUNITE ! envie de créer un appartement à votre gout ? je vous propose en plein centre de sain bel, un plateau de plus de 68 m² à rénover, situé au 2eme et dernier étage. Plateau livré avec une dalle neuve, une porte d'entrée et les fenêtres neuves, arrivée d'eau, compteur électrique et évacuations. Vous pourrez créer un T3 ou un T4 car possibilité de créer une mezzanine donc une surface supplémentaire. Exemple de plan comprenant une pièce de vie avec plafond cathédrale, une cuisine, une salle d'eau et 2 chambres, possibilité de faire en plus une troisième chambre en duplex. Magnifique charpente sablée et traitée. Vue sur la Brévenne. Possibilité d'acquérir une place de parking en sous sol. Appartement situé proche de toutes les commodités, commerces et écoles et de la gare. La presente annonce immobiliere vise 1 lot situé dans une copropriété de 24 lots au total et ne faisant l'objet d'aucune procédure en cours citée à l'article L. 721-1 du code de la construction et de l'habitation. Montant moyen mensuel de charges déclaré par le vendeur : 70€ par mois (soit 840 € annuel). Honoraires d'agence à la charge du vendeur. Bien non soumis au DPE. Les informations sur les risques auxquels ce bien est exposé, y compris l'obligation légale de débroussaillement, sont disponibles sur le site Géorisques : http://www.georisques.gouv.fr. La présente annonce immobilière a été rédigée sous la responsabilité éditoriale de Mme Céline Tyrode mandataire indépendant en immobilier (sans détention de fonds), agent commercial de la SAS I@D France immatriculé au RSAC de LYON sous le numéro 882079551, titulaire de la carte de démarchage immobilier pour le compte de la société I@D France SAS.
Cette semaine
Cette annonce est récente
À proximité
Recherche des commodités à proximité...
Détails de l'annonce
Localisation
Ville
Sain-Bel
Pays
FR
Surfaces / Pièces / Composition
Nombre d’étages
2
Chauffage et diagnostics
Diagnostic de performance énergétique (DPE)
a
b
c
d
e
f
g
Indice d'émission de gaz à effet de serre (GES)
a
b
c
d
e
f
g
