Type
Bien immobilierTarif
335 000 €Chambres
0Salles de bain
0Vente Appartement 6 pièces
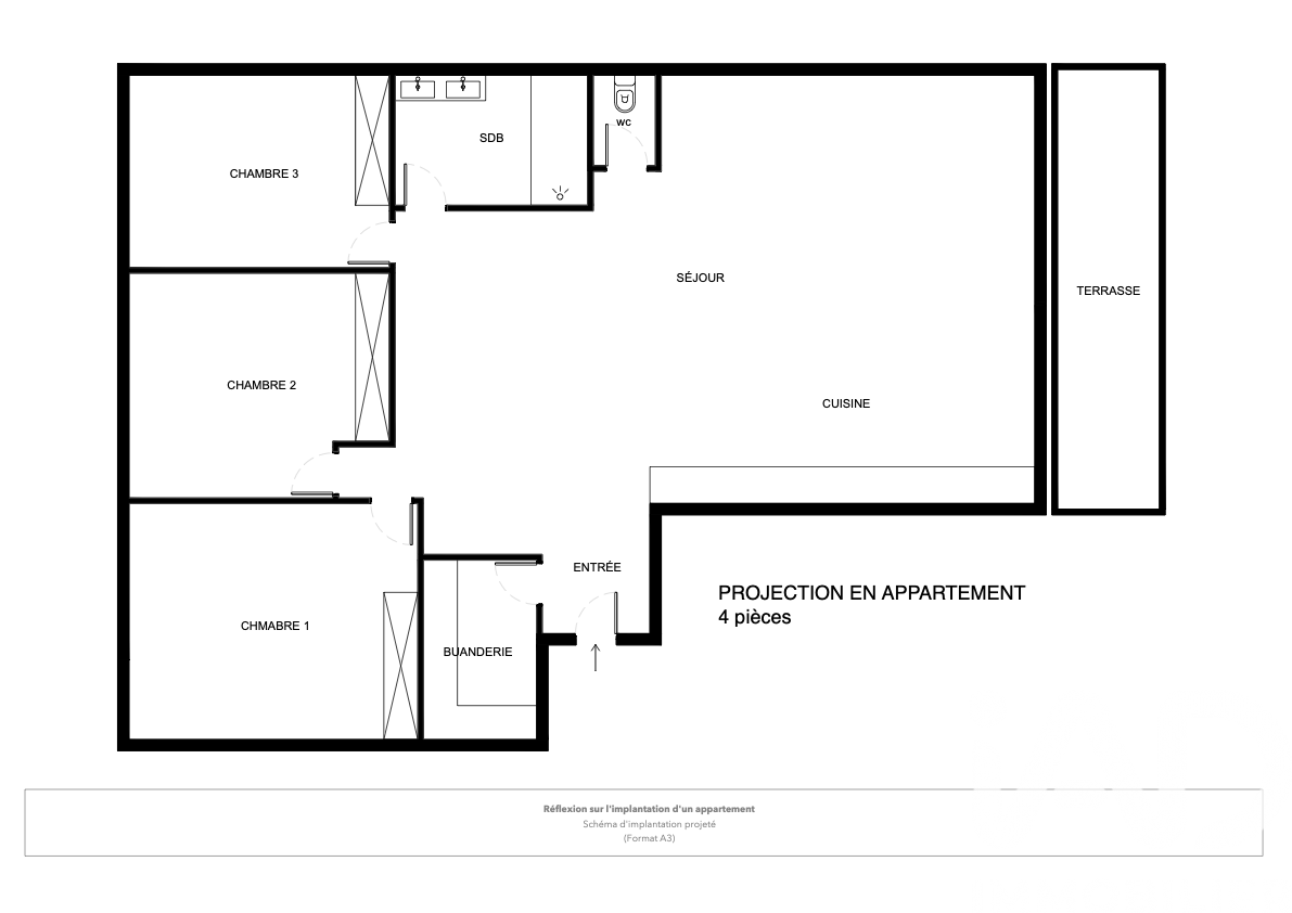
Iad France - Sophie Pons vous propose : Situé en plein cOEur du centre-ville, ce bien rare offre aujourd’hui un agencement complet pour un cabinet, avec une entrée équipée de rangements, un plateau technique de 17 m² environ, cinq salles de soin ou bureaux, une salle d’attente, une cuisinette, ainsi qu’un WC avec lave-mains et des espaces de rangement. Il dispose également d’une terrasse agréable sur cour, d’une cave et d’une place de parking en sous-sol. Niché au sein d’une résidence très recherchée et à deux pas de toutes les commodités, ce lieu offre un cadre idéal pour une activité professionnelle ou un projet de réaménagement, avec la possibilité de le transformer aisément en appartement familial de quatre pièces. Ce 4 pièces réaménagé proposerait une pièce de vie et une cuisine donnant sur la terrasse, 3 chambres dont une suite parentale avec salle d'eau, d'une salle de bain et d'un wc. (Voir plan sur les photos) Contactez-moi dès maintenant pour organiser une visite et découvrir tout son potentiel ! La presente annonce immobiliere vise 3 lots situés dans une copropriété de 138 lots au total et ne faisant l'objet d'aucune procédure en cours citée à l'article L. 721-1 du code de la construction et de l'habitation. Montant moyen mensuel de charges déclaré par le vendeur : 160€ par mois (soit 1920 € annuel). Honoraires d'agence à la charge du vendeur. Information d'affichage énergétique sur ce bien : classe ENERGIE D indice 194 et classe CLIMAT B indice 6. Les informations sur les risques auxquels ce bien est exposé, y compris l'obligation légale de débroussaillement, sont disponibles sur le site Géorisques : http://www.georisques.gouv.fr. La présente annonce immobilière a été rédigée sous la responsabilité éditoriale de Mme Sophie Pons mandataire indépendant en immobilier (sans détention de fonds), agent commercial de la SAS I@D France immatriculé au RSAC de Créteil sous le numéro 832376941, titulaire de la carte de démarchage immobilier pour le compte de la société I@D France SAS.
À proximité
Recherche des commodités à proximité...
Détails de l'annonce
Localisation
Ville
Sucy-en-Brie
Pays
FR
Diagnostics / Énergie
Diagnostic DPE
194
Diagnostic GES
6
Surfaces / Pièces / Composition
Nombre d’étages
Chauffage et diagnostics
Diagnostic de performance énergétique (DPE)
a
b
c
d
e
f
g
Indice d'émission de gaz à effet de serre (GES)
a
b
c
d
e
f
g
