Type
Bien immobilierTarif
385 000 €Chambres
2Salles de bain
0Vente Duplex 3 pièces
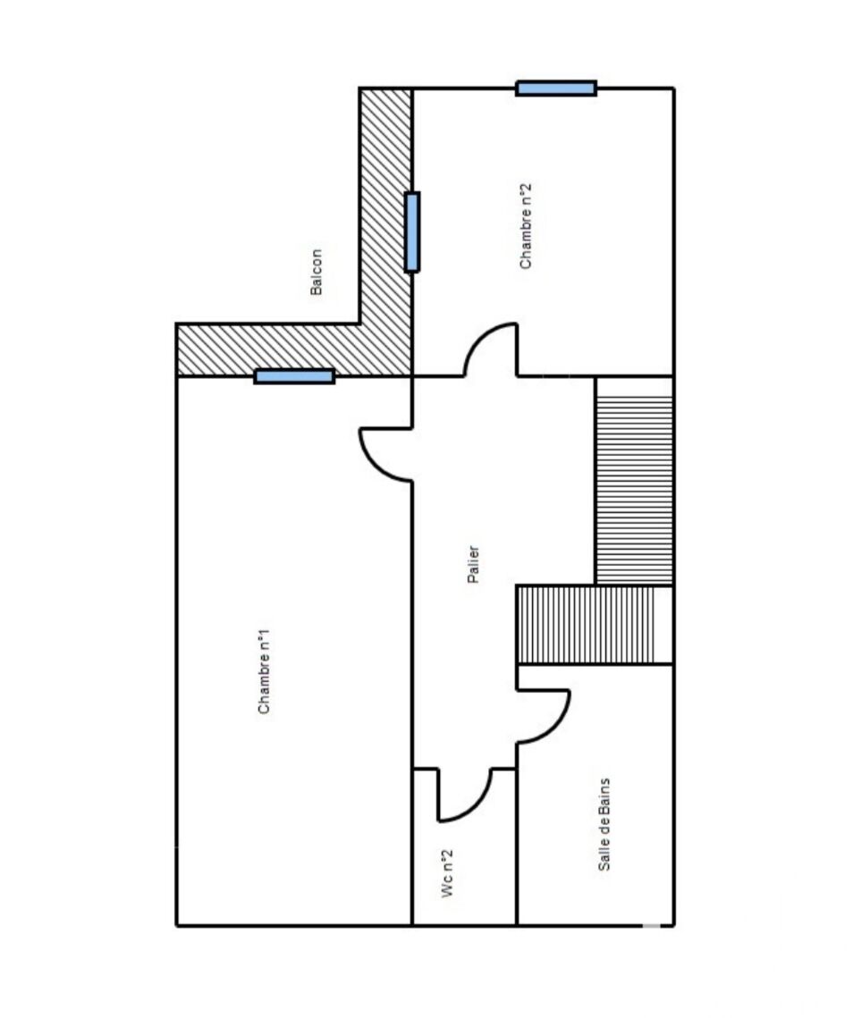
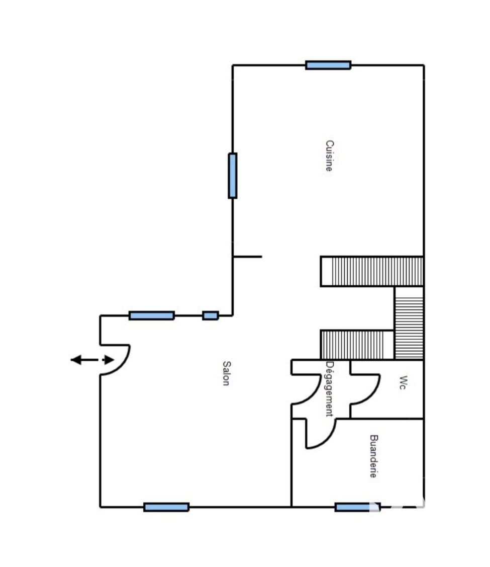
Iad France - Jessica Pellé vous propose : Splendide duplex rénové - 3 pièces avec balcon - Alfortville Ravissant duplex situé dans un quartier dynamique d'Alfortville, cet appartement de 85,36 m² offre un cadre de vie idéal pour les amateurs d'espaces lumineux et modernes. Rénové avec goût, ce bien saura vous séduire par ses prestations de qualité et son agencement optimal. Au rez-de-chaussée, vous découvrirez un espace de vie ouvert sur une cuisine spacieuse, configuration idéale pour partager des moments conviviaux en famille ou entre amis, ainsi qu’un wc et une buanderie. À l'étage, vous trouverez deux belles chambres baignées de lumière naturelle et donnant sur un balcon, une salle de bain moderne et un WC séparé pour plus de confort. La double exposition (nord / est et sud / est) offre une luminosité optimale tout au long de la journée, créant une ambiance chaleureuse et accueillante. Le sous-sol non aménagé donne sur une loggia de 6 m² et offre plusieurs possibilités d’aménagement : 3ème chambre, bureau, atelier (peinture, musique, bricolage…), salle de sport, etc. L'appartement bénéficie d'une rénovation récente, gage de qualité et de confort. Le quartier animé d'Alfortville vous offrira un cadre de vie agréable, proche des commerces, des écoles et des transports en commun. Si vous recherchez un duplex moderne, lumineux et idéalement situé, ne tardez pas à visiter ce bien d'exception. Un véritable coup de cOEur en perspective ! La presente annonce immobiliere vise 1 lot situé dans une copropriété de 3 lots au total et ne faisant l'objet d'aucune procédure en cours citée à l'article L. 721-1 du code de la construction et de l'habitation. Montant moyen mensuel de charges déclaré par le vendeur : 50€ par mois (soit 600 € annuel). Honoraires d'agence à la charge du vendeur. Information d'affichage énergétique sur ce bien : classe ENERGIE D indice 191 et classe CLIMAT B indice 7. Les informations sur les risques auxquels ce bien est exposé, y compris l'obligation légale de débroussaillement, sont disponibles sur le site Géorisques : http://www.georisques.gouv.fr. La présente annonce immobilière a été rédigée sous la responsabilité éditoriale de Mme Jessica Pellé mandataire indépendant en immobilier (sans détention de fonds), agent commercial de la SAS I@D France immatriculé au RSAC de CRETEIL sous le numéro 943345082, titulaire de la carte de démarchage immobilier pour le compte de la société I@D France SAS.
Cette semaine
Cette annonce est récente
À proximité
Recherche des commodités à proximité...
Détails de l'annonce
Localisation
Ville
Alfortville
Pays
FR
Diagnostics / Énergie
Diagnostic DPE
191
Diagnostic GES
7
Surfaces / Pièces / Composition
Nombre d’étages
2
Chauffage et diagnostics
Diagnostic de performance énergétique (DPE)
a
b
c
d
e
f
g
Indice d'émission de gaz à effet de serre (GES)
a
b
c
d
e
f
g
